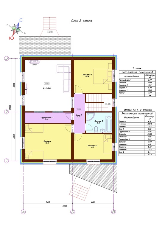
Покритикуйте план дома
Постройка дома, этапы.Собираемся начинать стройку. Участок 15 соток. Семья- 4 человека, двое детей.
План пока такой:



Хотелось бы критического взгляда. И если у кого есть второй свет в доме, буду благодарна за фото.
Спасибо.
Олеся (Лесёнок)
Я бы не стала делать второй свет. Он хорош для больших площадей, а так будет ощущение колодца. Лучше уж еще комнату на стором этаже, а из самой маленькой сднлать шикарную гардеробную общую. А маленькую забрать под родительскую гардеробную личную.
На 1 этаже под постирочную возьмите место от гардеробной, она такая громадная не нужна. И у нас 3 этажа, а хотелось бы 2))) В цоколе в принципе можно на меньшей площади сделать санузел, сауну, комнату отдыха, небольшую кладовую и техкомнату. Вы туда не набегантесь.
06.06.2017
Ответить
Валентина
Такой огроменный дом... на 4х.. Зачем столовая и отдельно гостиная? Такую площадь убирать, не представляю.. Сделайте спальню на первом этаже хоть одну.
У подруги тоже цокольный этаж под всем домом, она прокляла все-денег и времени в него вбухано немерено, ненужное пространство в итоге получилось
04.06.2017
Ответить
Катерина
у родителей дом с похожей планировкой. О чём мама пожалела со временем:
1) прачечная в цоколе - вот прямо боль и печаль каждый раз носить туда-сюда вещи. На бумаге это заманчиво, хорошо и правильно. В жизни не работает, к сожалению, от слова совсем. Мама плюнула и поставила стиральную машину на 2 этаже и дополнительный шкаф в гардеробной для невыглаженного чистого белья.
2) Опять же, у родителей нет доступа в гардеробную из спальни (у вас на плане к ней также примыкает гостиная со вторым светом и детская, а не спальня, если я все правильно поняла). Если вы не любители халатов (да даже если любители...) - это неудачное решение. Чтобы в спальне реально не валялись по стульям/туалетным столикам рубашки, чтоб не было необходимости ставить лишние комоды под нижнее белье, оттуда должен быть прямой доступ в гардеробную. Через коридор в трусах не набегаешься.
3) Еще момент: расположение выходов с фасада и на задний двор. Мои родители, например, постоянно бегают насквозь через дом. У вас сквозного прохода не получается. Не знаю, будет ли это удобно. Наверное, не принципиально.
04.06.2017
Ответить
Rinika
Второй свет - на большого любителя, очень уж много полезной площади съедает.
Размещение спален на 2 этаже тоже хорошо только на картинке. По факту же мы с мужем уже сильно пожалели, что на даче так сделали - постоянная беготня по лестнице конкретно напрягает, а при малейшей проблеме со здоровьем (вывих ноги, например) вообще в серьезную проблему превращается. Уже присматриваем какую из комнат на 1 этаже себе под спальню переделаем и если еще дом строить будем на 2 этаже только гостевые и подсобные помещения разместим.
Про кладовку в цокольном этаже и гардеробную на втором уже писали -слишком узкие и длинные, как ими пользоваться непонятно.
03.06.2017
Ответить
Анатолий Николаевич
Здесь один комментатор высказался,что у нее такая же планировка и ее все устаивает.А я замерил оси компаса по перпендикуляру и предлагаю свои услуги специалиста по энергетикам,тем более увидел еще кое-что,что озвучу при работе.
Можете почитать мой дневник.
03.06.2017
Ответить
Микура
хорошо б сделать из кухни-гостинной выход на терассу-площадку во внутренний двор. мне прям не хватает такого в нашем доме, а через комнату носить туда сюда неудобно и да, одного окна критично мало на такую площадь.
03.06.2017
Ответить
Elena
А как дом будет расположен на участке? Где улица и где вход на участок?
Я бы разместила вход с востока (место кабинета). Кабинет на место гардеробной и коридора. Кухню на место гостиной. Гостиную и веранду на место кухни столовой.
03.06.2017
Ответить
QueenMary
На участке дом будет ближе к улице, которая у входа в дома. То есть получается, что это правый нижний угол участка (более высокая сторона). Улица с противоположной стороны дома второстепенная. С двух других сторон - соседи
03.06.2017
Ответить
Elena
Расположение дома продиктовано расположением коммуникаций?
В наших широтах так мало солнца и я бы порекомендовала вам рассмотреть вариант, когда есть возможность сосредоточить дневное пребывание всех членов своей семьи в южной части дома. Веранда на севере всегда будет в тени и там будет неуюно прохладно... ее лучше повернуть хотя бы на юго-запад, чтобы находиться там было бы комфортно.
У нас тоже участок 15 соток и улица и вход на участок строго на юге и мы будем строить дом во второй половине участка, отодвинув от улицы, в северо-восточной стороне участка, чтобы тыльная сторона, стороны без окон были на севере. У вас фасад практически без окон, а он, как правило красивый, выходит на улицу. И гостиная на севере.
Еще можно развернуть дом на 90 градусов и тогда у вас расположение по сторонам света будет лучше.
03.06.2017
Ответить
ирина
У нас есть второй свет-красиво, а товарищ начинал со вторым светом,а потом перекрыл под комнату его. У нас пришлось менять проект,тк второй свет изначально был за домом и солнечный свет не попадал бы в окно. А это не правильно. Сейчас в гостиной у нас много света весь день,но не утомляет,тепло от солнца очень.
06.06.2017
Ответить
Sveta
Такой дом для обеспеченных людей с хорошим доходом. 1, Цоколь - очень дорого в строительстве, дешевле построить один наземный этаж. Могут возникнуть проблемы с гидроизоляцией. Цоколь - однозначно для богатых. Сделали небольшой технический подвальчик, стоил в 2 раза дороже, чем фундамент на весь дом. У вас там к тому же еще и канализация, а это дополнительные насосы.Подумайте очень хорошо, может быть можно разместить эти помещения на первом этаже. 2. Второй свет - нерациональное размещение площади. Дорого в отоплении. Если у вас нет магистрального газа либо его подключение стоит неоправданно дорого, то второй свет ИМХО делать не стоит.
Ну и по планировке вам уже написали про холл, который выходит не на гостиную. Еще узкие темные коридоры - некрасиво и нерационально. Узкая гардеробная - тоже не лучшее решение, даже не представляю, как там удобно разместить полки и еще ходить при этом.
03.06.2017
Ответить
Betsy
На первом этаже большой не освещённый холл, основное направление на кабинет, хотя должно быть на гостиную, из холла хочется сразу попасть в гостиную (прямо) кстати может вам поменять местами столовую и гостиную ? на 2 этаже слишком узкая гардеробная чтобы городить стены, можно у каждой комнаты сделать свой шкаф на всю стену. Посмотрите идеи по домам тут мансардам тут таунхаусам тут про дизайн проект дома тут также найдёте во вкладке про "стили интерьера" насобирали интерьеры с домами под каждый стиль
03.06.2017
Ответить
QueenMary
Да, спасибо. Был и вариант замены кухни-столовой и гостиной. Камин с верандой тогда тоже поменяется....
03.06.2017
Ответить
Ольга
У нас прям такая же планировка, только без цоколя и второго света. Меня все устраивает.
03.06.2017
Ответить
Ольга
Мы правда ещё пристройку небольшую сделали, хотя в проекте Ее не было. Мы там снимаем обувь и верхнюю одежду. Очень удобно, песок в дом не тащится))) ну и наша планировка. Фото плохое, но другого нет.
03.06.2017
Ответить
Анатолий Николаевич
Повезло Вам!
У Вас,скорее всего,другое положение оси компаса на "планировке",поэтому "Вас все устраивает".А я замерил что там входит в дом по энергетикам и мне кое-что не нравится.Это не пугалка,а реальные вещи.
Если что,то можете почитать мой дневник.
03.06.2017
Ответить
Оставшиеся комментарии доступны после регистрации
Зарегистрируйтесь и получите полный доступ ко всем функциям сайта.