Небольшая квартира для большой семьи
Авторские проекты дизайнеров.(Посты не по теме будут удаляться!)Всем вечер добрый !!! ☺️
Хочу поделиться своим новым проектом , который я делала для большой семьи состоящая из 5 человек.

Главной задачей это было сделать граммофонное планировочное решение, чтобы всем было комфортно жить и у каждого было свое личное пространство.
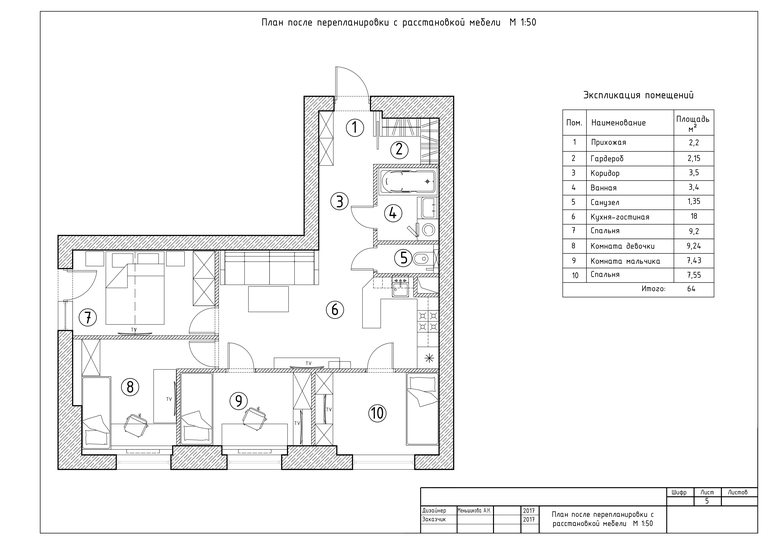
Общая площадь составляет 64 м2, от застройщика шла как двухкомнатная .
После перепланировки она стала 5ти-комнатная евро, да комнаты небольшие, но я по максиму старалась сделать их функциональными и комфортными.
Задачи по перепланировке:
-гардеробная
-отдельный с/у
-общая гостиная
-отдельные спальные комнаты
Цветовая гамма спокойная в пастельных оттенках


Единственный недостаток такой планировки это отсутствие естественного освещения в гостиной (тут нужно было чем то жертвовать чтобы разместить всех)и 4 двери которых нужно было как то спрятать от глаз , с этим хорошо справились двери invisible с зеркальным полотном ,что плюсом расширило пространство.

Спальня родителей

Комната для бабушки


Детские делали универсальными чтобы когда дети подросли дизайн оставался актуальным
Детская для мальчика 7 лет

Детская для девочки 10 лет




Спасибо за внимание ! ☺️
очень светло, красиво, комфортно, я в восторге