Ищу дизайнера
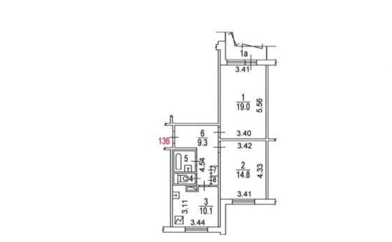
Ищу услуги дизайнера.Ищу дизайнера. Двухкомнатная квартира линейка 58 кв.м. Будем делать косметический ремонт . Молодая семья с ребенком 4.5 лет В первую очередь интересует сочетание цветов
Olga
Добрый день! Меня зовут Ольга. Я главный дизайнер "студии S-8".
"Студия S-8" работает в различных стилях и направлениях, индивидуально подходя к каждому проекту, независимо от его сложности.
Работы, созданные "студией S-8" отличает чистота стиля, продуманность деталей, функциональность.
"Студия S-8" занимается следующими работами:
- Дизайн интерьера
- Ландшафтный дизайн
- Дистанционный дизайн интерьера: "студия S-8" имеет большой опыт в предоставлении данного вида услуги. В общем соотношении из всех проектов, не менее 45% наших работ - именно дистанционный дизайн. http://www.fs-8.ru/pages/258/
http://olga_glushkova59.houzz.ru/
Подробнее об услугах "Студии S-8": http://www.fs-8.ru/pages/18/
20.11.2017
Ответить
Виктория Буйских
Добрый вечер,Элеонора! Меня зовут Виктория. Я занимаюсь дизайн-проектами квартир.Если будите делать косметический ремонт и по большей части Вас интересуют цветовое сочетания, то вам не обязательно заказывать весь проект. Мы с вами можем просто создать цветовую гамму,палитру квартиры в целом, которая будет нравится именно Вам и вашей семье. Можем созвониться и обсудить это подробней, мой номер 8-903-585-23-44.
10.11.2017
Ответить
Елена
Добрый день. С довольствием выполним дизайн-проект для Вас. Стоимость - 350 руб/кв.м., срок - 10 рабочих дней. Наши работы - на сайте www.artbrigada.com. Есть готовый проект такой же квартиры - правда для двух детишек). 8-800-333-48-55, +79108881090
24.10.2017
Ответить
Ярославна Галивец дизайнер интерьера
Обращайтесь, буду рада помочь.
yg-interiors.com
20.10.2017
Ответить
LanaDesign
Элеонора,добрый день. Пишите, помогу вам с этим вопросом.flowwer@list.ru
18.10.2017
Ответить
Дизайнер 3D
Здравствуйте.
Разработаю Дизайн проект интерьера _ любого вашего помещения.
_
Какая у вас Площадь ?? Стиль интерьера который вы рассматриваете ??
В ответ пришлю или озвучу цену.
Список Услуг https://www.babyblog.ru/user/id2191345/22481
Мой дневникhttps://www.babyblog.ru/user/lenta/id2191345
Без праздников и выходных с 9-30 до 21-00
Цены ниже ББшек и Дизайн студий.
__
Цены доступные для каждого. __ Пишите, Звоните и уточняйте информацию по вашему помещению.
Моя почта 89161649464@mail.ru
18.10.2017
Ответить
Оксана (дизайнер, инста: @persona_story)
А план квартиры "в студию" можно? Я имею в виду опубликовать ))
18.10.2017
Ответить
Катя Самохина
Добрый день! Буду рада помочь. О цене договоримся, пишите в личку. С Уважением, Дизайнер , Катерина
18.10.2017
Ответить
