Помогите с расстановкой мебели!!!!!
Интерьерное решение детской комнаты
Комната девочки подростка,хочет кирпичную стену и кровать и диван.Я всю голову сломала,не могу придумать.Если не сложно_подскажите.Буду благодарна.Высота потолка 2.8
selena1002
Елена, добрый день!
А где именно дочь хочет кирпичную стену? Где-то в виде перегородки?
01.12.2017
Ответить
Елена
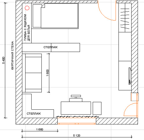
Хотелось стену из декоративного кирпича белого цвета на стене с балконной дверью, напротив думала тв зона, со шкафами
02.12.2017
Ответить
selena1002
Елена, добрый день!
К сожалению, непонятно, где стена с балконной дверью)) Но понятно, что это не перегородка в комнате, а просто одна стена будет из белого кирпича. Верно?
02.12.2017
Ответить
Елена
да,стена с балконом,где 1,18-это балкон,напротив планировала шкафы и тв зона
02.12.2017
Ответить
selena1002
Елена, добрый день!
Теперь можно и поговорить) А что это за балкон такой 118см, или только дверь? Вот вариант расстановки. Только кирпичная стена стала зеркальной):
02.12.2017
Ответить
Елена
А если зеркально перевернуть тв и диван) Как так будет? просто не подумала и сделали подводку на стене ,где вы диван поставили
02.12.2017
Ответить
selena1002
Можно перевернуть, конечно, только как-то не очень логично диван из-за шкафа будет. Ладно бы еще комната была маленькая) Это опять же к вопросу о нужности дизайнера. Дизайнер, он не только красивые картинки выдает), вся рабочка тоже на нем. И совсем не обязательно платить сумасшедшие деньги за план с розетками.
02.12.2017
Ответить
selena1002
Елена, Вам не за что извиняться. Просто, если бы Вы работали с дизайнером даже на этом этапе, он бы Вам задал все нужные вопросы. Я часто вижу, что на ББ просят помощи, а ТЗ дать не умеют))
02.12.2017
Ответить
Катя Самохина
За 2000 руб сделаем совместно расстановку и покажу в 3D. С уважением, дизайнер , Катерина
29.11.2017
Ответить