Помогите, принять решение
Перепланировки стен. Согласование перепланировки квартир и нежилых помещений.Добрый день!
Находимся в процессе покупки жилья, имеем семью из 4-х человек (2 взрослых и 2 разнополых детей). На полноценную трешку денег не хватает, поэтому просматриваем двушки с возможностью перепланировки. Нужно кухня, две детские и спальня для взрослых.
У застройщика только три вида двушек, буду очень благодарна за ваши советы, по поводу какую из трех квартир выбрать. 


Katunya
Из предложенных вами вариантов, мне не нравится ни один. Мы тоже выбирали двушку для четверых, остановились на такой планировке (просто для информации): коридор 10м, раздельные санузлы, кухня-гостиная 12м (тут хотелось бы побольше, но увы), одна комната 14м (наша спальня), вторая комната 20м (детям пополам по 10м). И плюс два балкона. Поэтому поищите ещё. Кто ищет, тот всегда находит! Но если уж выбирать из того, что есть, то я за первый вариант. Пусть малюсенькие, но свои комнаты. В других вариантах либо одна маленькая комната на двоих детей, либо спальня родителей/кухня в одном флаконе.
30.01.2018
Ответить
Любовь Дизайнер Интерьера
Первый и третий подходит вам. В первом кухню оставить на месте, а две комнаты внизу поделить на три(благо три окна есть). Комнаты небольшие,но всё законно и ничего из коммуникаций переносить не нужно. В третьем также: кухня на месте, разделить правую часть на две - с балконом спальня, а кухня получится проходной и небольшой.
Это на первый взгляд такие придумались варианты.
30.01.2018
Ответить
Светлана Т.
Искать дальше. Т.к. в этих вариантах либо клетушки-спальни по 7-8 метров, либо селить детей вместе.
30.01.2018
Ответить
selena1002
Елена, добрый день!
Согласна с Александрой, третий вариант подходит больше всего, но он и правда, не пройдет "узаконивания". Т.к. на площади кухни не должна быть жилая зона.
30.01.2018
Ответить
selena1002
Юля, добрый день!
Узаконивать нужно будет перенос жилой зоны в кухонную (мокрую))), а не ГК-перегородку. И для лучшей шумоизоляции лучше не ГК, а пеноблоки или пазогребневые.
31.01.2018
Ответить
Юлия
Не обязательно озвучивать что это жилая зона. Гостиная, кабинет, что угодно...
31.01.2018
Ответить
selena1002
Но ведь не кухня же. Только недавно здесь был пост об этом. Они хотели расширить спальню за счет кухни.
31.01.2018
Ответить
Marina
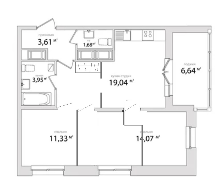
Первый вариант, при условии, что можно согласовать расширение проема в несущей стене между кухней-гостиной и спальней 14,07. В спальне 11,33 переносите стенку влево, получается комнатка 8 метров для родителей. В оставшейся части делаете 2 спальни для детей по 8 метров, в каждую комнатку отдельный вход из кухни-гостиной. Но, повторюсь, судя по плану, нужно увеличивать проем в несущей стене(
30.01.2018
Ответить
Юлия
Что то первый вариант мне уже не нравится)) комнаты по 8м это перебор ((
Наверное 3 вариант, присоединить балкон, выделить спальную зону, без капитальной стены.
30.01.2018
Ответить
Таисия
В третьем получается тоже по 8, если не меньше! Надо же ещё диван впихнуть и телек и типа кухня отдельно..
30.01.2018
Ответить
Таисия
Их на плане ниже предлагают урезать, чтоб втиснуть диван и телек, ещё и гардеробная ...про них не писалось, но с такой площадью и маленькими детьми навряд ли они будут сидеть в чей-то одной комнатушке, все-равно будут вместе собраться ...а если везде тесно будет, то проще иметь двушку и спальню-гостинную (без перепланировки), чем несколько комнат от 7-8 м2...
Это я порассуждать) не навязываю
30.01.2018
Ответить
Юлия
я тоже порассуждать. есть только эти варианты и никаких больше, я снова за 1.
зато огромная общая кухня + кабинет папе или маме на балконе.
30.01.2018
Ответить
Юлия
А диван и телек на кухне это обязательное условие? Автор не говорила что ей нужна кухня-гостинная
30.01.2018
Ответить
Таисия
В первом варианте 4 окна (если отгородить взрослым чисто на кровать), а в остальных - по 3 окна, как у девушек и бывает. К тому же в 3 варианте все окна на одну сторону (мне не импонирует и слышимость в них хорошая) и кухня всего 15м, по сравнению в первыми двумя вариантами - маленькая.
Либо выбрать вторую, и будет гостинная-спальня. Но третья по мне такие же клетушки выходят, особенно гостинная в прихожей. Если в масштабе представить.
А так у вас была бы общая большая комната собраться семьёй.
30.01.2018
Ответить
Оксана (дизайнер, инста: @persona_story)
Третий вариант вижу более удобным для перепланировки.
30.01.2018
Ответить
Оставшиеся комментарии доступны после регистрации
Зарегистрируйтесь и получите полный доступ ко всем функциям сайта.

