Проект дома. Фото, планы, дизайн интерьера и бюджет.
Авторские проекты дизайнеров.(Посты не по теме будут удаляться!)Продолжаю делиться информацией по уже построенным домам. Представляю небольшой дом "Оксфорд"
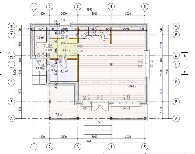
Общая площадь дома по внешнему контору: 160,3 м2
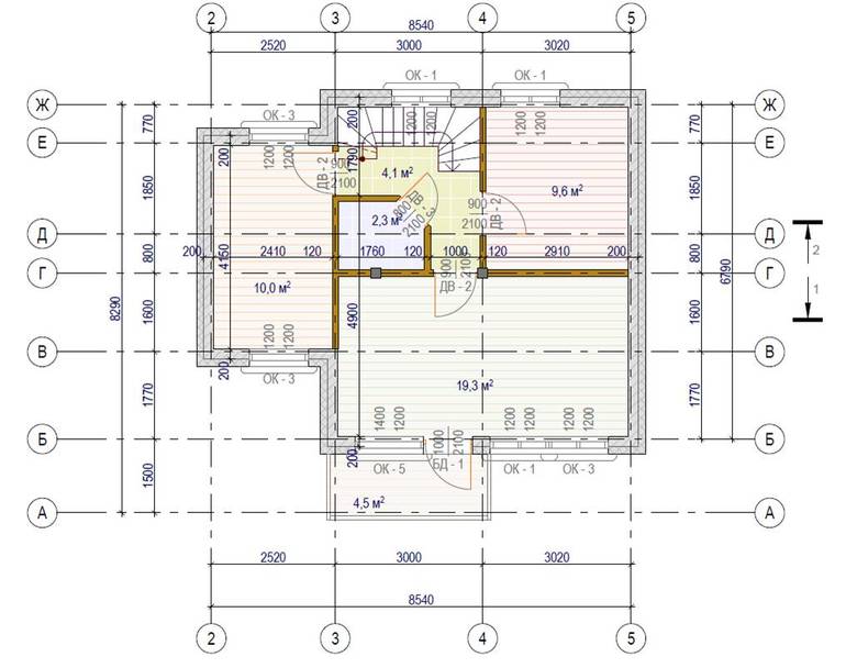
Площадь 1-ого этажа 94,5 м2 Площадь 2-ого этажа 65,8 м2

Ниже в посте много фото дома, интерьерное решение, планировки, фактический бюджет на строительство
Для того чтобы информация была более полная, представленные фото и планировки собраны с двух объектов одинаковой площади
В первом доме Заказчица решила сделать свободную планировку отказавшись от комнаты внизу, получилась большая и интересная кухня гостиная

второй дом уже с комнатой внизу

Второй этаж одинаковый

Видео интерьера дома с планировкой №2
картинки будущего дизайна для дома с планировкой № 1
автор Любовь(дизайнер)
Видели на сайте 16 минут назад

Теперь о бюджете.
1 этап строительства: фундамент, стены, перекрытия и кровля 1 950 000
2 этап строительства: утепление внешняя отделка 1 300 000
3 этап коммуникации и внутренняя отделка 1 850 000
Итого дом под ключ: 5 100 000
Комплектации полные, менять и улучшать ничего не надо. В сумму не входят чистовые материалы 3 этапа (плитка, обои, двери и тд. то что зависит от личного вкуса), ориентировочно 200 - 500 тыс. И конечные приборы коммуникаций тут тоже сумма может быть разной от 100 до...
теперь фото домов "Оксфорд"

