Помогите с перепланировкой
Интерьерное решение жилых помещений.двое детей разнополых,четыре года разница!Хочется кухню -гостинную и гардеробную!!!дом монолитный 
Анатолий Николаевич
Если сделать так,как предложила Селена1002,то при той энергии,которая пришла в этом году на этом положении изголовья Вам должно быть очень удачливо в этом году.Потом отслеживайте месячные Гуа 9,при которых Вам должно везти.Гуа это месячное распределение энергетики по периметру.
Подробности в дневнике.
23.03.2018
Ответить
Мирка
16,8 метров вполне достаточно для кухни-гостиной, тут ничего переделывать не надо.
22.03.2018
Ответить
selena1002
Катя, добрый день!
По-моему, Вам грех жаловаться). У Вас достаточно площади и для гардеробной и для кухни-гостиной и для детской. Вы можете взять вариант Виктории без лишних переделок и согласований. Или сделать вот так, например:
И еще присоединить балкон в детской. Остается только продумать шкаф в прихожей. Конечно, все без точного масштаба, но думаю, получится.)
И еще присоединить балкон в детской. Остается только продумать шкаф в прихожей. Конечно, все без точного масштаба, но думаю, получится.)
22.03.2018
Ответить
Катя
спасибо ,такая планировка в голове и рисовалась!Думала может с двумя детскими получится что-то придумать...но думаю все таки без окна спальня не совсем комфортна
22.03.2018
Ответить
selena1002
На здоровье! Ну, можно сделать две детских и остаться без гостиной и с темной кухней)). Можно еще попробовать вместо гостиной сделать спальню, гардеробную оставить, вместо спальни сделать детскую, а от большой детской отдать часть для гостиной.
22.03.2018
Ответить
Виктория (дизайнер)
если вам не важна возможность согласовать планировку, тогда в таком направлении подумать:
санузел перенести - засчет этого расширить детскую и зонировать ее.
кухню зонировать на кухню и гостиную
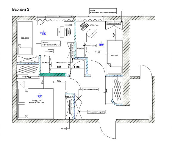
Ну и для примера покажу - был у меня проект. Разнополных детей расселяли + спальню для родителей. Соответственно, одна комната без окна осталась.
Но в таком случае надо все хорошо подумать насколько такой вариант буедт комфортен именно для вашей семьи. Комнаты выходят маленькие, но у всех есть свой угол
Ну и для примера покажу - был у меня проект. Разнополных детей расселяли + спальню для родителей. Соответственно, одна комната без окна осталась.
Но в таком случае надо все хорошо подумать насколько такой вариант буедт комфортен именно для вашей семьи. Комнаты выходят маленькие, но у всех есть свой угол
22.03.2018
Ответить
Вера
Для всех "хочется" нужны другие площади квартиры )) В противном случае рискуете получить клетушки, где все загорожено-перегорожено.
22.03.2018
Ответить
Irylen
гардеробную - только если проходную в комнате 15,3 (с одной стороны для одежды, в другой для хоз. нужд
22.03.2018
Ответить
Datura
не нужно мудрить с гардеробной в ущерб воздуху) шкафы нынче можно на любой вкус сделать.
22.03.2018
Ответить