Дизайн-проект "Семейные традиции". Часть 1-ая.
Авторские проекты дизайнеров.(Посты не по теме будут удаляться!)Всем добрый день!
Сегодня хочу показать 1-ю часть большого проекта для большой семьи.
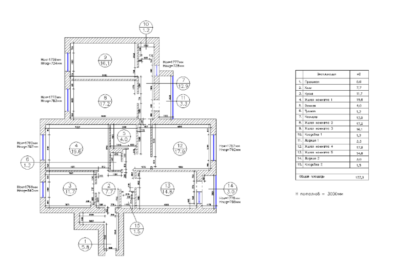
Квартира в ближайшем Подмосковье, 137,9м2, 5 комнат.

Для родителей и 4-х детей. Девочка подросток, две девочки садовского возраста и новорожденный мальчик.
Стиль - современная классика. Немного ретро ностальгии. Хозяйка - творческая личность, присылала очень много референсов, подборок. Работа проходила интересно и продуктивно. Такие заказчики это конечно бальзам на душу для любого дизайнера.
Немного поменяли планировку. Создали второй полноценный санузел за счет коридора. Сделали проем из кухни в гостиную. И запроектировали гардеробную в спальне.
Сегодня показываю прихожую, коридор, спальню, кухню и гостиную. В следующем посте будут детские и санузлы.
Обмерочный чертеж.

План расстановки мебели

Прихожая, коридор.





Кухня


Гостиная

Спальня

Стоимость дизайн-проекта:
- до 60м2 - 1800руб./м2
- от 60 до 110м2 - 1600руб./м2
- от 110 до 150м2 - 1200руб./м2
- от 150 до 200м2 - 1100руб./м2
Моя почта: Naamah1987@yandex.ru
Мой телефон: 8-905-767-13-32