Неоклассика для девчонок!
Авторские проекты дизайнеров.(Посты не по теме будут удаляться!)При покупке заказчиками эта уютная квартирка площадью 44 кв.м была со свободной планировкой - то есть с возможностью расставить стены и перегородки, как душе угодно. Перед нами стояла задача сделать из однушки двушку: вместить сюда спальню и гостиную-гостевую. Смотрите ниже, что получилось!

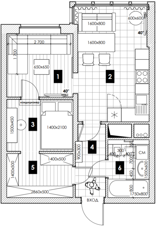
Кухня с панорамным видом - просто мечта! Мы объединили лоджию с кухней, чтобы максимально увеличить площадь. Получилось и правда круто! Здесь чуть более 15 кв. м, есть уютный диванчик и телевизор, чтобы посидеть с друзьями или посмотреть за ужином кино в одиночестве.

Обычно мы стараемся оттенить чем-то белые фасады - ярким фартуком или стенами. Но здесь решили сделать всё белым: хотелось подчеркнуть воздушность интерьера, добавить простора. Светлая кухня не выглядит скучной и блёклой, потому что глазу есть за что зацепиться. Тут притягивают внимание молдинги на кухонных шкафчиках и стенах, золотистая фурнитура, плитка на полу, цветные мягкие стулья и цветочные принты в рамах в столовой зоне - пусть все эти детали не яркие, но они в совокупности делают интерьер кухни очень интересным и насыщенным.

Гостиная получилась маленького размера, всего 8 кв.м :) Что поделать, перепланировка однушки в двушку крадёт место! Если разложить диван, то останется проход для того, чтобы пройти вдоль стены с телевизором. Но и цель достигнута: нам нужно было сделать изолированную комнату, в которой можно посидеть вечером с книгой или перед теликом, и где могли бы при случае переночевать родственники или друзья. За дверью слева находится миниатюрная спальня - чтобы в неё хоть немного проникал дневной свет, мы сделали межкомнатные двери с матовыми стеклянными вставками.

Это - вся спальня, да. Такая малютка размером с кровать. :) Зато отдельная! Чтобы расширить визуально пространство, мы сделали одну стену зеркальной - ту, что за туалетным столиком. Я знаю, есть люди, которым не понравилось бы спать напротив зеркала, но у заказчицы, к счастью, на этот счёт предубеждений нет. Слева, за шторкой, находится большая гардеробная.
Совет: Очень маленькую комнатку лучше сделать максимально светлой, с однотонными стенами без крупных рисунков и картин. Визуально можно увеличить пространство с помощью крупных зеркал и глянцевой мебели. Чтобы комната без окна не превратилась в мрачную каморку, выбирайте дверь с крупными стеклянными вставками, через которые хоть немного будет попадать дневной свет.

Сантехника золотого цвета выглядит очень необычно, но, как всё необычное, стоит дороже. :) Санузел редко входит в дизайн-проект, однако здесь заказчики решили не экономить на визуализации. Здесь нет каких-то невероятных дизайнерских решений, могу только обратить внимание на идею с тем, как можно изящно вписать стиральную машину под столешницу с умывальником. Главный секрет в том, чтобы стиралка и мебель были одинакового цвета.

Вот и план квартиры, наглядно демонстрирующий, как из однушки сделать двушку. Возле спальни - вместительная гардеробная, в которой прячутся все вещи, в том числе и верхняя одежда. Благодаря этой комнате удалось не перегружать гостиную и спальню лишними деталями - комодами, полками и стеллажами, не говоря уже о шкафах, которые попросту некуда было бы поставить. :)