Перепланировка. Имеет смысл или нет?
Интерьерное решение жилых помещений.Девочки, всем хорошего дня!
Ремонт мой никак не дойдёт до стадии «завершено», а так хочется чём-то поделиться, но пока нечем 😔
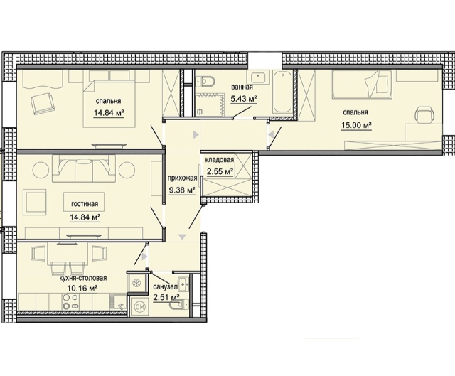
Сегодня я к вам с другим вопросом. В выходные приезжали друзья, они в ожидании 3-го ребёнка и ключей от новой квартиры. Мечтали вместе, расставляли мебеля в их новое гнездышко. И вот пришла идея об увеличении кухни. Хочу послушать вообще мнение, сильно ли безумна идея или все-таки стоит ее рассмотреть. Что имееем: мама, папа, сын 13 лет (часто гостит у родного отца, по несколько дней и даже недель, характер сложный, к младшим особого интереса нет, нужно отдельное помещение), сын 1,5 года и ещё вот-вот один сын появится, и маленькая Джек Рассел. Квартира покупалась на этапе стройки, такого количества детей не планировалось, квартира в ипотеке, продать/купить новую исключено. Семья гостеприимная, гости по минимуму человек 10 бывает, любят круглые столы и настольные игры. Очень хотят отдельную гостиную. Но тогда всех троих детей нужно в одну комнату селить, не представляю как?!?! Но вот мне пришла в голову такая идея, снести часть стены у прилегающей к кухне комнаты, отрезать у неё половину и отдать в кухню, сделав Г-образную кухню-столовую. А оставшуюся половину комнаты, выстроить стену, но проблема с освещением, вентиляцию тоже нужно продумать, и полкомнаты отдать старшему, получится маленький чуланчик, около 8 метров, без естественного света... но старший ребёнок будет рад даже таким метрам, главное что отдельно от младших. Но вот насколько это нормально жить почти в шкафу?! Ребята ключи ещё не получили, точных замеров нет, есть только планировка от застройщика. Посмотрите, пожалуйста, как все же лучше поступить? Увеличить кухню и отдельную комнату-шкаф старшему? Или всех троих в одну комнату? Да, и кровати 2-х ярусные тоже не рассматривают, младшим будет с выкатным дополнительным местом, скорее всего. Спасибо всем большое!!!

