Дизайн-проект "Семейные традиции". Часть 2-ая.
Авторские проекты дизайнеров.(Посты не по теме будут удаляться!)Всем добрый день!

Совсем не было времени дописать вторую часть поста. Вот наконец!
Напомню, что мы сделали проект большой 5-ти комнатной квартиры в Новой Москве для семьи из 6 человек (папа, мама и четверо детей).
В этом посте я должна была показать детские и ванные комнаты. Но мы договорились с заказчицей, что санузлы мы оставляем в виде эскизов, т.к. ей с ними итак все понятно. А одна из детских выглядит больше как кабинет, по решению старшей дочки.
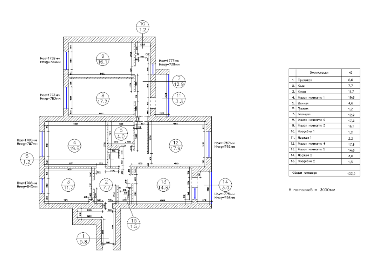
Чтобы было проще ориентироваться, продублирую чертежи обмеров и расстановки мебели.

Детская девочек (3 и 5 лет).

Детская новорожденного мальчика

Комната-кабинет старшей дочки

И эскизы санузлов тоже покажу

Стоимость дизайн-проекта:
- до 60м2 - 1800руб./м2
- от 60 до 110м2 - 1600руб./м2
- от 110 до 150м2 - 1400руб./м2
- от 150 до 200м2 - 1200руб./м2
Моя почта: Naamah1987@yandex.ru
Мой телефон: 8-905-767-13-32