Уютная квартира для семьи из 4 человек 80 м2
Авторские проекты дизайнеров.(Посты не по теме будут удаляться!)Всем прекрасного воскресного вечера ! 🙂

Хочу познакомить вас со своим новым проектом для семейной пары с двумя детками (девочка 1,5 годика и мальчик 7 лет )
С моими работами можно познакомится в дневнике и по ссылке @Dinterior12 😉
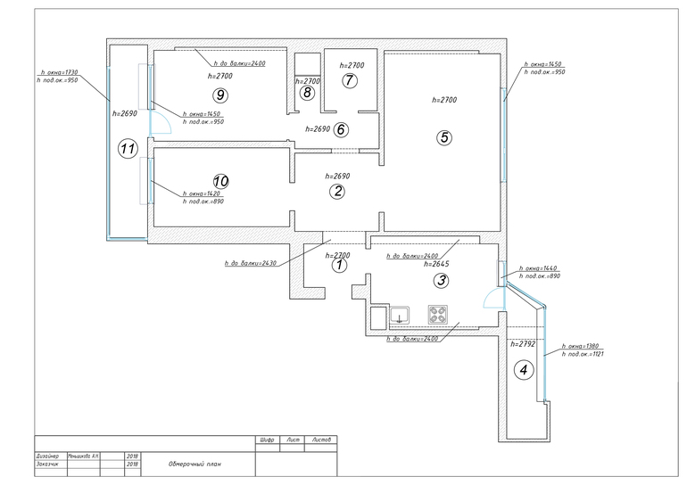
И как всегда начали мы с перепланировки, была куплена трехкомнатная квартира.
Задачи были поставлены на планировку такие:
-две отдельные детские
-отдельная родительская спальня
-объединить пространство кухни с гостиной и холлом
-отдельный обеденый стол
-дополнительное спальное место когда приезжают гости ( в детской мальчика разместили диван)
-также разместить большое количество фотографий в рамках и магнитов после путешествий
Для кухни необходимо было вместить:
-встроенный духовой шкаф с СВЧ
-встроенную кофеварку
-встроенный холодильник
-дополнительную встроенную морозильную камеру
-посудомоечную машину 60 см
Перепланировку смотрите ниже 👇
На данный мосент уже идет реализация проекта фото 👇
Кухня-гостиная.





Спальня.



Детская для девочки.


Детская для мальчика


Ванная.


И балкон № 4 необходимо сделать мужской зоной ,где глава семейства мог бы работать.

План ДО перепланировки

План перепланировки с расстановкой мебели.




Всем спасибо за внимание ! 😊
Eshta
Красиво! Очень классное цветовое решение! Хотела спросить про отделение зоны прихожей от гостиной - у вас там будут раздвижные перегородки?
16.05.2018
Ответить
Анастасия Дизайнер интерьера
Спасибо, перегородка будет складная на плане показано .
16.05.2018
Ответить
МекМек
Ооооочень здорово!! Обожаю серо-голубую с бежевым гамму, для меня кухня-гостиная и спальня идеальны!!!
14.05.2018
Ответить
Анастасия Дизайнер интерьера
Длину штор нужно подбирать по своим вкусам и предпочтениям,это все индивидуально
14.05.2018
Ответить
Irylen
А как разделили окно в спальне? Я понимаю, что стеночку поставили, последнее фото, видимо, как раз часть этого окна в гостиной, а как на счет внешнего вида здания и нарушении архитектуры?
14.05.2018
Ответить
Анастасия Дизайнер интерьера
Никакого нарушения внешнего вида здания , часть окна оставили в спальне часть поменяли , там изначально в стеклопакете был заложен широкий импост для перегородки , с внешней стороны выглядит просто как окно
14.05.2018
Ответить
Мирка
Очень красиво, но для меня слишком холодно. Очень много белого, синего и серого. Хотя если окна квартиры полностью выходят на юг, это может быть оправдано.
13.05.2018
Ответить
Анастасия Дизайнер интерьера
Цветовая гамма пожелание заказчиков , голубой, серо-голубой, серый
13.05.2018
Ответить
Оставшиеся комментарии доступны после регистрации
Зарегистрируйтесь и получите полный доступ ко всем функциям сайта.