Квартира для бизнес-леди 77 м2
Авторские проекты дизайнеров.(Посты не по теме будут удаляться!)Всем доброго вечера 😌

Готов еще один проект для молодой девушки в стиле неоклассики .
Квартира находится в Тушино 2018 и там завтройщик уже предлагает свою расстановку и дизайн , но заказчица решила адаптировать квартиру под себя и сделать тот дизайн-проект в котором будет комфортно жить с учетом своих потребностей и пожеланий.
Начали с перепланировки,обычно в планировках просят объединить пространство кухни и гостиной в этом случае мы делали два отдельных пространства.
Задачи:
-сделать кухню отдельным помещением
-изменить назначение комнат (раньше где была гостиная, сделали спальню)
-сделать гардеробную
-постирочную
-разместить стеллажи для книг
-сделать зону для чтения
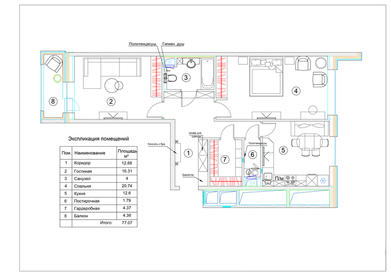
и вот что получилось планировка ниже ...
Прихожая.


Гостиная.


Кухня.



Спальня.



Санузел.


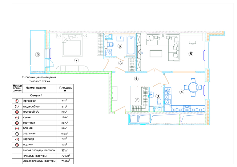
План от затройщика

План после перепланировки

Благодарю за внимание 😌
