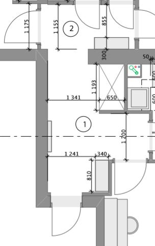
Проект коридора
Авторские проекты дизайнеров.(Посты не по теме будут удаляться!)Приветствую всех! В продолжении поста о кухне сегодня покажу вам коридор этой же квартиры) План коридора

И вот такой коридор будет

Объявление https://bazar.babyblog.ru/item/371319
Всем спасибо за внимание!
Елена Янушина
Здравствуйте, подскажите что за светильники- стаканчики использовались в проекте?
26.06.2018
Ответить
ZhannaT
Здравствуйте! Светильники http://www.eseolight.ru/catcbsi/spoty/lightstar/potolochnye/binoco_052016/
27.06.2018
Ответить