Проект кухни-гостиной для дачи
Авторские проекты дизайнеров.(Посты не по теме будут удаляться!)Доброго времени! Сегодня покажу вам проект кухни-гостиной для дачного домика. Будет проживать молодая семья с ребенком. Основное время с гостями будут проводить на веранде)

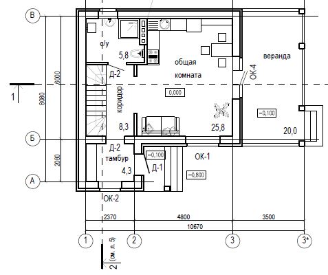
Данный план расстановки был прислан заказчиком. Расстановку мы переделали)




Пожелания были спокойные цвета, барная стойка вместо обеденного стола (в проекте идея переросла в остров).
Объявление https://bazar.babyblog.ru/item/371319
Всем спасибо за внимание!
Марат Дынин
А стол или столы выбрали уже для кухни-гостинной? Если нет, то сюда посмотрите https://mebel169.ru/stoly/ - мы там и сол заказывали и стулья и другую мебель для кухни. Цены нормальные.
27.11.2020
Ответить