"Langkawi "Дизайн квартиры 85 кв. м
Авторские проекты дизайнеров.(Посты не по теме будут удаляться!)Всем Привет!
Автор проекта : Ксения Морозова , студия BenoaDesign
Место : Москва
Размер : 85 кв.м
На создание этого проекта, меня вдохновила моя поездка в Малайзию ( остров Лангкави)( и пожелание заказчиков таких цветовых сочетаний)
Остров Лангкави - это настоящий рай для путешественников, которые предпочитают комфортабельный и спокойный отдых. Это то что хотели видеть владельцы в этой квартире.
Начнем...)
https://bazar.babyblog.ru/item/939559

Моя вдохновляющая фотография

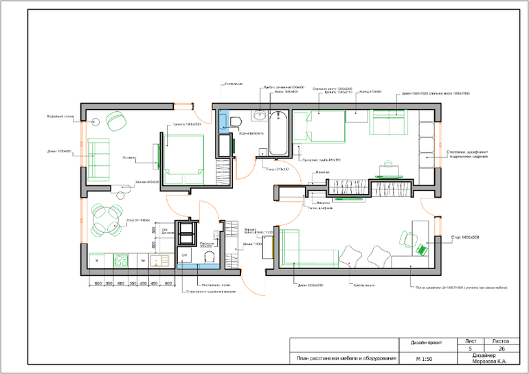
План квартиры

Пространство поделили между кухней- гостиной ,и спальней (с помощью стенки перегородки.), двумя детскими, и двумя санузлами.Теперь личное пространство есть у всех членов семьи.
Кухня гостиная.
Для этого пространства выбраны светлые, природные оттенки. Пол по всей квартире ( кроме санузлов) выбран единый- серо-белый ламинат.
Основная линия кухни включает в себя несколько колонн: в них встроили холодильник и бытовую технику.Для обеденной зоны выбрана мебель из ротанга, чтобы можно было еще больше прочувствовать тематику отдыха, словно вы все еще там, в путешествии..

В Гостиной, владельцы квартиры хотели установить эл. камин , чтобы по вечерам устраивать приятные встречи с семьей..Пространство между кухней и гостиной разделяет небольшая барная стойка. Выпивая утренний кофе , можно посмотреть немного новостей по установленному ТВ в гостиной.

В зоне спальни так же предусмотрен небольшой встроенный шкаф

Детские комнаты.
В детских комнатах мы решили поработать со смежной стеной и сделать места для встроенных шкафов .Для комнаты мальчика и девочки , так же выбраны светлые оттенки.

В детской девочки установят вот такой подоконник сидение, с дополнительными местами хранения.


Санузлы.
В основном санузле установили ванну ( 180 см. длинной)
Плитку использовали так же с орнаментом.

В другом санузле установили стиральную и сушильную машину в колонну .

Коридор
Чтобы сохранить солнечное настроение интерьера, были выбраны такие интересные обои с тематикой растительности.
