Девчонки, помогите пожалуйста расставить мебель в прихожей:)
Вопросы и ответы
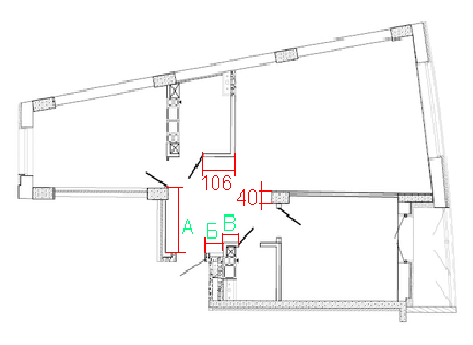
Имеем прихожую около 12 м.кв,но с очень узкими простенками. Очень старалась рисовать план с размерами:))) программы к сожалению освоить не смогла. Из того, что уже есть-это шкаф, Лавочка и Вешалка напольная (на рисунке с размерами), хотелось бы ещё вместить зеркало, ну и если возможно, то обувницу(я максималистка:)
Irylen
У вас плана квартиры в целом нет?
Я так понимаю слева стена полностью свободна? Там входа в комнату нет? Размещайте все там. А зеркало можно напротив в простенок между спальней и гостиной повесить
06.09.2018
Ответить
Екатерина
Там просто глубина простенка 32 см всего, а шкаф 54 см глубиной:( Или нормально будет смотреться, если его ближе к входу в детсую поставить и подальше от входа в квартиру?
06.09.2018
Ответить
Irylen
У вас выбора нет))) ставьте максимально к верхнему коридору. Сколько тогда остается до угла со входом в квартиру? Войдет сидушка?
06.09.2018
Ответить
Екатерина
До угла со входом остается 60 см. А если лавочку разметить слева от входа, а шкаф по стене ванной? которая 106 см у меня подписана? или наоборот там лавочка, а шкаф слева по длинной стене?
06.09.2018
Ответить
Irylen
а если вам выровнять ваши выступы: там где Б установить стеллаж, полочками к стене А. Тогда можно будет поставить нормальную обувницу и зеркало повесить
06.09.2018
Ответить
Екатерина
Выступ убрать не получится, т.к. сделана уже чистовая отделка. Шкаф 98 см в длину и 54 см глубиной
06.09.2018
Ответить
Irylen
убрать визуально - поставить стеллаж, можно встроенный, чтоб получилась сплошная стена (там где розовый овал у меня). И уже у этой ровной стены, нормальной по длине можно поставить или лавочку, или обувницу
06.09.2018
Ответить
Irylen
Вариант лавочка у стены 106 мне не нравится, чтоб присесть и снять обувь, вам придется через весь коридор идти в этой самой обуви. Лавочку надо ставить сразу у входа
06.09.2018
Ответить
Irylen
Вешалку напольную либо в спальню для повседневных вещей, либо на дачу. Она в вашем коридоре врядли приживется, будут постоянно ее сбивать
06.09.2018
Ответить

Размеры можно уточнить? (буквы)