Из двушки в трешку
Вопросы и ответыДевочки,нужен коллективный разум:)Есть 2ка 60 кв.м.Семья -Мама,Папа,сын 4 года,дочь 1,5 года.
Как лучше сделать распределение комнат?
1.Вариант Перенести кухню в большую комнату(у нас 2 этаж,под нами нежилые помещения),разделив большую комнату на две части,ближе к окну наша спальня,в другой части кухня.А маленькие комнаты детям.
2 Вариант Оставить все как есть. Большую комнату отдать детям разделив ее на зону,маленькая наша спальня.
Жду ваши советы:) 
Elena
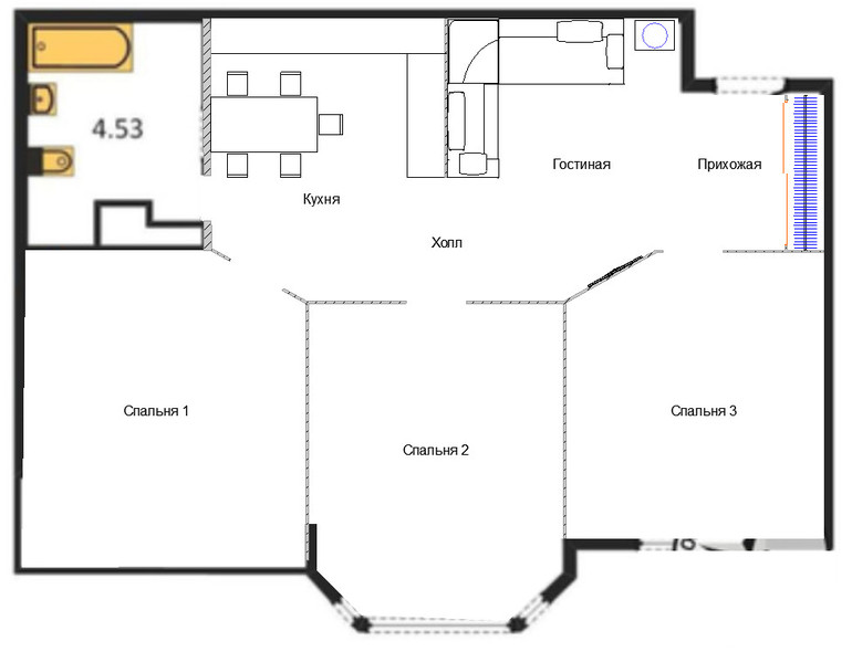
Можно подумать в этом направлении (как идея без размеров):
Поработайте с профессионалом, вам предложат варианты перепланировки по вашим размерам.
Поработайте с профессионалом, вам предложат варианты перепланировки по вашим размерам.
08.09.2018
Ответить
Вера
Еена, прям то, что я имела ввиду! Ну, и где же тут клетушки? Комнаты по 8 и 12 кв.м., как и были изначально. Там прекрасно разместятся и шкафы, и рабочие места, кровати. Родительская спальня с большим эркерным окном. Входная "грязная" зона находится в стороне. Так что ни зимой, ни в межсезонье не будет проблем с грязью в гостиной. Двери из санузла не выходят напрямую в кухню-гостину. Очень хорошо получилось здесь показать одно из требований снип. Признаться, как раз этот момент меня смущал. Кухня-ниша встала отлично, будто всегда здесь и должна была быть. Зачем огромные шкафы-вагоны на этом месте? В небольших квартирах копить всякий хлам - непозволительная роскошь. Мещанству здесь не место. Гостиная зона тоже удалась. Разместиться здесь всем вместе будет удобнее, чем на восьмиметровой кухне. В итоге квартира стала выглядеть гораздо просторнее и функциональнее за счет того, что избавились от большого коридора и выжали максимум КПД. Теперь в ней можно проживать с комфортом долгие годы. Выплачивать ипотеку, тратить средства на образование детей и путешествия, наслаждаться жизнью сейчас, а не трястись над каждой копейкой, откладывая ее на расширение ближе к пенсии )) Надеюсь, если автор решится на переделку, то обратится к профессионалу за планировочным решением, соответствующим точным размерам квартиры. У этой услуги подъемная стоимость.
08.09.2018
Ответить
selena1002
Елена, добрый день!
Спасибо за высокую оценку. Только это при условии, что нет несущих стен).
08.09.2018
Ответить
Elena-366
Перенос по мне очень нелегкий в плане труб. Пока дети мелкие - известно большую комнату. А потом мб на тарелку менять... Если бы стояк по другому располагался, то можно было бы перенести...
07.09.2018
Ответить
Эля
А не проще ли приобрести 3-ку с таким же метражом? И голову ломать не надо, и деньги на перепланировку тратить)
07.09.2018
Ответить
Вероника
Я бы сейчас сделала большую комнату общим пространством - кухня-гостиная-игровая. И никаких кроватей в этой комнате. Пока дети маленькие - вы преимущественно будете именно в этой комнате все вместе.
Спальню родителям - на месте бывшей кухни, причем лоджию не стала бы присоединять, но утеплила бы. Потому что отдельное изолированное пространство не лишнее. Рабочее место там можно организовать, к примеру.
А детей - в комнату без балкона вместе. Они маленькие еще, им еще будет неуютно каждому по комнате выделять.
А когда у них появится потребность в разделении и отдельных комнатах - вот тогда развести их по маленьким, и разгородить раздвижными дверями большую комнату на родительскую спальню и кухню. Тогда уже и не нужно будет столько места для всяких игр, как сейчас.
Просто предусмотреть возможность такого разделения и планировать сразу.
Никакой мебели на заказ в маленькие комнаты не требуется, кстати, как тут пишут))) сейчас такое разнообразие разной мебели в любые пространства и бюджеты))
Насчет переноса кухни и стен. Самый бюджетный вариант может оказаться - когда вы оставите плиту и мойку на территории кухни, но сделаете проем в стене под рабочую зону. (Частичная выемка с соответствующим усилением и укреплением стены возможна даже в несущей стене и может выйти дешевле, нежели тянуть коммуникации в комнату). Но надо узнавать конкретно в вашем случае как оно будет.
Объединять коридор прям совсем с комнатами - не стала бы. Входная дверь - у нас межсезонье, зима. Нужна обязательно прихожка. Максимум перенести вход в большую комнату, тогда по всей длине коридора можно просто огромный шкаф-кладовку поставить.
Вот так
07.09.2018
Ответить
sunny
Вы в такую перепланировку вбухаете от 500 тыс. и выше.
Поищите другие варианты, если ещё не поздно.
07.09.2018
Ответить
Анна
У меня возник вопрос. Как вы собираетесь переносить мокрую точку из кухни в комнату? Трубы должны располагаться под углом для обеспечения самотека. То есть труба от раковины должна пойти через комнату (бывшая кухня), да еще и под углом к точке слива.
Как это сделать?
07.09.2018
Ответить
Вера
Вы самое главное еще не указали - в квартире газ? Если да, то тяжело будет перенос осуществить (если это вообще возможно). А так мне очень понравился Ваш первый вариант. Детям по комнате, Вам - спальня у окна. Остальное - кухня, объединив ее с коридором. Кухня без окна - ничего страшного! Просто грамотно продумать освещение. Грязная зона окажется в стороне. Трубы протянуть из санузла.
Да и перегородку между Вашей спальней и кухней-гостиной можно сделать с большим окном (на ночь закрывать шторой, а днем открывать для прохождения естественного света). Типа такой, как в проекте Антона Печеного

Да и перегородку между Вашей спальней и кухней-гостиной можно сделать с большим окном (на ночь закрывать шторой, а днем открывать для прохождения естественного света). Типа такой, как в проекте Антона Печеного

07.09.2018
Ответить
Анастасия
Я бы так не заморачиваться. Зачем каждому ребенку по комнате, они там и находится не будут, всё равно будут вместе в большой комнате. Я бы им большую отдала, спальню себе
07.09.2018
Ответить
Вера
Ну, вот все мы разные )) А я бы заморочилась. Потому что мальчику и девочке (равно как и однополым детям с большой разницей в возрасте) жить в одном пространстве не есть хорошо. Не известно, как долго автору придется жить в этой квартире. Дети будут взрослеть, интересы их расходиться. Поэтому будет лучше, если у каждого будет свой уголок , где они смогут уединиться. А для того, чтобы находиться всем вместе, будет общая территория кухня-гостиная. Да, все комнаты не велики, но что делать? Наши финансовые возможности ставят нас в определенные рамки.
07.09.2018
Ответить
Катик
А я бы вместо вбухивания кучи денег на такие перегородки, подкопила чуть-чуть и года через 3 взяла трешку.
07.09.2018
Ответить
Вера
Так лучше, конечно! При таком составе семьи трешка определенно лучше! )) Но Вы, видимо, не читали комменты. Автор берет ипотеку и сомневается, что не только через три года, но и через пять лет сможет поменять жилье. Раздолбать одну стену и построить другую в любом случае дешевле, нежели купить трешку, а не двушку.
07.09.2018
Ответить
Катик
Раздолбать перегородку и через 5 лет можно если вариантов не будет. А если будут, зачем долбать сейчас? Автор не в москве живет, на периферии стоимость таких перегородок и согласований и стоимость площади все таки ближе друг к другу)
07.09.2018
Ответить
Вера
Я тоже живу в регионе. И уж, поверьте, стоимости не равнозначны )))Может людям проще сразу сделать глобальный ремонт, нежели потом куда-то переезжать с детьми и после одного ремонта ломать-крушить все и затевать новый с переделкой абсолютно всего, включая электрику и сантехнику. Сомнительная экономия полагаться на авось.
07.09.2018
Ответить
Катик
Я не вижу смысла в глобальном ремонте в изначально не подходящем семье помещении, когда можно просто сделать абы какой ремонт и поскорее расширяться. В разговоре нашем уже тоже не вижу, удачи)
07.09.2018
Ответить
Вера
Каждому - свое! Провести 5-7 лет жизни (минимум) в абы каком ремонте, надеясь на светлое будущее, я бы точно не стала. И Вам всего хорошего! ))
07.09.2018
Ответить
Анастасия
знаете у нашей периферии стоимость жилья в соотношении зарплат, приблизительно такая же как и у вас))) а подкопить с 2мя детьми и ипотекой....на трешку))) ну такое))) за гранью реальности
07.09.2018
Ответить
Оставшиеся комментарии доступны после регистрации
Зарегистрируйтесь и получите полный доступ ко всем функциям сайта.
Жаль, что не в масштабе...