Оцените перепланировку.
Перепланировки стен. Согласование перепланировки квартир и нежилых помещений.Добрый день.
Помогите, пожалуйста, оценив предполагаемую перепланировку. Дано - 3 комнатная квартира на среднем этаже в монолитном доме с электроплитой. Есть двое разнополых разновозрастных детей, плюс необходимость 2 рабочих мест для меня и супруга, которые закрываются - маскируются - чтобы спрятать рабочий бардак. Комнату с лоджией мы оставляем взрослым. Еще мы семья плюшкиных, и огромное количество шкафов - для нас оптимально.
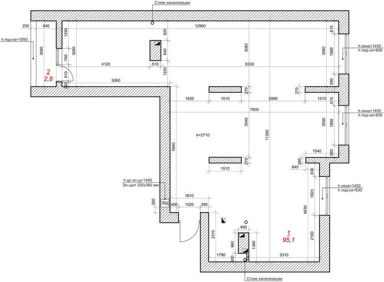
Обмерочный план.

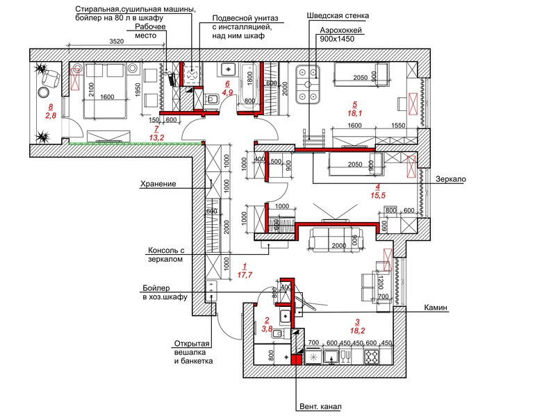
Наш вариант

Сан узлы на своих законных местах, кухня чуть увеличивается за счет комнаты - но у нас в данной ситуации это согласуемо.
Рыжая
Я за маленькую спальню родителей. Завлекает наличие в ней лоджии. Сесть с супругом на лоджии, закрыть две (спальня и лоджия) двери и пошептаться без лишних ушей.
Просто через год-другой у детей начнется у тебя больше у меня меньше, и это для детей нормально, лучше сразу одинаково.
04.11.2018
Ответить
Оксана (дизайнер, инста: @persona_story)
Ольга, простите, но я не в восторге:
1) нет гардеробного шкафа в комнате супругов. Это почему ?😳😳😳 не царское это дело бегать в нижнем по квартире.
2) супругам (две персоны) выделена самая маленькая комната, причём самая большая комната уменьшается. Зачем?😳😳😳 чтобы кухню увеличить?
3) кухню не пришлось бы увеличивать, если обеденный стол развернуть на 90 градусов.
4) самую большую комнату я бы отдала супругам. Там можно разместить и рабочий стол и гардеробный шкаф.
5) дверь в с/у надо в вашей ситуации делать открытием наружу.
Я думаю так ...
01.11.2018
Ответить
Ольга
Оксана, спасибо за комментарий!
Мы рассматривали вариант с переменой спальни супругов и большей детской местами. Взрослая спальня в большой комнате встает замечательно. Детская малютка, но тоже возможна. Нас останавливает лоджия. Если она находится в детской, то не будет использоваться. Лет 5 никем - тк дочь у нас очень любопытный и бесстрашный товарищ. А в дальнейшем это будет часть приватной подростковой комнаты, куда обычно взрослые не приглашаются, чтобы утром выпить кофе, а вечером бокал вина. В общем, отказаться от лоджии мы не можем ) Комната маленькая, надо было делать выбор - или рабочее место для двоих, или шкаф. Рабочее место победило. Для белья планируем поставить неглубокий комод под телевизором. А шкафы рядом в коридоре.
Комнату уменьшили для увеличения кухни, верно. Ниша со стороны комнаты глубиной 40 см, со стороны кухни 55 см (разница из-за широких монолитных стен), ширина 287 см. Как вы видите, мы совмещаем кухню с гостиной и лишнее пространство там не помешает. Детскую вроде это не сильно ухудшает.
По поводу двери в с/у спасибо за напоминание, его пока сильно не обдумывала. Последнее время комната дочки (та, что смежная с кухней) больше волнует, не уверена в расстановке мебели( На эскизе еще детская кухня ДУКТИГ не учтена(
02.11.2018
Ответить
Оксана (дизайнер, инста: @persona_story)
Ольга, на счёт окон Вы зря беспокоитесь.
Окна можно закрывать на ключ. И уже не будет важно лоджия это или обычное окно.
Ну, решили и решили...
02.11.2018
Ответить
Ольга
Спасибо, Оксана, за мнение. Для меня всегда комната с лоджией автоматически взрослая - детям на нее выходить опасно, особо не нужно плюс в самой комнате гораздо темнее из-за лоджии. Квартиры, где каждая комната и еще кухня с выходом на лоджию или балкон мне абсолютно непонятны - света мало, а практическая польза сомнительна. Раньше, когда лоджии или балконы шли бесплатным бонусом, можно было понять радость их обладания - но платить за большое количество бесполезных метров я бы не хотела. Лучше дополнительная комната)
02.11.2018
Ответить
Мария
Интересное мнение:)у нас детская с лоджией, единственное,мы не стали ставить полностью стеклянную дверь в балконном блоке,в гостиной поставили, решили если нужно -есть ещё одна лоджия)
04.11.2018
Ответить
Ольга
Не только у меня - для множества моих друзей лоджия закрыта для детей. А использование ее взрослыми в детской комнате возможно пока хозяин комнаты еще в юном возрасте. Но в основном в таком варианте она место хранение и сушки белья. Мне же в свое квартире хочется от лоджии какой то зоны отдыха)
04.11.2018
Ответить
Мария
Зона отдыха летом, зимой у нас точно не вариант-не настолько теплое остекление и утеплять нет необходимости пока
Но главное у нас их 2,так что одна сыну,одна общая
04.11.2018
Ответить
Elena
Я бы (возможно) рассмотрела бы немного другую расстановку мебели в кухне-гостиной:
01.11.2018
Ответить
Ольга
Спасибо. Мы тоже о таком варианте думали. Немного смущает, что свободного места будет меньше (для активных семейных вечеров с детьми)), но с другой стороны отдельная гостиная зона без прямой видимости на кухню тоже нравится. Предварительно решили сделать 2 вывода под телевизор и технику, чтобы можно было переставлять мебель.
01.11.2018
Ответить
Дарья
По-моему отлично. Это дизайнер или сами? В любом случае все функционально, вроде и придраться не к чему.
01.11.2018
Ответить
Ольга
Спасибо. Это совместный труд. Дизайнер молодец - нам было предложено множество планировок, из которых постепенно вырисовывался этот вариант. Мне кажется. я даже во сне размышляю, куда что лучше расставить)
01.11.2018
Ответить