Планировка
Вопросы и ответыДобрый день. Есть такая планировка трешки. Семья мама, папа, дочь 5 лет. Что можно сделать с кухней и комнатой которая рядом. Объединить или сделать два помещения. Или объединить кухню с балконом? Вроде хочется объединить, но не представляем, как поставить диван с телевизором. Помогите)) Толстые стены монолит, остальное кирпич. Спасибо большое. 
Виктория (дизайнер)
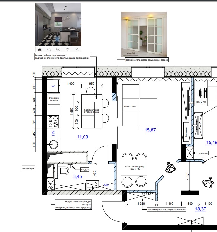
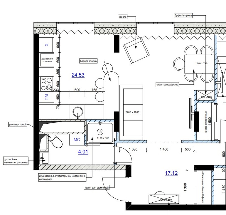
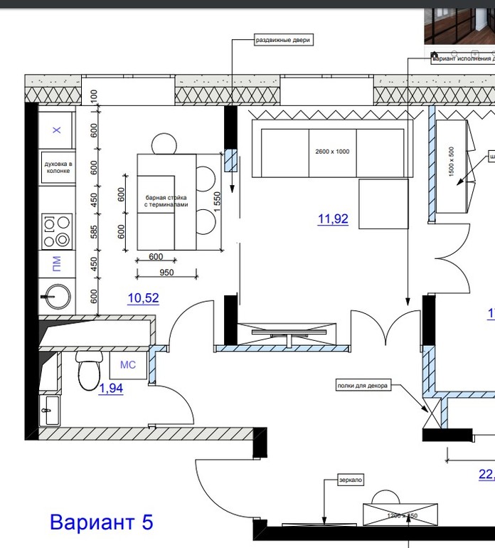
делала квартиру - у хозяйки тоже было непонимание узла кухни-гостиной
вот такие варианты
07.11.2018
Ответить
Аня
Добрый день. Спасибо большое. С вашими картинками все сразу стало понятно. И сразу нарисовалась картинка, что мы хотим) Спасибо!
15.11.2018
Ответить
myskina39
Может вам лучше обратиться к дизайнерам?!!! Вот эта компания занимается ремонтом и дизайном. Может они что-то подскажут.
https://golden-stroy.com/
07.11.2018
Ответить
Дарья
Видела такой приём. Диван и тв можно поменять местами. Где звездочки шкафы или стеллажи. Квартира отличная)
06.11.2018
Ответить
Вера
Я бы не стала ничего объединять. Отдельная комната все же - это отдельная комната. Вдруг потом пригодится? И не обязательно при появлении еще одного ребенка (хотя это в первую очередь, т.к. разница будет большая, да и пол может быть другим), может родители приедут. Да мало ли, что в жизни случается! Поэтому максимум раздвижные двери. Если б кухня была малышкой, то можно было бы подумать. Стол на территории кухни ставить (вот прям, где написано слово "кухня" на Вашем плане), т.к. бегать в гостиную с тарелками - не очень хорошая перспектива.
06.11.2018
Ответить
Rinika
А зачем вообще что-то объединять?
Шикарная планировка для вашего состава семьи: спальня родителей, детская, просторная кухня и гостиная.
06.11.2018
Ответить
Rinika
На приложенной схеме дверь нарисована, а не проем. И лично я бы её дверью и оставила - открыли и получили общее пространство (для приема гостей, например), закрыли и получили два изолированных помещения.
06.11.2018
Ответить
Rinika
Дело вкуса. Ощущения ведь вопрос субьективный и "простор", тем более за счёт потери изолированного помещения в не таком уж огромном жилье, нужен далеко не всем.
Поэтому я и начала с вопроса автору а зачем же именно им что-то объединять надо. А то у меня такое ощущение, что снос стен уже в какую-то навязчивую идею превратился - главное объединить, а что, зачем и надо ли это вообще потом подумаем:(
06.11.2018
Ответить
Оксана (дизайнер, инста: @persona_story)
Планировка хорошая. Надо работать. Если «быстро ответить», то так: Я бы в большой с/у добавила унитаз и стиралку (объединив его с гардеробной) . А для гардероба - большой шкаф напротив входа в квартиру (проем из коридора заложить).
06.11.2018
Ответить
Оксана (дизайнер, инста: @persona_story)
Аня, про гостиную и кухню я тоже ответила. В гостиную вход остаётся из кухни.
06.11.2018
Ответить
Оксана (дизайнер, инста: @persona_story)
Про «отшиб» я не поняла. Гостиная осталась на своём месте. Я высказалась про один вариант возможных действий. А их здесь можно много сделать.
06.11.2018
Ответить
НаталЯ
Я бы просто убрала уход на кухню у туалета. Утеплить балкон. Можно. Больше ничего. Планировка шикарная.
06.11.2018
Ответить
Юлия
Стол вдоль окна комнаты.
Вход на кухню заложить, Су около кухни увеличить. Будет шикарная комфортная квартира для троих.
Лоджию присоединить, там лаундж зону ) или рабочий уголок
06.11.2018
Ответить
Татьяна
У нас похожая планировка. Снесли стену между кухней и комнатной, заделали вход в комнату, на месте снесенной стены перегородка длиной метра 1,5 и высотой около метра. Над ней барные светильники. Диван стоит у этой перегородки, телевизор - напротив кухни.
06.11.2018
Ответить
Оставшиеся комментарии доступны после регистрации
Зарегистрируйтесь и получите полный доступ ко всем функциям сайта.