Перепланировка
Перепланировки стен. Согласование перепланировки квартир и нежилых помещений.Дд, девочки! Сейчас покупаем однокомнатную квартиру. Хочу её переделать в двушку. Подскажите, кто в этом понимает? Стоит ли заморачиваться? Квартира в военной ипотеке, поэтому узаконить надо обязательно. Но боюсь, что заплачу денег, а на выходе мне откажут... 
Оранжевая квартира... Хочу из кухни сделать комнату (назвать её кабинет для БТИ). Заделать дверь в кухню, а кухонный гарнитур расположить вдоль ванной, которая обозначена на чертеже. И комнату поделить на 2 части, вровень с кухней. Около балкона часть-спальня, а остальная часть кухня/гостиная... Вот и не могу понять, узаконят? Ведь мокрую зону не переношу, кухня вообще по идее в кухне и остаётся, просто сбоку... Несущей части нет между кухней и гостиной... Подскажите, пожалуйста! И если этим заняться, то с чего начать? И сколько обойдётся узаконить? Спасибо!!
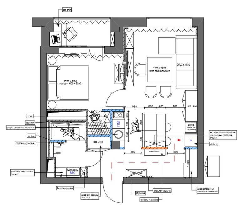
Переделывала подобную квартиру под сдачу. Остановились на таком варианте планировки. В моем случае перепланировка незаконна, но можно эту идею подогнать под ваши задачи
Главное, чтобы новая кухня-ниша была не менее 5 кв.м.