Планировка квартиры-студии
Перепланировки стен. Согласование перепланировки квартир и нежилых помещений.Добрый вечер, девчонки!
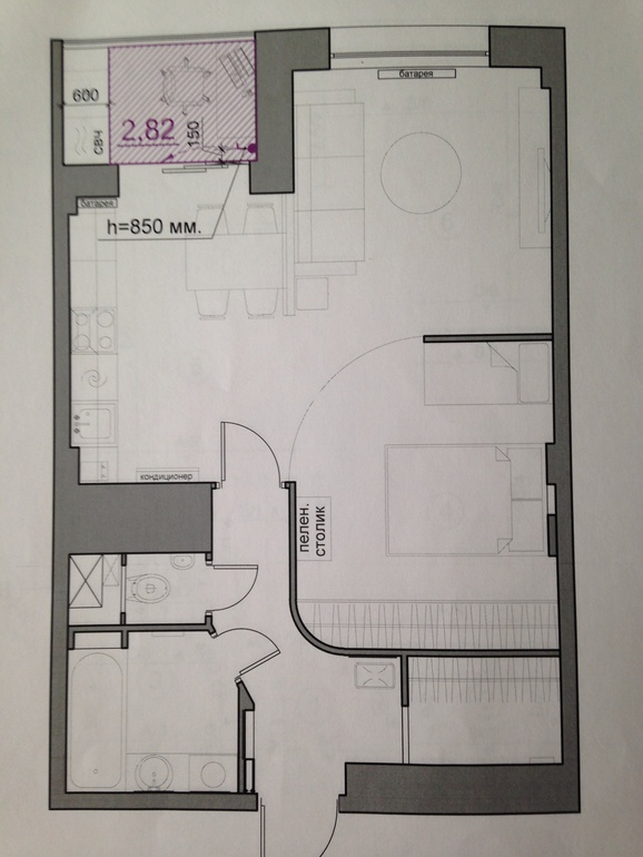
Моя сестричка собирается покупать квартиру-студию, однушку. И она меня попросила помочь ей с планировкой. Изначально квартира без отделки, стен почти нигде нет.

Сестра - молодая девушка, 20 лет. У нее требований немного, а именно: хочет душ, а не ванну и хочет отделить как-то спальную зону, т.е. найти место для кровати.
Я набросала такой вариант:

С нормами СНИПа знакома приблизительно)) Читала, что кухня-ниша должна быть не менее 5 м2, но также читала на сайте в долевке, что кому-то одобрили похожий вариант кухни-ниши с последующим узакониванием перепланировки.
Может, Вы увидите более удобный и очевидный вариант?
За все советы я Вам буду очень благодарна!
Наталья (окрашивание и "лечение" волос)
Вот решение похожее, если хочется сделать кухню-гостиную. Для меня важно иметь зону спальни у окна.
23.12.2018
Ответить
АННА
Здравствуйте, спасибо за план! Надо подумать и взглянуть на все с другой стороны))
24.12.2018
Ответить
Оксана (дизайнер, инста: @persona_story)
Анна, на этот вариант можете не смотреть. Кухню на территории жилой комнаты вам не узаконят, ещё и оштрафуют (если у вас не первый этаж).
24.12.2018
Ответить
Наталья (окрашивание и "лечение" волос)
Оксана, похоже, имела в виду, что если Вы не отзеркалите под свою квартиру. Просто это план Вашей же квартиры с картинки, зеркал но перевернутый справа налево.
25.12.2018
Ответить
Наталья (окрашивание и "лечение" волос)
Так тут всё точно, как у Анны, но зеркально. Я именно с тем предложила его, что соответствует плану.
25.12.2018
Ответить
Оксана (дизайнер, инста: @persona_story)
Наталья, да! Если зеркально, то можно.
Я тоже предлагала все оставить на своих местах, а большую комнату разбить на две части.
Сори )))
25.12.2018
Ответить
Виктория (дизайнер)
Почему не смотреть на этот вариант? Все законно: Кухня на месте Кухни, спальня на месте комнаты. Гостиная без Окна получается
24.12.2018
Ответить
Оксана (дизайнер, инста: @persona_story)
Анна , если я правильно поняла, то кровать будет утоплена за «кухней». Да?
а Вам лично удобно забираться на кровать со стороны ног?
Что-то вы накуролесили ....
а переодеваться она будет бегать куда? На кухню?
Вариант перепланировки у Вас не получился (я так считаю).
Зачем проблемы с перепланировкой? Если уже всё на своих местах.
Просто большую комнату разделить на две зоны, одну (с кроватью ) продумать получше и сделать её закрывающейся .
23.12.2018
Ответить
АННА
Здравствуйте, спасибо за мнение. Оно очень для меня ценное, как и все другие. Для этого я, собственно, и обратилась за советом на форум. Я также как и Вы, изначально считала, что планировка отличная уже такая, какая есть, но сестре она не очень нравится. Хочет, чтобы были и спальня, и гостиная. Возможно, попробую ее переубедить.
24.12.2018
Ответить
Алла Арт терапевт психолог
Шикарный вариант Вам предложили в плане,ваш вариант узаконивать нужно в плане переноса мокрых зон.
23.12.2018
Ответить
АННА
Да, спасибо, я согласна, что вариант действительно шикарный)) Но если вернуться к моему варианту, я же вроде оставила кухню на месте кухни, только стены по-другому выстроила.
24.12.2018
Ответить
Алла Арт терапевт психолог
тут в водном источнике, Вам придется его тащить.Не далеко но все же. В целом ваш вариант тоже может быть
24.12.2018
Ответить
Elena
Прямо как у нас квартира.
У нас вот такое решение:
У меня в дневнике есть и фотографии решения.
У меня в дневнике есть и фотографии решения.
23.12.2018
Ответить
АННА
Здравствуйте, Елена! Спасибо за Ваш план! Я читала Ваши посты и думала, что у Вас большой дом, судя по визуализации. Вот что значит грамотная планировка, спасибо!
24.12.2018
Ответить
Elena
Вы можете изменить назначение зон. У окна сделать спальную (закрывающуюся), а в глубине гостиную. Мы выбрали такой вариант потому что мне свет важен днем, а ночью окно не важно. А спальная зона хорошо проветривается при таком широком проеме. Днем закрывается шторами и никто не видит.
24.12.2018
Ответить
selena1002
Анна, добрый вечер!
Недавно делала проект квартиры-студии, может быть Вам поможет, правда, у Вас с площадью все в порядке).
https://bazar.babyblog.ru/item/848409
23.12.2018
Ответить
selena1002
Анна, доброе утро!
На здоровье! Если понадобится помощь, обращайтесь)
24.12.2018
Ответить
Елена Д
Открывая кат и читая про студию, я думала увидеть общую площадь макисмум метров 30, где 5 метров под кухню и 14 остальные под гостиную. Да у вас отличная однушка! В 13 метров и диван с зоной тв, и кухню, и стол вместить легко. У друзей как раз кухня 13 метров, я в реале эти размеры видела. А 22 метра отлично и для полноценного спального места, и еще место для учебы/работы останется. Не заморачивались бы вы. Все эти согласования муторно и дорого.
23.12.2018
Ответить
АННА
Здравствуйте, спасибо! Я, собственно, тоже так думала изначально, но сестре не нравится планировка от застройщика. Хотя всегда есть вариант ее уговорить
24.12.2018
Ответить
Елена Д
Решать вам, конечно. Просто мне кажется, что перепланировка это все-таки затратное дело. Может, хоть это станет аргументом. В любом случае, каждый выбирает под себя.
24.12.2018
Ответить
Откорней Докончиков
Честно говоря, я не понимаю почему из 13м2 не сделать кухню-гостиную для одного человека. А а комнате спальня. И никакого гемора с перепланировкой.
23.12.2018
Ответить
АННА
Здравствуйте, спасибо за Ваше мнение. Честно говоря, у себя дома я так и сделала, но сестре не нравится планировка, предложенная застройщиком. Хочет, чтобы были и спальня, и гостиная. Можно было бы просто разделить большую комнату, но... тут тоже много но)) Про тему одного человека - я думаю, надо предусмотреть вариант уже как минимум для двух людей (я думаю, это вопрос недолгого времени).
24.12.2018
Ответить