Студия с двумя окнами
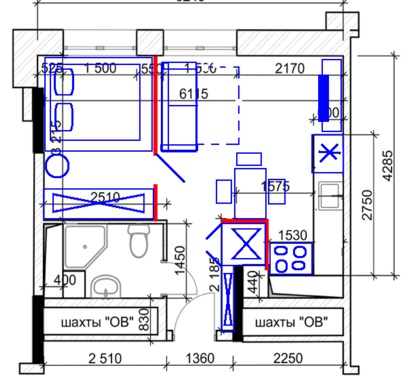
Интерьерное решение жилых помещений.Всем привет. Прошу помощи с расстановкой мебели в такой вот студии с двумя окнами. На схеме ниже указаны фактические размеры. В кухонной зоне и в санузле есть вент.короба - я значками указала с какой стороны установлены счетчики на воду - круглый значок (и там же выход канализации) - т.е. к счетчикам д.б. доступ. С другого края стоит решетка вентиляции (квадратный значок). В нишах под окнами стоят батареи. Черный цвет - монолитная (несущая) стена. Остальное-поротерм.




А это более ранний (теоретический) расчет, с расстановкой, которая показалась мне удачной. Красный цвет - перегородки из ГКЛ. Но там не задействована ниша в кухонной зоне (рядом с вент.коробом)

В квартире будет проживать семейная пара. Желательно наличие изолированной спальни. И очень НЕ хочется душевую кабину - хоть небольшую, но человеческую ванну.
Как вариант скомбинировать раковину и ванну таким образом

или совместить раковину со стиралкой?

Или вотнуть стиралку на кухню? Ааааа, мне нужна помощь 😵
Мария
У меня ваши комментарии почему то не видны, вообщем сайт для меня глючит. И фото не вставляются((( маякните мне в вотсап, у меня мне кажется норм идея есть. 89104905771.
13.01.2019
Ответить
Мария
Здравствуйте, признаюсь я только пролистала комментарии, поэтому не обессудьте если буду повторять чьи то мысли.
1. Меня смутило то, что вы размеры черновой отделки показали, берите все 15 см на отделку, а то и больше. В спальне кровать какой длины получится при таких условиях?
2. Лучше диван убрать с прохода, поставьте небольшой, но в линию с кухней, плохо когда с дивана видно входную дверь, вам будет неуютно жить, какой бы хороший ремонт не был, пройдено, проверено.
3. Стол делайте нормальный, не надо этих барных стоек, пройдено, ненавижу их)))) но попробуйте диван в линию с кухней, телек может быть на стенку к которой стойка подходит, а возле окна стол... но опять эта входная дверь.... блин, видимо стоит делать дверь. В любом случае со спальней по размерам убедитесь, что все ок будет, а то может вся эта планировка сорвётся. Я подумаю на досуге тоже.
12.01.2019
Ответить
selena1002
Хельга, добрый вечер!
Я правильно понимаю, что для того, чтобы иметь подход к счетчикам, достаточно будет лючка в саншкафу? Или там еще какой-то выступ образовался, как у Вас на чертеже? Только двери душа там не откроются. Я попробовала прикинуть по-Вашему только с использованием места на кухне.
Вот, что получается. Меня смущает угол в гостиной. Я бы, наверное, сделала по-другому).
Вот, что получается. Меня смущает угол в гостиной. Я бы, наверное, сделала по-другому).
09.01.2019
Ответить
Мимими
Спасибо за проект, интересно получилось. Да, для доступа к счетчикам достаточно небольшого люка. Я тоже думала про угол в гостиной - не знаю, что там сделать, кроме телевизора. Была бредовая мысль повесить на стену (или на торец шкафа-купе) стол-трансформер, чтобы не занимать стационарным столом и без того небольшое помещение. Типа такого. И стулья тоже складные - их можно хранить в углу комнату (у телевизора) или убирать в шкаф.
10.01.2019
Ответить
selena1002
Хельга, доброе утро!
На здоровье! Главное - есть ванна)) и все "работает". Насчет угла я вчера еще поняла, что сделать, только не было возможности уже). В квартире мало мест хранения, а там такой прекрасный глухой угол).
Туда можно и стол и стулья убрать. Хотя лучше взять мобильный столик-трансформер, на колесиках.
А стулья уже складные, например в Хоффе, и подвесить их в этот шкаф.
А спальное место можно оформить таким образом:
Туда можно и стол и стулья убрать. Хотя лучше взять мобильный столик-трансформер, на колесиках.
А стулья уже складные, например в Хоффе, и подвесить их в этот шкаф.
А спальное место можно оформить таким образом:
10.01.2019
Ответить
Rassy
А если понадобится ремонт сантехнический проводить и залезать в этот люк/стояк, ремонтирующие будут стоя в ванной это осуществлять? Не опасно так "баррикадировать" доступ к трубам?
10.01.2019
Ответить
selena1002
Я даже боюсь сказать, сколько живу в доме)). И ни разу у нас кардинально не меняли трубы стояков. А то, что менялось, вполне возможно сделать через санлюк. Просто возьмите люк большей высоты и ширины под плитку. И ничего страшного, для того, чтобы встать в ванну при ремонте, я не вижу.) Если Вас это как-то пугает, можете поставить душевую кабину с высоким поддоном на всю стену вместо ванны.
10.01.2019
Ответить
Rassy
Я не автор темы... Я для себя уточняю. У меня доступ к люку ванной не перегорожен.
10.01.2019
Ответить
selena1002
Извините, делаю сразу несколько дел одновременно)). Думаю, ответ Вам тоже подходит.)
10.01.2019
Ответить
selena1002
Вы удалили последний комментарий <<i>"Бояться" тут не причем...>, как и несколько предыдущих. Но я отвечу: Вы пишете, что это нужно для Вас, но не излагаете своих условий, на которые надо ориентироваться. Если Вам не подходит такой вариант, то не надо его делать. Я отвечаю автору поста и это будет на ее усмотрение. Если что-то ей будет не понятно или не понравится, она сообщит мне об этом.)
10.01.2019
Ответить
Мимими
Последние комменты удалила я, автор поста. Потому что начался флуд ни о чем. Я за конструктивный диалог.
А вам большое спасибо за идеи, они мне понравились.
10.01.2019
Ответить
Rassy
Спасибо! Все правильно. А я буду знать, что можно удалять не нужные мне (в моих темах) посты.
10.01.2019
Ответить
selena1002
Спасибо, Вы правы. На здоровье! Обращайтесь, сделаем проект).
А я не знала, что можно удалять чужие комменты... И не умею обращаться с постом.((
10.01.2019
Ответить
труамам (Ирина)
Я бы телевизор и диван местами поменяла. Место свободное появится и диван не на виду от входа. И стол лучше журнальный, трансформер.
10.01.2019
Ответить
Мимими
Я думала об этом, но стена, где сейчас кухня и телевизор-монолит. На неё можно вешать мебель и технику. А перегородка будет из ГКЛ, на него телек не повесить. Кроме того свет из окна будет отсвечивать на экране.
10.01.2019
Ответить
труамам (Ирина)
Свет - элементарно, шторы. Как вариант, телевизор можно на стену вверху -1,37
10.01.2019
Ответить
selena1002
Ирина, добрый вечер!
Если поменять местами тв и диван в последнем варианте, то прохода не будет совсем, стул при выдвижении будет упираться в диван. А столик-трансформер, это такой, как я предложила)). Вы ниже смотрели переписку?
10.01.2019
Ответить
труамам (Ирина)
да, я за ваш столик внизу, а верхний 80 на 80 вместе со стульями убрать. И будет простор!
10.01.2019
Ответить
selena1002
Ирина, добрый день!
Спасибо. Только 80х80 нужно не убрать, а как-то модифицировать. Нельзя же каждый день поднимать стол для завтрака). Это не очень удобно.
11.01.2019
Ответить
труамам (Ирина)
Логично
. Хотя, я бы завтракала за журнальным
, не напрягает. Может, барную стойку? Вот где холодильник. Тогда холодильник "лишний" . Или низкий холодильник под столешницу и сместить его ниже, на его место небольшую барную стойку? Рисовать не умею. 🙄
. Хотя, я бы завтракала за журнальным
, не напрягает. Может, барную стойку? Вот где холодильник. Тогда холодильник "лишний" . Или низкий холодильник под столешницу и сместить его ниже, на его место небольшую барную стойку? Рисовать не умею. 🙄
11.01.2019
Ответить
selena1002
Ирина, я так понимаю, Вы хотите оставить квартиру и без зон хранения и без холодильника?)) Это неприемлимо. Можно сделать барную стойку, но на месте стола 80х80, с раскладным радиусным сегментом. На этом всё, свои дальнейшие предложения просьба направлять автору поста, а не мне).
11.01.2019
Ответить
труамам (Ирина)
Извините за беспокойство!
С моей стороны это не было предложениями, а попыткой "примериться"
к дизайнеру моего тауна, т. к. ваши работы мне близки и архитектурно понятны.
С моей стороны это не было предложениями, а попыткой "примериться"
к дизайнеру моего тауна, т. к. ваши работы мне близки и архитектурно понятны.
11.01.2019
Ответить
selena1002
Ирина, не стоит извиняться). Вы можете мне писать в личку или на почту, если Вас что-то интересует по тому или иному вопросу. Автор поста и так удаляет лишнее.) И я поняла, что Вам нравится простор, а в квартирах-студиях, подобных этой, зачастую приходится им поступаться. У меня был проект в квартире-студии, но она было немного больше.
11.01.2019
Ответить
Оксана (дизайнер, инста: @persona_story)
Давайте по порядку:
1) почему унитаз «через дорогу» от стояка?
2) входную дверь надо сделать открытием наружу
3) если будете узаконивать - могут не узаконить (жилая комната должна быть не меньше 14 метров), но в данной ситуации могут быть «поблажки». Это же студия....
4) зачем так ставить кровать? Зачем спящему у окна проявлять чудеса лазания?
5) в ванной справа прекрасно встанет ванна, напротив - мойка (вероятно, заходящая на ванну крылом, слева унитаз .
6) на кухне (логичней) поменяла бы местами плиту с мойкой (в том числе и для эстетики).
Коротенечко - так.
09.01.2019
Ответить
Мимими
1) почему унитаз «через дорогу» от стояка?
- схема санузла взята из изначальной планировки "от застройщика"
2) входную дверь надо сделать открытием наружу
- да, дверь будем менять и она будет открываться наружу
3) если будете узаконивать - могут не узаконить (жилая комната должна быть не меньше 14 метров), но в данной ситуации могут быть «поблажки». Это же студия....
-перегородка из ГКЛ не капитальная, ничего узаканивать не буду.
4) зачем так ставить кровать? Зачем спящему у окна проявлять чудеса лазания?
-никакой проблемы в этом не вижу
5) в ванной справа прекрасно встанет ванна, напротив - мойка (вероятно, заходящая на ванну крылом, слева унитаз .
-хотелось бы с размерами наложить на планировку, на словах не очень понятно
6) на кухне (логичней) поменяла бы местами плиту с мойкой (в том числе и для эстетики).
-да, возможно так лучше
09.01.2019
Ответить