Хьюстон,у нас проблемы!

ставьте только не сололифт, а SFA sanivite. Он почти бесшумный, вода течет куда громче.
04.02.2019
Спасибо,буду иметь ввиду
04.02.2019
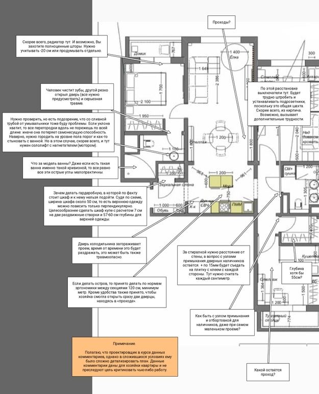
Только зарегистрировался на форуме, и тут такая интересная тема :-) Приветствую всех комментаторов и Марию, в частности, как автора вопроса. Я меньше всего люблю критиковать людей, тем более коллег. Поэтому постараюсь помочь делом, а не столько словом. К сообщению я прикрепил план с моими комментариями, которые первые пришли в голову. Место на экране закончилось, и я прекратил. Полагаю, обсуждать нужно не шум от сололифта, а реализацию этого плана во время ремонта. Поскольку я замечал, что множество первопричин ссор между людьми именно в финансах, затрону эту тему. Вы заплатили за проект 50 тысяч. Деньги и правда немаленькие, но смотря для какой работы и для какой площади. Лично я делаю проекты только комплексные, никаких экспресс-дизайнов, поскольку деталей огромное количество; любой экпресс почти всегда - профанация. Так вот. Хороший проект для такой немаленькой площади стоит, полагаю, около 150 тысяч. Это в три раза больше. Безумие. Экономия 100 тысяч. Но. Квартира в Москве. Чисто математически, сколько квадратов можно купить в МО за 100 тысяч? Допустим, около 0,5 кв.м. Или 0.7. Теперь посмотрите сами, сколько сотен тысяч рублей вы просто используете "как-то", "как получится". Вот и я не понимаю, зачем вообще заказывать проект, лучше самому сделать, хотя бы 1000 долларов в карман положите. Лишними не будут. Скорее всего, при реализации этого плана ремонт затянется на 8-12 месяцев вместо положенных 5-6, что уже удорожает ремонт минимум тысяч на 200-300 (механизм сложный, это субъективное мнение, как и всё здесь). Один только сололифт дает переплату в 20 тысяч, а их там, скорее всего, нужно ставить 2. Вот и стоимость проекта. Снова. Так что, я бы посоветовал сделать заново и самостоятельно. Сделайте сами, потом порассылайте знакомым, каждый скажет про свои опасения. Прораб чего-то скажет. Мне кажется, проблем будет много, тут про шум особо беспокоиться не нужно. П.С. Мне кажется, что никакие угрозы и отрицательные отзывы не помогут. Даже когда люди договор заключают, все равно все строится на доверии и репутации исполнителя. Нет, договор очень помогает, я всегда его составляю. Но не нужно рассчитывать, что можно получить деньги обратно через суд. Даже когда подрядчик обманывает на несколько миллионов, то выплачивает в рамках уставного капитала - скажем, 20 тысяч рублей. Рецепта по возврату денег не дам, но, надеюсь, хоть немного сумел помочь и направить в конструктивное русло. Удачи, Мария!
03.02.2019
Большое спасибо за конструктивную критику.По поводу ванной у меня тоже были сомнения,видимо действительно придётся все переделывать
03.02.2019
Ну... по делу сказать нечего, но вы, пожалуйста, оставьте отзывы во всех источниках, чтобы еще кто-то не пострадал.
02.02.2019
По существу вопроса о насосе: 10 лет, полет нормальный, чистили один раз, периодически звук уходящей под давлением воды - к этому быстро привыкаешь. Реальное решение вопроса.
01.02.2019
Подруга на первом этаже переносила кухню. Ставила насос. Он не очень часто издавал звуки типа вшшш буль буль. Не знаю как ночью, обычно после включаеюния воды в раковине. Никаких порогов не делали. Планировка супер. Расстановка мебели пугает)
01.02.2019
Да уж! Попадос! Дизайнер, наверно, «молодой да ранний»? Сочувствую. Возвращайте кухню на своё место.
01.02.2019
Не молодая совсем,но по присланному «подарку» в виде визуализации одной комнаты-она глубоко застряла в 90-х. Но брала то я ее не в качестве дизайнера,а только как архитектора...я сразу обозначила,чтобы со своими «модностями» не лезла
01.02.2019
Согласна с девчонками: интересно посмотреть на всю планировку (ещё бы «до» и «после»).
01.02.2019
Ниже есть
01.02.2019
Покажите всю планировку
01.02.2019
У нас ещё на этапе детской разногласия по поводу гардеробной были.В итоге,чтобы ее убрать,она попросила 5.000 сверху.
01.02.2019
Кухня у вас на месте спальни была? Про насос не посоветую, но на порог не соглашайтесь, у подруги стиралка стояла через коридор от ванны. Как раз над трубой порог сделали, она обплевалась, сделали ремонт и стиралку обратно в ванну переселили. У нас соседи на старой квартире примерно как у вас сделали, они весь уровень пола поднимали, что бы порог не делать.
01.02.2019
На порог 100% я бы не согласилась.Это даже цензурным словом обозвать нельзя
01.02.2019
Вот да, поднять весь пол, а вентиляцию обойти со стороны гардеробной
01.02.2019
На потолке можно декоративной балкой трубу обыграть, а вот с полом сложнее, это надо потолки приличные иметь, что бы высоту не съесть. У нас 2.5 высота всего, у соседей 2,3 примерно стало, ооочень мало. Но им лишняя комната важнее высоты потолков.
01.02.2019
Так все-равно трубы то засоряться будут.Не хочу я этот геморой на свою голову
01.02.2019
По прямой с нормальным уклоном риски невысокие. У меня дальше кухня от стояка, чем у вас.
01.02.2019
Ох, печаль (( Стол в центре квартиры мне кажется сомнительным решением.
01.02.2019
Да, эргономика и логика страдают. Например, два препятствия прямо в транзитной зоне, в центре квартиры: остров и обеденный стол. Это чересчур. Переносите кухню на прежнее место (во избежание «головных болей», как я поняла - в вашу спальню) . Спальню можно сделать на месте нынешней гостиной, гостиную - на месте «сегодняшней» обеденной зоны (но надо смотреть по размерам, так сложно сказать однозначно). Жалко «нижнюю» комнату. Как-то уж очень её «ампутировали». Я понимаю, почему так сделали. Места для хранения верхней одежды мало. Да?
01.02.2019
Судетской вообще изначально споры были.В ее понимании и 9 метров норм.За доплату в 5 тысяч предложила убрать из проекта...я отказалась,проще на пальцах с рабочими объясниться
02.02.2019
Маш, мне интересно, как у вас диалог с дизайнером происходил?)) Я понимаю, что насмотревшись красивых картинок мы мечтаем, что будет у нас, но ведь дизайнер на то и дизайнер, чтобы не только обои выбирать, а в первую очередь (ну как я понимаю) с технической стороны все просчитать... Она вас хотя бы предупреждала, что это не совсем правильно, или вы её уломали и она уже просто согласилась?)))
01.02.2019
У меня вообще изначально другой план был.Тут 100% ее задумка.При всем этом,на мои возражения о геморройности с коммуникациями она заверила,что с прорабом все это обсудит и все будет ОК.Ну,а по факту оказалось,что показалось
01.02.2019
А ваши задумки покажите
01.02.2019
Даже так???!!! У меня подозрение, что у этого дизайнера только дизайнерские 2-хнедельные курсы из профессионального образования))
01.02.2019
Надо мной муж уже угорает от всей этой ситуации.Причем он мне миллион раз говорил,что я сама справлюсь со всем этим,но я же вечно неуверена в себе....получив полный проект и указав всеееее,абсолютно все,кроме кухни я поняла как лоханулась. Почти все розетки и светильники я растравляла,планировки и расстановку мебели тоже....единственное от неё-это кухня! короче дура я))
01.02.2019
Если не секрет, сколько стоили её услуги?
01.02.2019
требуйте деньги взад, ну тут же даже не спецу видно, что далеко, уклон должен быть 10 см на 1 м длины + вент короб на пути. а квартира однушка?
01.02.2019
Трешка,90кв
01.02.2019
поняла, кухня на месте коридора и комнату проходную сделали. Могу еще добавить, у вас еще проблемы будут с расхождением площади, это в дополнение к перепланировке
01.02.2019
Я отправила уже ей все претензии.В итоге ответ-ставьте насос,прораб согласится
01.02.2019
Она вообще в курсе как выглядит насос? Он занимает место прилично, куда она его предлагает поставить в ее дизайн проекте?
02.02.2019
Этот вопрос не поднимался)
02.02.2019
Чистить реально надоест, но еще хуже это война с мужем. Например мой за все берется сам, только с психами, прям нервов не хватает.
01.02.2019
Мне спокойствие дороже)Мой вроде и не жопорук,но начудить тоже может
01.02.2019
Мой тоже, но реально бесит постоянная чистка труб. Да и после чистки вонища на всю квартиру
01.02.2019
Оставшиеся комментарии доступны после регистрации
Зарегистрируйтесь и получите полный доступ ко всем функциям сайта.
Будет ли смотреться? Провести газ нельзя помиловать