Современная трёшка с вау-эффектом
Авторские проекты дизайнеров.(Посты не по теме будут удаляться!)Этот проект - белая ворона среди прочих. Или чёрная ворона среди белых голубушек? В общем, он абсолютно точно не для всех - не каждому понравится такой тёмный дизайн интерьера. В современном стиле чаще используют светлые цвета, поэтому мы от души удивились, когда заказчики - семейная пара с сыном-подростком - остановились вот на такой графитовой гамме. Дополнительно озвучили следующие пожелания: современный стиль должен граничить с минимализмом, перепланировку делаем глобальную, предусматриваем спальню для пожилых родителей, которые иногда приезжают погостить. Ну что же, смотрите сами, что получилось!

В ходе работы заказчики заостряли внимание на выдержке стиля, совмещении красоты и практичности. Нам хотелось смешать тёмные оттенки и ненавязчиво расширить пространство контрастными светлыми стенами. Без белого цвета дизайн гостиной был бы слишком мрачным. А вообще, работать с этими людьми было очень легко - отличные заказчики: с отменным чувством вкуса и без боязни экспериментов. Всем бы дизайнерам таких!

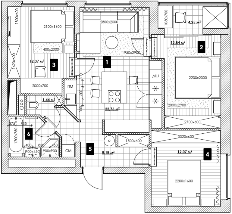
Перепланировка в квартире экстремальная и неузаконенная. Кухня, например, находится на месте бывшей гостиной, а там, где по изначальному плану должна быть кухня, сейчас расположена детская. Заказчикам хотелось сделать общее пространство, поэтому выбрали самую большую комнату на 23 кв. м. Основная сложность была в том, чтобы протянуть по потолку вытяжку и разместить коммуникации, но в целом получилось очень удобно - даже островок вместился.
Совет
Если перед вами стоит задача разместить телевизор так, чтобы он работал на две зоны, можно подвесить его к потолку на телескопическом крепеже. В данном случае телик разместился над островом - можно опускать и крутить экраном в сторону кухни или к дивану в гостиной.

В абсолютно чёрной спальне комфортно будет тем, кто любит монохром. Цвет и стиль комнат - как отпечаток пальца владельца. Заказчики, которые решились сделать весь интерьер квартиры в графитовых оттенках, вряд ли переживают на тему того, что думают остальные - именно им здесь уютно и классно. И это главное!

Объединение комнаты с балконом тоже не согласовано, как и перенос батареи центрального отопления. Между лоджией и спальней сделали дверь-купе и поставили вертикальный радиатор в цвете антрацит - это круто подчеркнуло стиль и очень хорошо пересеклось по настроению с белой кирпичной стеной.

К гостевой спальне предъявляли особые требования. Поскольку здесь предстояло ночевать пожилым людям, комната должна была быть более уютной, не такой "агрессивной", как остальные, но при этом сочетаться с общим дизайном. Мы предложили сделать здесь белые стены, а в поддержание общего стиля - чёрное бархатное изголовье до потолка и тёмные шторы.

Как-то язык не поворачивается назвать эту комнату детской, правда? Здесь живёт без пяти минут студент - совсем взрослый парень, которому не поставишь кровать-домик! :) Чёрно-белый интерьер комнаты при желании можно разнообразить цветным постельным бельём или яркими подушками, но вряд ли сыну заказчиков захочется так делать. Принт с зелёным листом на стене в изголовье - максимум, на что он согласился. Комната хорошо продумана для пацана: зеркальная дверь расширяет пространство, над рабочей зоной есть подвесные шкафы, которые скрывают за фасадами всё богатство мальчика-подростка. Минимум открытых полок помогает наводить "порядок" за 5 минут. :)

Сколько в своей жизни вы видели ванн без шторок?)) В данном случае это обосновано: брызги обычно появляются, когда пытаешься принять в ванне душ. Здесь такой проблемы нет, этот санузел идеален для своих владельцев: тот, кто любит принимать душ, пользуется душевой кабиной, а тот, кто хочет понежится в наполненной ванне, делает это по своему желанию. Важное замечание: вместить душевую кабину удалось после того, как мы увеличили санузел за счёт коридора - эта часть перепланировки тоже не была узаконена.
Совет
Ванная комната - то место, где собирается многообразие разноцветных баночек гелей, шампуней и прочих косметических средств. Если для вас принципиально сохранить красоту - переливайте жидкости в красивые дозаторы, подобранные по стилю санузла и купите полотенца, которые будут сочетаться по цвету как между собой, так и с кафелем.

Общая площадь квартиры - 78,09 кв. м. Стены, которые есть на плане - новые. В квартире были демонтированы абсолютно все перегородки, не зря выше мы назвали перепланировку "экстремальной". Здесь хочется ещё раз напомнить, что мы ничего не навязываем заказчику и всегда предупреждаем о незаконности изменений. Финальное решение принимает владелец квартиры, он же и берёт на себя ответственность за новую планировку.