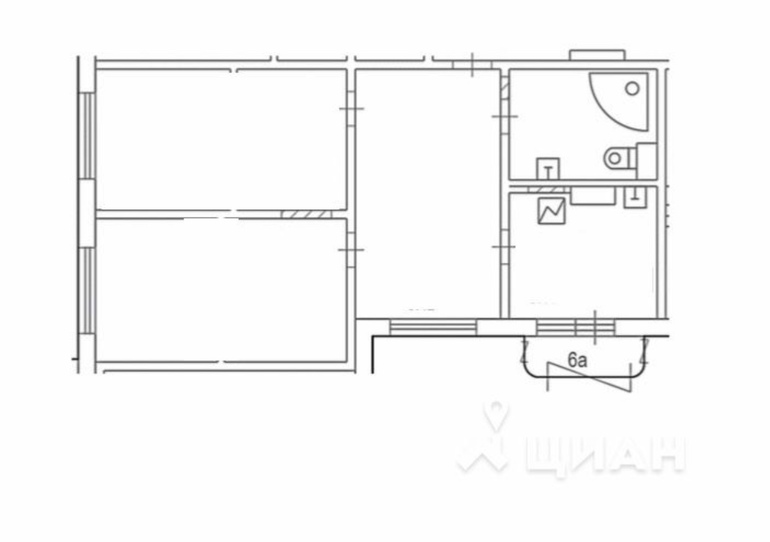
Перепланировка в КОПЭ
Перепланировки стен. Согласование перепланировки квартир и нежилых помещений.Как сделать 3 изолированные комнаты?
Общая площадь 78 м2

Татьяна Специалист по недвижимости
размер санузла как-то влияет на его производительность? понимаете, увы и ах, очень часто все что удобно сложно узаконить, но по другому нельзя, так что меньшее из двух зол
07.06.2019
Ответить
Татьяна Т
узаконить уменьшение в разы проще, чем увеличение. так что да, можно...
07.06.2019
Ответить
Татьяна Специалист по недвижимости
вы только по стенам смотрите, а то вдруг там несущие
07.06.2019
Ответить
Anna Maria
https://m.babyblog.ru/community/post/housedesign/3232689
Вот тут Вам нарисовали как.
07.06.2019
Ответить