Квартира в Химках. Часть 1
Авторские проекты дизайнеров.(Посты не по теме будут удаляться!)Всем привет)
Приходят много вопросов о том, что входит в дизайн-проект, как построена работа дизайнера. У всех дизайнеров свои сложившиеся методы работы, наработанные схемы, благодаря которым они получают результат и конечно же они могут отличаться. Сегодня решила рассказать как проходит процесс создания дизайн-проекта на примере одной квартиры. Проект достаточно объемный, поэтому показалось логичным разделить его на две части - предложенные заказчикам предварительные варианты и результат на основе их выбора.
Начинается разработка как всегда с планировок. Нет смысла выбирать конкретную мебель, не зная получится ли ее разместить. Квартира в том виде как она была заказчиков не устраивала. К сожалению, в наше время это слишком частая история, когда имеющееся количество площади недостаточно для всех нужд семьи. Требовалось пересмотреть пространство, зонирование, распределение комнат. Что было нужно? Разместить много хранения. Найти место для отдельной спальни. Создать для обоих детей отдельные пространства. Так же заказчики были готовы присоединить балконы и соединить кухню с гостиной.

Было предложено несколько вариантов размещения из которых заказчики выбрали один. И дальше работа над дизайном шла уже на его основе.
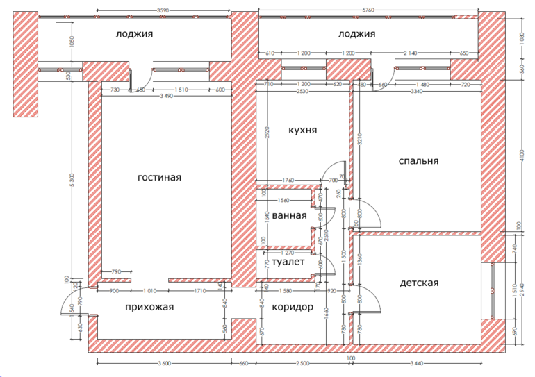
Думаю, для понимания тут нужно показать, как распределялись комнаты в квартире раньше. Большая гостиная пустовала, а вся семья теснилась в малепусенькой кухне. Ходить из кухни в гостиную было неудобно и далеко. Спальня была удачная, но не было отдельного места для второго ребенка. Туалет с ванной оба были тесными.

Что мы сделали - объединили санузлы. Спальня находится в уединенном тихом углу квартиры, как и хотели родители. Две детские рядом с одним из балконов, у детей большая разница в возрасте. И общее пространство-студия. Так распределились приоритеты семьи.
Дальше мы приступили к самой приятной части - подбору мебели и созданию концепций для каждого помещения. Коллажи хорошо показали себя в работе, позволяя заказчикам определиться с тем что нравится и облегчают выбор. Большинство людей теряются, сталкиваясь с огромным выбором отделочных материалов в магазинах. Для своих проектов мы используем только реальные материалы, мебель и светильники, все что можно купить или заказать. Конечно же пожелания, чего бы хотелось обговариваются заранее. Также указываем на коллажах стоимость, порядок цен тоже помогает определиться с выбором)
Итак, кухня и гостиная. Заказчики очень просили использовать популярные сейчас шестигранники с фигурной врезкой в ламинат. Мы конечно же выполнили их просьбу, но и предложили менее избитое решение - шеврон)
Как думаете что выбрали - гексагоны или шеврон?))

Прихожая и коридор. Тут все просто - она просматривается из студии, поэтому подбирали отделку, сочетающуюся с ее концепцией.
Спальня родителей. Здесь у нас уже была константа - кроватка VOX, подбирали материалы под нее.

Комната для девочки. Ее пожелание - использовать розовый цвет, создать нежный, девичий образ ее комнаты. Done)


Вариант с зайчиками сразу отсеялся.


Комната для мальчика

А мальчику с выбором пришлось нелегко. И за него выбирали родители)


Ванная комната. Заказчики просто влюбились в коллекции mainzu, когда мы увидели их на стендах в салоне. Вопрос был с чем их сочетать и как разложить. Да - и какой декор выбрать))

Так что на ванную пришлось больше всего вариантов)



Общее что было в требованиях - всем хотелось своего пространства и уюта. Вот так мы и создаем для кого то мечту)
Эти концепции мы готовим как промежуточный, предварительные этап перед визуализацией, ее делаем уже на основе выбранного варианта. Все что выбрано входит потом в общую ведомость, в которой мы прописываем артикулы, количество и стоимость, со ссылками на магазины где можно купить.
Конечно же это упрощенный взгляд на нашу работу, конечно было много обсуждений, выездов в магазины, промежуточных вариантов и согласований.
Надеюсь, было интересно)
Мой сайт http://julyachernova.blogspot.com/