Квартира под сдачу
Вопросы и ответыЧто еще нужно молодому человеку в маленькой однушки ?

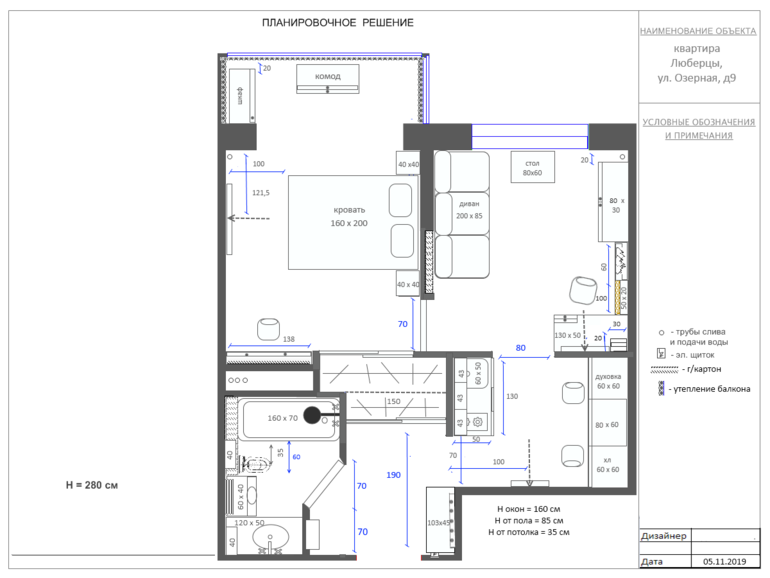
Вход . Вешалка с пуфом , напротив зеркало с нишей под ключи и др мелочь.
Есть вместительный шкаф 150 см.
Мини-кухня. Откидной столик, встроенный холодильник, духовка. На верхнюю полку в стеллаже можно разместить микроволновку.

Гостиная
Диван 200 см с пуфом ,стол у окна - трансформер, можно разложить при встрече гостей. Напротив дивана сервант с камином, имеется и письменный стол с телевизором

Спальня.
Тут и так все ясно. Если молодой человек будет не 1 есть 2 тумбы , комод и маленький туалетный столик.

и также шкаф для одежды.
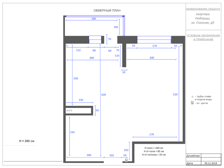
Схемы


Анна
Решение с прихожей по мне очень спорное. Открытые вешалки, на них будет висеть одежда, все это отражается в зеркале... Я бы сделала закрытый шкаф, наличие пуфа вообще необязательно при такой небольшой площади. Глубина небольшая, да, но можно поставить шкаф с распашными дверьми, какие-то из них сделать зеркальными
21.12.2019
Ответить
Катя Самохина
Спасибо)) . Места действительно мало, напротив двери шкаф, зеркало туда точно не хочу ставить , примета плохая. Тогда зеркало сбоку остается, думаю полочку тоже надо, ключи, сумку, расческу надо куда-то положить . Поэтому наверное и пуф тоже нужен .
21.12.2019
Ответить
MashaKhaustova
зачем духовка?
холостяк, 2 студентки или молодая пара скорее будут пользоваться микроволновкой и мультиваркой.
в такую тесноту камин? зачем?
сервант в съемной квартире тоже ни к чему. Лучше этажерку
такую кроху, если только не на Арбате или на Невском не рентабельно делать люксовой. Делайте проще
19.12.2019
Ответить
Катя Самохина
точно , духовку уберу, и с сервантом тоже правы )) Про камин уже сообразили , что не нужно . Спасибо !!!
19.12.2019
Ответить
HELEN
Мне кажется, Вы пытаетесь впихнуть невпихуемое в эту однушку (извините, но это количество недостоликов, телевизоров, камин!!!нахрена в однушке для парня камин?!-вызывают улыбку) и заранее предугадать своего арендатора (даже если сейчас есть этот молодой чел, то не факт, что через год он будет и кому потом упрется ваш дизайн?) Мой Вам совет (а квартиру моя семья сдаёт с середины 90-х и историй юморных и не очень накопилось на трехтомник), не мудрите! Не ввязывайтесь в переносы зон! Если квартира именно под сдачу с целью получения дохода (а не порыв творческой души при неограниченном количестве денежных ресурсов), то все максимально просто и антивандально! А ушатают её в любом случае, вечного, уж тем более в съёмной квартире, ничего нет! Судя по всему, квартира у Вас не в золотой миле, ну и тогда к чему все эти ухищрения...
19.12.2019
Ответить
Катя Самохина
Думаю, и балкон не обьединять , это затратно и ни к чему?
Пришла мысль , вдруг парень курящий. Тогда без балкона никак.
19.12.2019
Ответить
HELEN
Я не совсем уверена, что балкон (именно балкон, а не лоджию) можно законно присоединить... А уж что там жильцы делать будут: курить или старые лыжи хранить, это их дело... Застеклить, утеплить для удобства и будет.
20.12.2019
Ответить
Irylen
это все под сдачу? Как-то перебор!
вы никогда не предугадаете, что нужно для конкретного квартиросъемщика. Поэтому делайте все по минимуму. Отделите зону санузла, поставьте шкаф в прихожей, разместите кухонный уголок где ему и следует быть по плану застройщика.
19.12.2019
Ответить
Вера
Ну, и напихали Вы в свою квартиру все, что только можно... зеркала, панели, триста столиков и ни одного нормального обеденного стола. А кухня у Вас где расположена? В жилой комнате? Это незаконно вообще. Однушка - это лаконичность и легкость, не нужно пытаться сделать из нее дворец - эта попытка кажется смешной. Если честно, у меня вообще сложилось впечатление, что Вы нас троллите.
И посмотрите, где у Вас крючки для верхней одежды и полка для шапок. Подойдите теперь к входной двери своей квартиры и посмотрите, удобна ли высота. Вы предполагаете, что арендатор будет Гулливером? ))
19.12.2019
Ответить
Елена
посмотрите шикарные проекты и реализацию в "Дизайн студия А+Б" там ваша планировка https://vk.com/albums-34237561
и ничего ломать и переносить не надо
19.12.2019
Ответить
Катя Самохина
Посмотрела, Классно ! Но уже согласна со Всеми , надо чем проще, тем лучше ))
19.12.2019
Ответить
Юлия
Судя по коробу вентиляции вы хотите перенести кухню в другое место, снести несущую стену балкона... Вам такое никогда не согласуют. А учитывая что квартира инвестиционная продать ее будет очень сложно, и с жильцами если не поладите и они стуканут все будете обратно переделывать и штрафы платить. Советую подумать, надо ли вам это)))
19.12.2019
Ответить
Dana_Mr
А сервант парню бедному зачем? )) Подаренную мамой посуду хранить.Я бы его убрала и напротив дивана телевизор в гостиной поставила, а сверху ноута телек бы убрала.Под телевизором можно сделать как раз искусственный камин продольный на 90 см.Он будет смотреться красиво, и выглядеть впихнутым не будет.Кухня тоже глаз резанула.Вы телеком всю стенку "поели".Телек уже давно можно над вытяжкой встроить и там можно так сделать, а во вторых есть место под плиту с духовкой.В Верхние полки можно как рах встроить свч, кофемашину, вытяжку.А столик со стеллажами я бы убрала.Проще поставить обычный маленький, что бы хоть на троих хватило.И на стену эту же как наверху сделать бы полки для хранения.Мне кажется, что балкон как то не нашел своего применения.Один комод и шкаф там что ли ? Я бы туда рабочую зону бы со компом убрала.А диван в гостиной побольше бы сделала.Боковой столик заменим журнальный круглым столиком или пуфиком.А так мне понравился проект.
18.12.2019
Ответить
Катя Самохина
Спасибо большое за отзыв , действительно , не учла. Вы многое подсказали !
19.12.2019
Ответить
Елена
Зачем в такой каморке камин? Три телевизора зачем, и тот который в гостиной, как его смотреть🤷🏼♀️Обычно напротив дивана вешают🤷🏼♀️
18.12.2019
Ответить
Катя Самохина
Не знаю, без него жизнь не представляю , но Вы правы , уберу ))
Спасибо за совет !
18.12.2019
Ответить
Имя
Оставьте минимум мебели и декора, вы не для себя ремонт делаете, ваши хотелки могут нравиться вам но не арендаторам, у которых могут быть и свои вещи, свой любимый стул для работы и пр
Что надо - докупит, или предлагайте расстановку мебели под конкретного арендатора
В наличии 100% должен быть кухонный гарнитур, сантехника-стиралка, и всё
Отдавайте предпочтение икее, это гарантия того чтотвышедшее из сторя можно будет заменить без беготни по салонам
Стоимость мебели не должна превышать депозита
По телевизору на каждой стене в квартире под сдачу нет вообще никакого резона
18.12.2019
Ответить
Оставшиеся комментарии доступны после регистрации
Зарегистрируйтесь и получите полный доступ ко всем функциям сайта.


точно