Нужен совет.
Вопросы и ответыКак же лучше сделать.
Имеем вот такую спальню длина 4500, ширина 3120. Из спальни выход в свой санузел ( душ, туалет , раковина и стиралка ) в центре кровати вход в спальню из гостиной. Все вроде решила и электрику уже провели. Но тут начались опять сомнения. Как быть. Поставить шкаф купе с боковым отсеком под химию для санузла. Или все таки пытаться впихнуть гардеробную. Но в таком случае мы получаем узкий коридор между стеной и гардеробной. Да и Размеры, я могу максимум выделить 100 см в ширину. И от стены до входа в санузел всего 210 см. Компьютерный стол обязательно. Нужно поставить ноутбук и принтер.
План квартиры для Юлии. До перепланировки
план после перепланировки 
selena1002
Ирина, добрый день! А можно взять фото пошире с захватом су? И я правильно понимаю, спальня там, где должна быть кухня?
16.01.2020
Ответить
Ирина
Здравствуйте. Да. Не совсем поняла. Вам отправить фото с расстановкой в санузле ?
16.01.2020
Ответить
selena1002
Ирина, доброе утро! А кухня куда переехала?) Можно просто здесь выложить?
17.01.2020
Ответить
Ирина
Я же выложила проект после перепланировки )) в посте все есть. Мы расширили маленькую комнату на середину коридора. И на части коридора поставили кухню.
17.01.2020
Ответить
selena1002
Бывает, что расстановка меняется, когда делается конкретное помещение)). А, скажите, коммуникации тянуть к кухне было удобно? В том числе и вентиляцию.
17.01.2020
Ответить
Ирина
Да. Все с этим у порядке. Вент шахта в маленьком санузле. И канализация сделана без проблем под наклоном.
17.01.2020
Ответить
Светлана
В гардеробной смысла нет , она реально не влезет . Оставляйте шкаф- купе .
Стол правда стоит не супер...
И две двери в спальной ....
Если убрать дверь в санузел из спальной получится ниша слева от шкафа как раз для рабочего стола .
Стол письменный конечно лучше подумать куда...
и скажите , сколько см глубины Вы оставили для кухонной мебели и плиты , смотрю на чертеж ... кажется сантиметров 40 см всего ... У Вас кухня точно влезет ?
07.01.2020
Ответить
Ирина
Вход в спальню один. Второй выход в санузел при спальне.
Кухню не видно на плане. Это остров.
08.01.2020
Ответить
Эл
Еще вариант, сдвинуть кровать правее, справа от кровати тумба, слава шкаф прямым углом, и раьочее место по стене граничащей с ванной. Когда кровать сдвинется вправо будет много места для раб стола там.
Но вот эту нишу хочется сломать и сдвинуть дверь в санузел.
Как стоит сейчас рабочий стол - он будет выше тумбы и выглядеть это будет странно.
23.12.2019
Ответить
Эл
Вентшахта сверху, а сдвинуть вниз
По размерам еще не понятно, 210 шкаф, 90 проем и между дверью и стеной 20см это ширина комнаты 320? Точно так?
24.12.2019
Ответить
Эл
210 шкаф, проем 80 и 20 расстояние до стены. Шкаф в наличник упрется, когда будете выходить, ьудет неудобно.
Не делайте вплотную, лучше хранение придумать в ванной и в спальне шкаф по этой стороне меньше. Зато за изголовьем можно сделать хорошее хранение
25.12.2019
Ответить
Эл
Еще как вариант можно было бы сломать нишу под шкаф, что слева, сдвинуть кровать, зону хранения сделать по стене с изголовьем кровати, справа у окна было бы место для рабочего стола и заходя в комнату и проходя направо было бы свободнее.
23.12.2019
Ответить
Эл
Так и хочется сдвинуть дверь вправо к окну, чтобы не входить на кровать, будете спотыкаться.
И дверь в санузел хочется сместить вниз, оставив положенные 10-15см, зачем больше? В том виде как сейчас стоит шкаф 600*270 вы не сможете поставить наличник на дверь, будет несимметрично и некрасиво. Лиьо перенести дверь немного и делать этот шкаф либо не делать его вообще.
Может химию хранить в ванной? Там нет места?
23.12.2019
Ответить
Ирина
Места в санузле нет. Шкаф хочу 210. 3 створки по 60 и одна боковая створка на 60, но глубиной 30 см. Для полотенец и химии. Под обналичку место остаётся. Стены этой не будет. В программе просто не даёт ее удалить. Будет один единый шкаф. А за дверью как раз 20 см.
23.12.2019
Ответить
Светлана
у шкафов ширина дверок - 50 см . это стандартные шкафы с распашными дверями .
07.01.2020
Ответить
Ирина
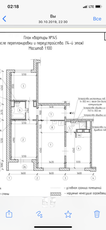
Вот план квартиры до перепланировки. У меня 3.
После перепланировки надо с компьютера файл открыть. Завтра постараюсь. Если не забуду
23.12.2019
Ответить
Юлия
просто для наглядности. у нас когда то была похожая комната с немного иными размерами
вот так это было в жизни
вот так это было в жизни
25.12.2019
Ответить
Юлия
тумбочку слева поставить не получилось, дверь шкафа упиралась.
нюансов много, постарайтесь все учесть ))
я бы никаких гардеробных в комнате не делала
25.12.2019
Ответить
Юлия
еще бы я не делала шкаф для химии, практика показывает, что это 2-3 бутылки, всегда можно найти место в обычном шкафу. тем более это не основной су
25.12.2019
Ответить
Ирина
Оставьте шкаф большой ,не надо городить никаких гардеробных. Вышли из ванной комнаты, открыли шкаф, оделись, все удобно. Какой смысл этой малюсенькой гардеробной?
Дверь напротив кровати меня особо не смущает, ну дверь и дверь, привыкните.
23.12.2019
Ответить
Datura
ну раз электрику уже сделали, я б не стала ничего менять. Для гардеробной мало пространства, поэтому шкафы до потолка будут ничем не хуже.
22.12.2019
Ответить
beauty_lisha
Кровать сдвинуть максимально вправо, а стол с компьютером расположить в правом нижнем углу.
Все, что начинается от края тумбочки слева - под гардеробную.
22.12.2019
Ответить
beauty_lisha
Если поставить вот такой стол - то он ничего не перекроет. Он высокий и узкий. Компьютер можно прикрепить на специальное крепление. Работать - стоя.
23.12.2019
Ответить
Кама
Смысла в таком столе нет, если он планируется именно как рабочий. Работать не получится, только подойти да посмотреть что-нибудь в интернете.
23.12.2019
Ответить
beauty_lisha
У меня муж за таким столом работает весь день☺️👌🏻
Очень, кстати, классная вещь. Говорит, что стал лучше себя ощущать физически, потому что стоя ты в любом случае двигаешься, меняешь положение тела, физически задействуешь своё тело гораздо больше, чем просто сидя попой на стуле. Осанка исправляется, спина с попой болеть перестают.
В общем это не только место сэкономит, но и внесёт новый глоток энергии в вашу жизнь.
23.12.2019
Ответить
beauty_lisha
Если вы намерены стоять целый день, лучше купить ещё специальный коврик для ног. Он сам по себе мягкий и рельефный, чтобы можно было менять положение тела и ног.
Первые дни с непривычки ноги будут болеть и уставать, а потом привыкнете к этой нагрузке и она для вас станет нормальной)
24.12.2019
Ответить
Ирина
Я вот об этом тоже думала. Но ширина комнаты 3120, а кровать 2300. Боюсь не мало ли место для стола со стулом.
23.12.2019
Ответить
Ларёк
Я тоже думаю, что спать ногами в дверь гостиной не приятно. У меня меньше спальня, но кровать за углом как в гостиничном номере. Компьютер в ногах (заодно вместо телевизора. Большой монитор).
22.12.2019
Ответить
Ларёк
Если только кровать установить где гардероб, а шкаф делать у стены, где тв в гостиной. Или кровать изголовьем к окну. Или хотя бы ближе к окну, а комп стол в ногах где-то
23.12.2019
Ответить
Ирина
При любом раскладе дверь на кровать выходит. От Окна до двери 170 см, и с другой стороны примерно так же
23.12.2019
Ответить
Оставшиеся комментарии доступны после регистрации
Зарегистрируйтесь и получите полный доступ ко всем функциям сайта.