Суперпростая однушка
Авторские проекты дизайнеров.(Посты не по теме будут удаляться!)Прежде чем прийти в нашу студию, заказчики тщательно подбирали концепцию: фото, цветовую гамму, варианты отделки. Они хотели минималистичный стиль, спокойные приглушенные цвета в комнате, деревянные текстуры и штукатурку под бетон. Когда люди чётко знают, чего хотят, - это бесценно, ведь такой серьёзный подход значительно упрощает работу дизайнера.

Концепция - это ориентир для дизайнера. Шпаргалка по стилю, цветам и материалам. Цветовая гамма и деревянные реечки сделаны в точности по просьбам заказчиков, а вот интересный потолочный светильник и яркое жёлтое кресло мы предложили, чтобы добавить помещению изюминки. Без них было бы слишком уж нейтрально, обыкновенно.

Ни перепланировки, ни каких-то новомодных приёмов. Простой дизайн-проект однокомнатной квартиры для супружеской пары без детей. Интерьер не смотрится скучным за счёт интересной мебели: журнального стеклянного столика, стула с плетением из экокожи в рабочей зоне, жёлтого кресла, о котором упоминалось выше.

Площадь кухни 7 кв.м, но благодаря высоким подоконникам сделали единую П-образную столешницу. Обыграли идею с бетоном - не в виде штукатурки, так в качестве фасадов.

В санузле пожертвовали ванной, чтобы вместить стиралку и систему хранения над ней.

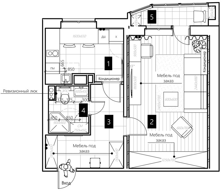
Стандартная планировка для домов серии П44.
Квартира 40 кв. м . Площадь гостиной 18 кв. м, застеклённой лоджии - 2,5 кв. м.