Небольшая перепланировка-можно ли узаконить
Перепланировки стен. Согласование перепланировки квартир и нежилых помещений.Добрый день. Есть двухкомнатная квартира. На плане фиолетовая слева.

квартира в ипотеке. Что хотим сделать: из зала сделать кухню-гостиную. Соответственно, там где кухня- наша спальня, и комната остается комнатой для детей. Хотели бы убрать оконные блоки, чтобы вынести компьютерный стол на лоджии.
мы хотели бы узаконить такую перепланировку в БТИ. Это реально?
Викторина Дизайн интерьеров
Можно попробовать, если вход в комнату которая вместе кухни, будет через гостиную
Объединять лоджию-это сейчас очень сложно для Москвы по крайней мере.
все манипуляции с лоджией-это реконструкция фасада. И согласовывается это не в МЖИ.
19.04.2020
Ответить
Ирина (Архитектор-дизайнер в Москве)
Я не поняла: вы кухню хотите перенести в зону где сейчас гостиная? Лоджию объединить с комнатой. Ни то ни другое делать нельзя по закону. Вам это не согласуют.
14.04.2020
Ответить
Кассандра
Просто утеплите хорошо лоджию поставьте там стол. Сделайте как комнату. Будет Кабинет.
11.04.2020
Ответить
Виктория (дизайнер)
если под вами нежилое помещение - узаконить возможно. Но сам ремонт выйдет дороже + согласование. Самостоятельно вряд ли сможете согласовать, т.к. перенос мокрых зон - надо будет заказывать инженерный проект (там указывают новую разводку, гидрозиоляцию).
по ремонту - стояки переделывать, гидроизоляцию в бывшей гостиной делать, в новой спальне шумоизоляцию
на взгляд площадь кухни и комнаты у вас плюс/минус одинаковая. Я думаю, не стоит так заморачиваться + балкон на кухне это очень удобно
11.04.2020
Ответить
Julecka
Вопрос в том, что у нас двое разнополых детей и сделать такой вариант нам был бы удобнее, чтобы потом каждому выделить отдельную комнату. Спасибо за информацию, обращусь в БТИ, посчитаю
11.04.2020
Ответить
Виктория (дизайнер)
https://apb1.ru/ можете у этих ребят проконсультироваться. По Москве с ними планировки согласовываем
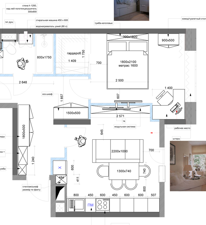
еще приложу планировку подобной квартиры. На кухню надо было гостевую зону впихнуть. В вашем случае можно в нишу поставить кровать-трансформер (или диван-кровать), на будущее, если придется спать на кухне
11.04.2020
Ответить
Анна
Нереально, если не первый этаж или второй над нежилым помещением, а в Москве и МО ещё и проверяют год от года всё тщательнее. Про ответственность перед другими и про безопасность и удобство жизни соседей я не говорю, речь сугубо о Ваших личных интересах. Хотите жить под постоянной угрозой судебного постановления о приведении жилья в исходный вид - дерзайте.
10.04.2020
Ответить
Анна
Тогда, по-моему, лучше показать эскиз в своём БТИ и уточнить.Перепланировка не "маленькая", требует переноса стояка и мокрой зоны, тут даже если разрешат, наверняка потребуется заказывать проект и затем работы влетят в большую сумму. А потом насколько удобно будет жить над кухней соседей? По поводу площади и целесообразности согласна с Викторией.
11.04.2020
Ответить
Facec
Переделать кухню в комнату и поставить её в зал...
Лично ни у моей подруги ни у сестры мужа узаконить не получилось. Мол над жилой комнатой, т.е. комната ваших соседей, не может быть кухни. По итогу сделали они без разрешения эту перепланировку. А отсутствие оконных рам. Там вроде и не надо ни чего. Вы же стену не трогаете
10.04.2020
Ответить
ID project - дизайн интерьеров
Не совсем так! Сейчас с этим строго, объединение лоджии с комнатой - незаконно. Наличие перегородки/дверь-окно между комнатой и лоджией обязательно для обеспечения пожарной безопасности.
13.04.2020
Ответить