Квартира с недетскими детскими :)
Авторские проекты дизайнеров.(Посты не по теме будут удаляться!)О таком проекте вспоминаешь с тёплой улыбкой.
Заказчиками была семейная пара с двумя детьми: сыном-подростком и 8-летней дочерью. В квартире со свободной планировкой нам поручили поставить стены так, чтобы получилась кухня-гостиная, три спальни и гардеробная.


Заказчикам нравилась идея с декоративной штукатуркой под бетон, так что здесь её использовали почти во всех комнатах, и даже в детских.

Заметьте, что в квартире нет давящей мрачной атмосферы, несмотря на обилие серых оттенков. Для заказчиков было важно сохранить много света и воздуха, поэтому стены, пол и часть фасадов здесь светлые, а пространство кухни-гостиной максимально открытое. К слову, над планировкой пришлось поломать голову: гребенка отопления была расположена в неудачном месте, а переносить её не хотели.


В родительской спальне есть небольшой санузел и гардеробная. Её, кстати, можно было бы сделать общей, со входом из прихожей. Но заказчики остановились именно на таком варианте: для шкафа места в спальне не хватало, а куда-то складывать вещи супругам хотелось.

Это - комната старшего ребёнка. Парню 15 лет, поэтому он принимал активное участие в продумывании дизайна своей комнаты. Выбрал диван как более стильный и практичный вариант. Рассудил так: в гости часто приходят друзья, поэтому удобнее вместе развалиться, сидя на диване? А не на кровати.

А это - детская для 8-летней девочки! Мы сами были в шоке. Предыстория такая: по маминым ТЗ сделали волшебный "принцессный" дизайн. Но девочке так понравилась спальня брата, что она беспощадно отвергла всех принцесс. Захотела себе тоже нечто "взрослое". :) Кстати, эта комната стала единственной, которую пришлось полностью переделывать - остальные согласовали с первого раза.

Тем не менее, менять кровать на диван девочка всё же не пожелала. Ей захотелось организовать под окном скамеечку, где можно будет сидеть с подружками. Мы предложили стильную конструкцию, в которой рабочий стол переходит в скамью и соединяется со шкафом.

Здесь очень классная плитка под дерево. Размеры 20х120 см, благодаря чему рисунок смотрится очень реалистично, словно натуральные доски. Это большой санузел, который разместился возле кухни.
А это - маленький, в спальне заказчиков. Здесь поставили душевую кабинку. Кремы и тюбики можно хранить в зеркальном шкафчике, какую-то другую мелочь, типа туалетной бумаги и чистящих средств - в выдвижном ящике под раковиной.

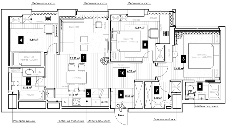
Общая площадь квартиры - 84 кв. м. Как видно по планировке, от входа сразу попадаешь в кухню-гостиную (1). Налево - большой санузел (7) и комната сына-подростка (4), направо - комната девочки (5) и спальня родителей (3) с гардеробной и малым санузлом (9 и 8, соответственно).
Третий раз: если Вы настолько не в силах спокойно воспринимать чужую позицию, что даже теряете способность к нормальному человеческому общению, то Вам не надо ходить в Интернет. Публике-то по барабану, а вот здоровье Ваше. Врачей рекомендовать не буду, ибо чужое здоровье, равно как и чужая экзотика во вкусах и прочие странности - не мои проблемы.