Возможна ли трешка из такой квартиры или все плачевно?
Вопросы и ответыГолову ломаю, возможно ли с такой планировки сделать трешку. Вроде идеи есть, но наверное вряд ли получится это узаконить, да и спальня одна все равно слишком маленький получается... Нужно 3 спальни и кухня-гостиная не огромные...

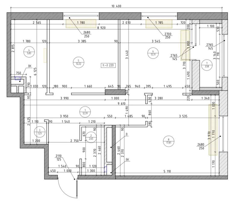
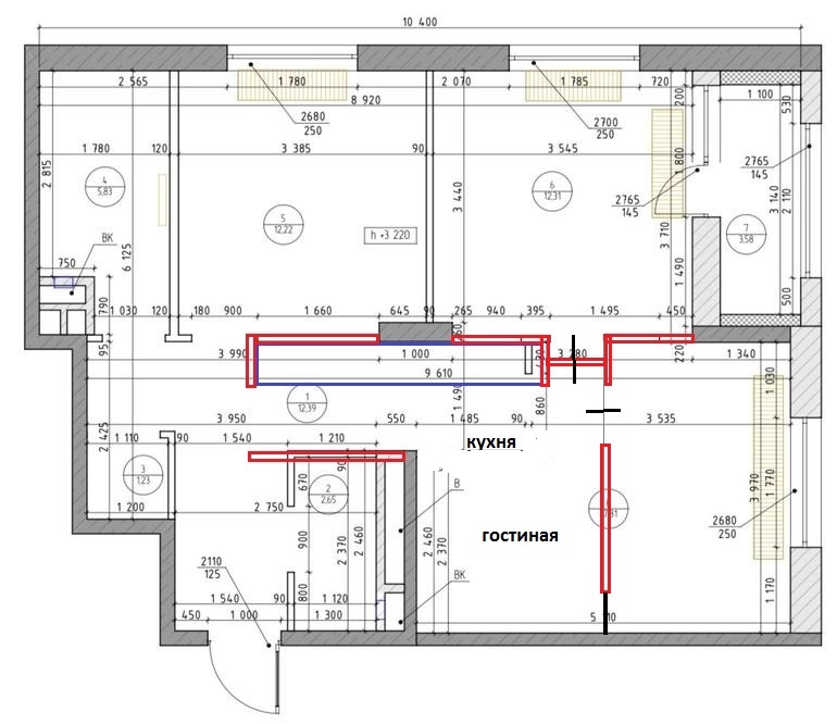
Под номером 8 - кухня, 4 - ванная
ID project - дизайн интерьеров
В принципе, логика проста. Исходя из норм действующего законодательства - на жилое помещение минимум 1 окно, у вас их 3, значит гипотетически можно сделать 3 жилых помещения/спальни. Вопрос, можно ли при этом дополнительно выделить кухню-гостиную, в такой ситуации. Для начала, стоит предварительно подсчитать соответствие имеющейся площади к минимально требуемой по СП 54.13330.2016:
«5.7 Площадь помещений в квартирах, указанных в 5.3, должна быть не менее: жилого помещения (комнаты) в однокомнатной квартире - 14 м2, - 16 м2, спальни - 8 м2 (10 м2 - на двух человек); кухни - 8 м2; кухонной зоны в кухне-столовой - 6 м2.».
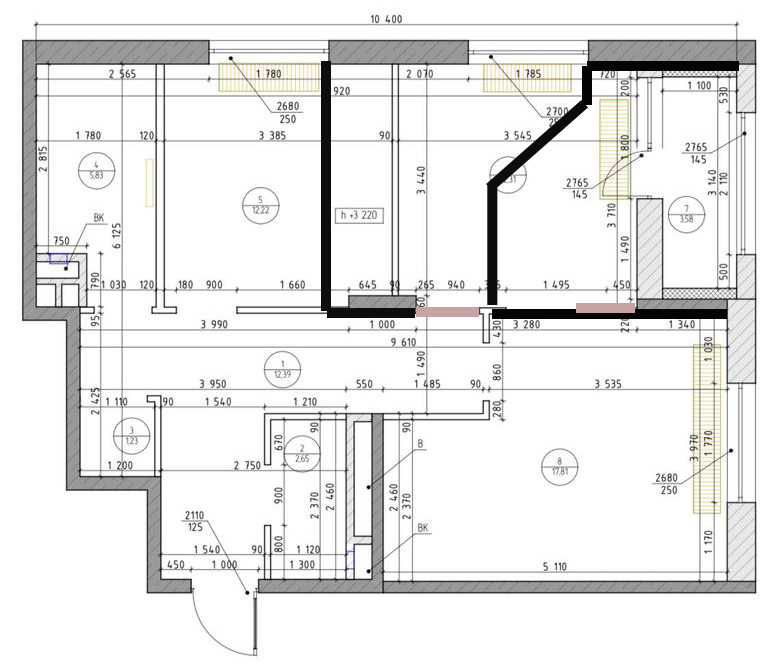
Если получившаяся площадь не менее требуемой площади, то уже есть над чем думать в перепланировке. Сложность вашего пространства в несущей стойке между помещениями, что усложняет задачу. Тут либо обратиться к архитектору, который будет выверять миллиметраж, чтобы влезть в нормы и пространство смотрелось пропорциональным и удобным и выигрышным, потому что задача всегда в увеличении жилой площади (что повышает рыночную стоимость квартиры впоследствии), а не ее уменьшении. Либо подобрать другой вариант квартиры, чтобы на 100% все ваши пожелания влезли. Главное не делайте зю-образных стен, сложных многогранных делений, диагональных стен и членений, в которых вам потом сложно будет жить, а про стоимость нестандартной мебели для комплектации многоугольников комнаты, которая стоит очень немало, говорить и не стоит. Намучаетесь!
Ниже для размышления (сразу! это НЕ предложение и, тем более, не предложение с точным соблюденным габаритов и требованием к площадям, но примерные пропорции) - условный простой пример от чего можно отталкиваться при перепланировке. Цель - попытайтесь сделать помещения пропорциональными, визуально общее пространство просторным, уменьшить не функциональную часть нежилого пространства. Если не получается, рассматривайте другую квартиру!
Помните так же, что нельзя расширять кухню за счет санузлов и жилого помещения. И наоборот, жилое помещение не может быть на территории кухни. Если у вас будет прописано в исходной экспликации БТИ кухня-гостиная (скорее всего так, ибо почти 18 м2 лишь на кухню не выделяют), то спокойно можно отдать часть в жилую, оставив 6 м2 для открытой кухни-столовой или 8 м2 для отдельного помещения. Если будет стоять 100% кухня, то часть ее отделенной территории придется прописать как кабинет или другое помещение (не спальня).
22.04.2020
Ответить
Veronika
я не разбираюсь в размерах, но у меня в голове все встало на места только таким образом. если место позволяет, то я бы сделала так. кухня-гостиная получается без окна, но можно часть перегородки сделать из чего нибудь что будет пропускать свет. И как вариант сделать в этой комнате ( которую отщипнули от кухни) спальню родителей, но у меня немного не укладывается в голове как из спальни с балконом и окном в пол сделать максимум полезного пространства для ребенка. Но еще раз говорю, я в этом деле не спец, все интуитивно тыкала))
22.04.2020
Ответить
Elena-366
Спасибо, понимаю что было бы неплохо если окно чуть в бок одно было, поняла, что не хочу изголяться... Смотрю из остатков в ЖК, ничего и нет под мои потребности...
22.04.2020
Ответить
ID project - дизайн интерьеров
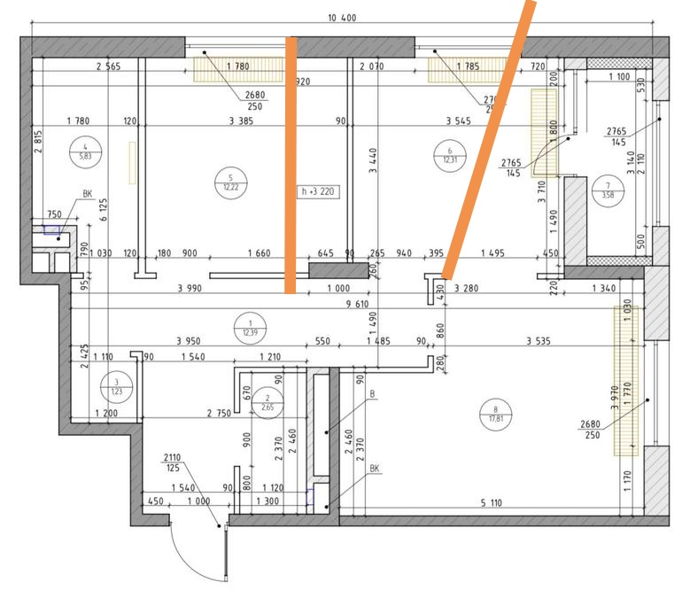
Такие варианты точно не подойдут! Первый с нарушением действующего законодательства, и оба по эргономики, то есть пропорциональности пространства страдают, от банального неудобства, до ограничения размерного ряда мебели и как следствие ее удорожание. Да и второй не пройдет, помимо неудобства геометрии, комната с балконом явно меньше нормы по площади.
22.04.2020
Ответить
Оксана (дизайнер, инста: @persona_story)
А где какие помещения? 4 - это какое вообще помещение? С/у? №8 - это кухня или кухня-гостиная?
21.04.2020
Ответить
Elena-366
4 санузел, а вот 8 кухня или кухня - гостиная, точно не знаю, а в чем разница?
21.04.2020
Ответить
Оксана (дизайнер, инста: @persona_story)
Если кухня-гостиная, тогда должна быть граница между этими помещениями. Гостиная считается жилым помещением. Если кухня, то кухня -всё помещение )))
21.04.2020
Ответить
Elena-366
Кухня тогда, границы нет, была бы - была тогда бы трешка по документам...
21.04.2020
Ответить
Оксана (дизайнер, инста: @persona_story)
Официально трешку никак не сделать. Хотя, застройщик уже нарушил закон. В двушках одна из комнат должна быть 16 квадратов. Можно одну комнату увеличить для детей. И в этой комнате сделать изолированными спальные зоны (с возможностью изолированно переодеться). А учебная зона - общая. Другого варианта я не вижу.
21.04.2020
Ответить
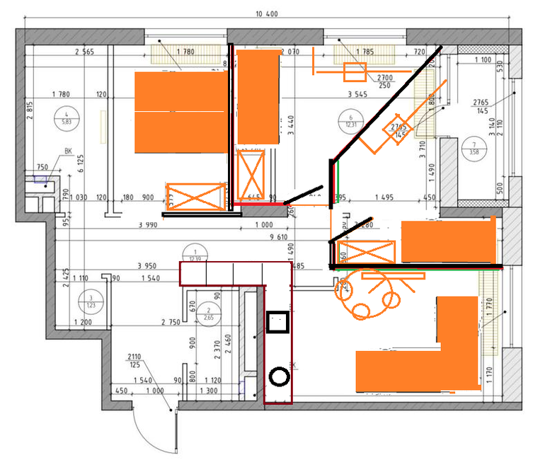
Мария
если подвинуть стену и убрать балконный блок, то площадь станет около 18 метров. 2 маленькие спальни неправильной формы по 9 метров.
если подвинуть стену и убрать балконный блок, то площадь станет около 18 метров. 2 маленькие спальни неправильной формы по 9 метров.
21.04.2020
Ответить
ID project - дизайн интерьеров
Убирать, то есть присоединять балкон без монтажа перегородки (двери) запрещено нормами действующего законодательства!
22.04.2020
Ответить
Svetlanka
Я б рассмотрела вариант кухня- спальня, и причём кухня без окна. Там почти 18 метров. У окна спальня небольшая, либо двойные распашные двери со стеклом либо раздвижная перегородка. И по максимальному убрать перегородки с прихожей, чтоб зрительно расширить зону кухни.
21.04.2020
Ответить
ID project - дизайн интерьеров
Устраивать кухню (как отдельное помещение) без естественного освещения (без окна) запрещено нормами действующего законодательства, необходимо будет предусматривать световые окна. Возможно сделать открытую кухню-столовую и сделать спальню/гостиную, как вы и сказали, возвести стеклянные перегородки.
22.04.2020
Ответить
коала
У Вас 3 окна и балкон. Те либо 2 комнаты и кухня, либо селить кого-то на узком балконе
21.04.2020
Ответить
Elena-366
Фактически 4 окна, балконный блок можно снести, но нельзя одну стену снести - несущая
21.04.2020
Ответить
коала
Комната с балконом 12 метров, балкон 3.5. Если передвинуть балконный блок, то даже разделив пополам общую площадь подучится (12.3+3.58)/2 меньше 8 метров, это очень мало
21.04.2020
Ответить
Elena-366
Я думала о возможности сдвинуть стенку комнаты, но даже если стену балконного блока подвинуть, там явно не разгуляешься...
21.04.2020
Ответить
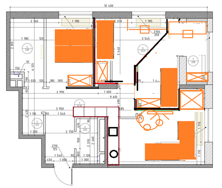
Анна
Если проект дома допускает снос подоконного блока, то разделить получившуюся комнату надвое можно условно - раздвижной перегородкой, складной ширмой или просто шторой, при этом предусмотрев 2 входа - по отдельному для каждой "спальни" (дополнительный правый из кухни-гостиной можно и узкий 60 см), а днём комната будет единой детской. Радиаторы заменить на хорошие биметаллические - при той же мощности займут меньше места, чем ужас на картинке. Не фонтан, но "больших семь шапок из овцы не выкроить никак".
21.04.2020
Ответить
Анна
Переместить правый радиатор к одной из стен возможно? Либо вообще убрать и увеличить первый?
21.04.2020
Ответить
Анна
Тогда вот какой куцый вариант можно предложить. Синее - штора или ширма, бордовое - перегородка и вторая узкая дверь, зелёное - кровать, стол и стул/кресло. Можно ли Вам уменьшать стену при балконном блоке, не знаю, так что это не трогала. Сами думайте, насколько такое для Вас пригодно.
21.04.2020
Ответить
ID project - дизайн интерьеров
Запрещено присоединять лоджии/балконы к пространству квартиры! Тем более ставить на балкон детскую кровать к холодной стене)) пожалейте детей! По эргономике - мучение для человека, так делать нельзя!
22.04.2020
Ответить
Анна
Вообще-то можно, если проект дома допускает снос порожка либо его изначально нет, просто для согласования требуется установка так называемого французского окна. И что за "холодная стена"? Даже на нашей лоджии с обычным утеплением, однокамерными стеклопакетами и отсутствием подогрева стены и в мороз не холодные, хотя она не присоединена, только дверь на неё постоянно открыта. Если же в доме всё настолько паршиво и с отоплением, и с каркасом, что у стены, как ни отделывай, спать нельзя, тут не дорогущую перепланировку надо затевать, а решать проблему радикально - менять квартиру.
22.04.2020
Ответить
ID project - дизайн интерьеров
Верно, французское окно является перегородкой, но оно не увеличивает площадь за счет лоджии, то есть присоединения (объединения) по факту нет. Холодная стена - холодный фронт, который необходимо соблюдать. Зачастую внешние стены на лоджиях не обеспечивают необходимую теплоизоляцию. Если у владельцев еще и холодное остекление и панорамное окно, будет все равно достаточно не комфортно примыкать к фасадной стене кровать. Российские реалии климатических условий и практика застройщиков. Поэтому и ограничения с каждым годом законодательство усиливает, так как люди пытаются делать по-своему. И именно в выше предложенном варианте решение недопустимо. Кровать (комната) по сути на лоджии.
22.04.2020
Ответить
Анна
По факту как раз увеличение есть, нет его формально, но этого и не требуется. Нужно только фактическое и чтоб при этом без нарушения закона или хотя бы с возможностью быстрого устранения без ремонта и без риска для кого-либо начиная с соседей. Внешние стены лоджии сами по себе теплоизоляцию не обеспечивают, поэтому их и утепляют дополнительно, холодное остекление меняют обязательно. Получится нормально или нет - зависит от дома. В наших домах получается, даром что простые панельные, в других и если мастера так себе - наверное, часто нет, тут не знаю.
А вообще тут семь шапок не выкроишь, уже написала.
22.04.2020
Ответить
Оставшиеся комментарии доступны после регистрации
Зарегистрируйтесь и получите полный доступ ко всем функциям сайта.


