Квартира с детскими, гардеробными и кабинетом :)
Авторские проекты дизайнеров.(Посты не по теме будут удаляться!)Изначальная планировка этой квартиры была хорошей, просторной и… обычной. Однако заказчики хотели изменить её не для того, чтобы выделиться. Им было важно сохранить общее пространство гостиной, удобную кухню, предусмотреть систему хранения и выделить каждому члену семьи свой уголок. Количество комнат осталось тем же, только теперь в "четырёшке" всё стало продуманным до мелочей.

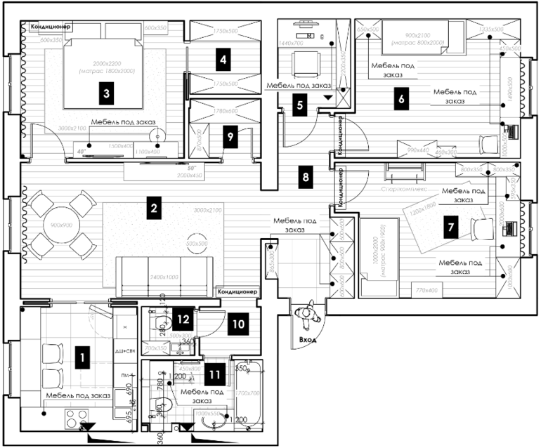
Одна стена окрашена асимметрично - такая идея появилась неслучайно. Изначальная планировка имеет несущие балки, от которых невозможно избавиться. Из-за этого проём в прихожую оказался ниже дверных, что бросалось в глаза. Скрыть недостаток получилось, когда мы выкрасили стену с проёмом, часть потолка и соседних стен в цвет дверей. Таким образом появился стильный графичный акцент.

В гостиной получилось 5 дверных проёмов, но одного из них не видно на картинках - того, о котором идёт речь выше. Слева - дверь, которой не было в изначальной планировке. Вход в спальню находился справа, а теперь там расположилась общая гардеробная.

Заказчики попросили спроектировать отдельную кухню. Она не слишком большая, - 9 кв. м, но благодаря перепланировке получилась достаточно вместительной и удобной. Ранее вход в кухню был на месте встроенного холодильника, возле "столбика" с духовкой и микроволновкой. После того, как мы перенесли дверной проём, освободились две стены для кухонного гарнитура и П-образной столешницы. Обеденный стол вынесен в зону гостиной, а напротив окна предусмотрены барные стулья для быстрого лёгкого перекуса или неформального чаепития с подругой.

Чтобы не скатиться в "классичность", которая на многих навевает тоску, хорошо использовать цвет. Дозированно, по чуть-чуть. Здесь, например, это стулья и римская штора, в гостиной - диван и тёмно-серая графичная часть стены.


Справа от кровати - дверь в гардеробную. Эту стену мы возвели искусственно, чтобы сделать две раздельные гардеробные - вход во вторую вы видели в гостиной. Спальня после перепланировки получилась почти квадратной, 14 кв. м по площади. Визуально так смотрится гораздо уютнее
Здесь современная классика не столь явно бросается в глаза: нет молдингов, ни подвесных светильников, ни других привычных элементов. Ненавязчивым штрихом - фасады шкафчиков и выдвижного ящика в туалетном столике, торшеры на тумбочках у изголовья кровати, потолочные плинтусы.

Детская мальчика стала чуть меньше, поскольку мы "отщипнули" от неё кусочек для ниши в прихожей, куда поместился встроенный шкаф. Мы старались не делать интерьер совсем уж детским, хотелось, чтобы он получился более универсальным по возрасту - подходящим и для ребёнка-дошкольника, и для более взрослого пацана.


Ценность его в том, что он при своих размерах получился весьма вместительным и функциональным. В гостиной или спальне было бы не разместить полноценную рабочую зону. Однако в таких мини-кабинетах есть очевидный недостаток: отсутствие окна и естественного света, а также нехватка свежего воздуха.

