Наиболее удачная планировка

Я за первую.
28.05.2020
Мне, однозначно, больше первый вариант нравится, он более перспективный.
27.05.2020
Спасибо! Тоже в итоге остановились на 1 варианте
28.05.2020
Однозначно второй. И во втром варианте столько же комнат что и в первом. Почему Вы говорите о том, что не будет комнаты для родителей?? На планах я вижу квартиры с одинаковым кол. жилых комнат.
26.05.2020
Спасибо=) , уже несколько раз отвечала на этот вопрос ниже)
26.05.2020
второй
26.05.2020
Я бы второй вариант выбрала. Не поняла, почему вы написали, что там спальни для родителей не будет - количество комнат одинаковое.
26.05.2020
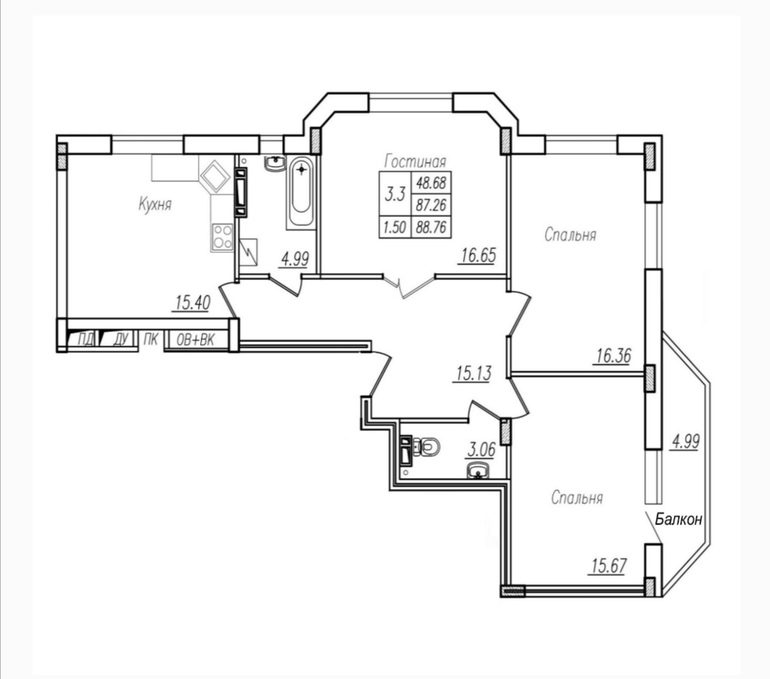
Потому что в 1варианте кухня и гостиная объединены и "освобождается" одна комната под спальню. А во втором варианте кухня обособлена, гостиная, в которой спальню не сделаешь, и 2 условных детские, для супружеской спальни места нет и для родителей тоже, если только детей вместе поселить.
26.05.2020
Так это же условное обозначение от застройщика. В первом варианте вообще одна комната именуется гардеробной))) во втором варианте вполне можно поставить диван в кухне, и будет кухня-гостиная.
26.05.2020
Хотя сейчас посмотрела, в первой площадь на 10 кв м больше. А стены в квартире будут от застройщика или нет? Если в первой попробовать изменить планировку (коридор какой-то бестолковый, одни повороты), то можно и первую вполне.
26.05.2020
Да, стены будут, но дом монолитный, можно и снести стены😁 коридор согласна, странный, но зато можно его отделить и сделать гардеробную)) много сомнений, и в 1, и во 2 варианте есть и плюсы, и минусы. Нужно все обдумать🤔
26.05.2020
Но все стены снести будет нельзя в любом случае - там нужно аккуратнее быть с санузлами и кухней-гостиной.... тут бы лучше с дизайнером-архитектором потом планировку обсудить, когда определитесь, чтобы подсказали именно по стенам хотя бы.
26.05.2020
Дада, конечно, это однозначно
26.05.2020
А я бы первую выбрала. Кухня-гостиная прям мечта! В нишу в эту кухню, а остальное зона гостиной. У нас сейчас кухня примерно как во втором варианте и три спальни. Ну мала она для полноценной гостиной и гостей там не оставить(((
26.05.2020
можно в такую сторону подумать сделать кухню-гостинную для общего времяпрепроваждения
26.05.2020
Здравствуйте. Я бы выбрала первый вариант. Выход в комнату сделать из кухни. Часть коридора под гардеробную. Площади спален сохранены и вполне приемлемы.
26.05.2020
Как вы классно придумали, спасибо огромное вам! Я вот вчера просидела над жтой планировкой, все думала-думала, как сделать, только гардероб придумала и то неудачно- в спальне. А у вас со входом из кухни очень даже по душе мне! Спасибо, будем думать!
26.05.2020
Пожалуйста) Обращайтесь за дизайном
26.05.2020
Вы делаете и перепланировки, и непосредственно дизайн?
26.05.2020
Да. Мои проекты посмотрите в дневнике)
26.05.2020
Если в старости забирать родителей - то я бы выбрала 1, всё-таки дальняя комната хорошо изолирована от шума остальной квартиры , плюс туалет рядом 🤭 (но стоит ли на это ориентироваться сейчас?) с другой стороны, как родительская спальня тоже отлично бы подошла, там выспаться по выходным отлично будет. Но второй вариант тоже хороший, явно более светлая квартира будет.
26.05.2020
Оставшиеся комментарии доступны после регистрации
Зарегистрируйтесь и получите полный доступ ко всем функциям сайта.
Безопасность в квартире (окна) ГДЕ НАЙТИ УДОБНЫЕ СТУЛЬЯ ДЛЯ КУХНИ