Помогите с планировкой для подростка 11 лет
Интерьерное решение детской комнаты
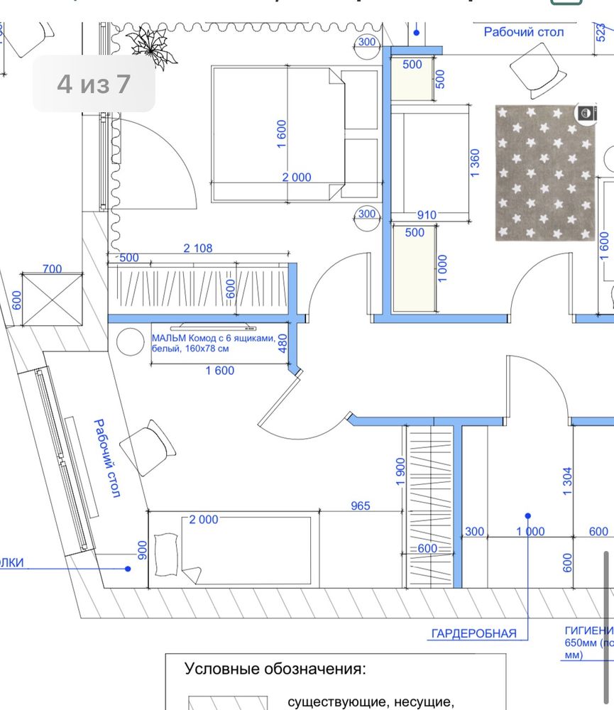
Привет Всем с ББ,помогите определится с планировкой для мальчика 11 лет,комната не большая и еще не правильной формы.Хотелось бы полноценное 1,5 спальное место ,рабочую зону ,телевизор ...но как то все не так получается...может у меня уже глаз замылился и у вас есть идеи?По стилю что то с лофтом...но тут скорее вопрос с расстановкой мебели и соответственно правильно сделанной электрики и стен.Без вашей помощи ни как
Светкин
Добрый день, я не дизайнер но рассмотрела бы такой вариант.
Сторону окна отделать клинкерным кирпичом(оттенок терракота/коричневый), зону спального места деревянными рейками. Если расположить телевизор на кронштейне, то его можно будет смотреть и из другой части комнаты. Стены под покраску глубокий оттенок серого, или насыщенный тёмно синий оттенок. Вариант скорее для подростка, но дети растут очень быстро.
Ссылка на кресло: https://fabiero.ru/catalog/kresla/interernye_kresla/kreslo_eames_style_lounge_chernaya_kozha/
Ссылка на кресло: https://fabiero.ru/catalog/kresla/interernye_kresla/kreslo_eames_style_lounge_chernaya_kozha/
20.08.2020
Ответить
Elena
Я как-то проектировала вот такой вариант организации спального места в детской:
Может быть вам понравится идея...
Может быть вам понравится идея...
22.07.2020
Ответить
Anna Nicole
У вас очень неплохо нарисовано. Я бы только кровать изголовьем к шкафу, а не к батареи рисовала. Из других вариантов просится кровать на место шкафа - прекрасный альков получился бы... Телевизор точно нужен? мы вот сделали, а можно было бы экран компьютера использовать, все равно смотрим только через интернет, тв не включается вообще.
21.07.2020
Ответить