Консультация у дизайнера (пример в деталях)
Предлагаю/ищу услуги(общая)
Очень часто люди не знают, что дизайнеры делают не только проекты, но и дают консультации.
Чем хороша консультация?
Конечно, стоимость! Стоимость смешная, польза огромна!
Полезна в двух случаях: 👇
1. У вас планируется покупка жилья и вы не знаете, какой из вариантов выбрать? Возьмите консультацию у дизайнера. Многолетний опыт позволяет с первого взгляда увидеть все плюсы и минусы, набросать вам удобную планировку (с учетом законов СНиП и СанПиН), помочь советами.
2. Вы уже купили квартиру, но денег на полноценный проект у вас не осталось. Присылайте свою планировку, мы её с вами доработаем или проработаем с нуля, с учетом ваших особенностей семьи и жизни, дам советы по дизайну и картинки, на которые можно опереться, чтобы у вас всё получилось.
Разберём подобную историю на примере:
Ко мне обратилась девушка, купившая квартиру под самоотделку.
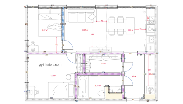
Вот, что собою сейчас представляет её квартира:

Был уже заказан проект планировочного решения (кстати, не за такие уж маленькие деньги) и заказчица была уверена, что улучшить уже ничего нельзя.
Немного наших обсуждений на скринах из вотсап чата:


И вот, какой проект мы имели в начале нашего общения:

Вот, что получилось после:

Пояснение:
1- дверь не будет открываться на шкаф, она будет раздвижная, но заказчица чертила сама в программе и не знала, где взять раздвижную дверь.
2- я ничего не чертила, я только рассказала, что и как мы можем переделать, чтобы было лучше. На основании моих советов, заказчица сама доработала планировку, используя те советы, которые ей пришлись по душе.
А вот и её отзыв о нашей работе:

Если у вас остались вопросы, готова ответить.
Запись на консультацию в личные сообщения или по телефонам:
+79264293395 (watsapp)
+79111744603 (если вам удобнее поговорить по телефону).
Остальные услуги можно посмотреть на сайте: