Комната подростка
Интерьерное решение детской комнатыРемонт еще только в планах на 2022 год, а я уже вся киплю мыслями)
АПД. Многие советуют кровать ставить "как у взрослых", накидала топором по березе вот такой вариант. В нем мне импонирует, что у входа в комнату как бы "общая зона", а кровать вдали (если у таких габаритов может быть "вдали"). Не нравится, что шкаф опять 1,5 м (хотя ей, конечно, хватает)

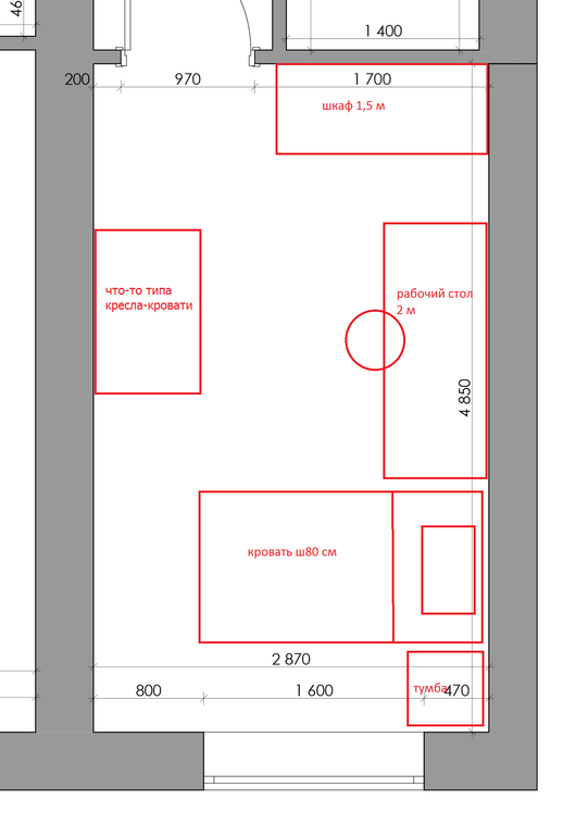
В общем, мы решили поменять детей комнатами: отдать младшей комнату побольше (ибо школа и место для игр в Икс Бокс), а старшую (14 лет к тому моменту ей будет) переселить в более камерную комнату вытянутой формы. Комната окнами на юг, около 13,5 кв.м, потолки 2,75 натяжные. Из недостатков комнаты - непродуманная в свое время электрика. Точнее, она была продумана под маленького ребенка и имеющуюся расстановку мебели. Отметила розетки и хоть какие-то выводы проводов на плане. Сильно штробить стены и снимать потолки (проводка над ними), не хотелось бы, поэтому, видимо, максимум - добавить гнезд розеток в имеющихся местах.
Ниже я прикинула (очень топорно) расстановку мебели, все подписано. Давайте пообсуждаем. В целом мне все кажется логичным, смущает отсутствие места "посидеть принять гостей", но практика жилья в нынешней комнате показывает, что на "диване для гостей" живет гитара, подвесное кресло не используется: вся жизнь у человека протекает на кровати либо за столом.
В общем, я открыта вашим советам- времени вагон.
По цветам и стилю нет никакого понимания, это ребенок будет решать, предполагаю, что все будет современное, лаконичное, возможно, темных цветов.

Примерно так.
От розетки при входе провести освещение к шкафу при необходимости.
ТВ вроде логично напротив кровати повесить, но есть риск сшибать его головой при проходе) если только повыше. Как вариант привязать его к розетке ближе к окну на этой же стене. От розетки по правой стене ночник на тумбочке возле кровати и освещение рабочего стола/оргтехника. От ближней к окну розетки при необходимости провести свет в тусовочную зону на подоконнике. На окно можно рулонную штору, если очень хочется классические шторы, повесить потолочный карниз не вплотную к окну, а отступить от стены на ширину комодов.
С такой системой хранения и шкаф большой не нужен)
Я б в такой комнате жила)
с кроватью пошире (рекомендую подумать об этом )))))
