Дизайн интерьера дома 1 эт
Авторские проекты дизайнеров.(Посты не по теме будут удаляться!)Загородный дом - это возможность уйти от суеты и шума мегаполиса. Локация: Крым Общая площадь 1 этаж : 60 кв.м



На данный момент спальня будет для хозяев ,но уже сейчас мы занялись визуализацией второго этажа , и позже эта спальня будет только для гостей.












В холле решили сделать выдвижные шкафы под лестницей , так же основная гардеробная комната запланирована на втором этаже

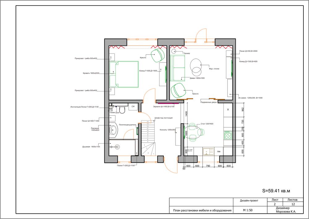
Прилагаю план расстановки мебели и оборудования и как выглядит дом снаружи.
Так же сейчас активно уже идёт ремонт по проекту , онлайн я помогаю своим заказчикам точно определиться с материалами , цветами по тканям и т.д.




Так же в ходе реализации проекта решили заменить цвет кухонных стульев.

Roxanne Bluetiger
Anna Nicole, Я не могу заказчику запретить смотреть ТВ )Спасибо большое 🤗
06.05.2021
Ответить
MamaDeni
Впечатление от интерьера - надену все лучшее сразу. От количества блестящих элементов в глазах рябит. Телевизор в каждом помещении 🙈. Никакой концепции. Понятно , что желание заказчика закон, однако интерьер должен быть актуальным и отражать современные тенденции, даже, если вы делаете более-менее классический дизайн. Розовый, ментоловый, светло-сиреневый - вообще странный выбор цвета.
06.05.2021
Ответить
Roxanne Bluetiger
Ольга, Я прилагаю ссылки на определённые материалы ( так же прописываю нужное колличество ) светильники и частично мебель ( но не прописываю цены ) могу вам отправить пример как все это выглядит
При подборе учитываю желаемые цены( диапазон)
06.05.2021
Ответить
Ольга
Как то не похоже на 60 кв м))
Круто! Только машинка стиральная во всю эту красоту как то не вписывается)
06.05.2021
Ответить
Roxanne Bluetiger
Ольга, все как на плане ) машинку предлагала спрятать в шкаф , либо встроенную на кухне , но заказчицa предпочла B санузле
Спасибо большое 🤗
06.05.2021
Ответить