Квартира для молодой пары
Авторские проекты дизайнеров.(Посты не по теме будут удаляться!)Сегодня хочу показать проект двухкомнатной квартиры для молодой семейной пары, площадью 70 кв.м. В нейтральном светлом интерьере ярко играют цветные акценты.
На кухне доминирующим цветом стал насыщенный синий. Также в оформлении используются золотистые элементы, которые повторяются в каждой комнате. Круглый стол идеально вписался в солнечный эркер.


В прихожей использована та же плитка с мраморной текстурой. Яркие постеры над подвесной тумбой здорово оживляют интерьер.



Не смотря на скромные размеры прихожей, место в ней удалось использовать по максимуму. Также чуть дальше по коридору находится небольшой встроенный шкаф.
В гостиной в качестве акцента использовался глубокий изумрудный цвет.




Из этой комнаты можно попасть на небольшой балкончик, его мы тоже облагородили и сделали там уютный уголок для посиделок.

Напротив расположился глубокий шкаф.
Обязательным условием от заказчиков было расположить в спальне кошачий домик, который у них уже был) Что ж, любимца мы тоже не обидели!



Туалетный столик - мечта любой девушки) Зеркало по бокам выделили светодиодным профилем, который дает мягкий рассеянный свет.

Эркерный балкон утеплили и присоединили к комнате. Там удалось расположить большое и удобное рабочее место.

В санузлах для акцента использовали насыщенную изумрудную плитку. База - все та же плитка под мрамор. Стиральная машинка размещена под единой столешницей с раковиной. Визуально такое решение смотрится более целостным и гармоничным.




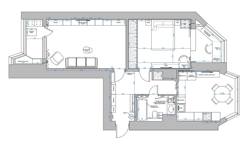
Планировка квартиры для тех, кому интересно:

С удовольствием почитаю ваши мысли! Не против аргументированной критики, но прошу высказывать ее в корректной форме. Каждый объект - это не просто абстрактный набор картинок, а дом, который заказчики любят всем сердцем.
Ссылка на мой сайт:
Ссылка мой инстаграм: trifanova_maria
Телефон: 8-903-635-77-16 (Билайн)
Электронная почта: trifanova1989@mail.ru