Квартира в современном стиле для мужчины 77 м2
Авторские проекты дизайнеров.(Посты не по теме будут удаляться!)Всем доброго дня , закончила работу над квартирой для мужчины в современном стиле, для комфортного времяпрепровождения .
Квартира с большой кухней-гостиной ,она открывается сразу при входе в квартиру. На стенах используется микроцемент и на фартуке кстати тоже, этот материал очень устойчив к воде и повреждениям механическим , можно даже как напольное покрытие использовать.
Спальня у нас тоже с необычным материалом на стенах , это крупноформатный керамогранит с покрытием под штукатурку , задает геометрию и так же встроенные трековые светильники у изголовья в роли декоративного и функционально освещения .
Ванная комната лаконичная, но с акцентом на ассиметричное зеркало
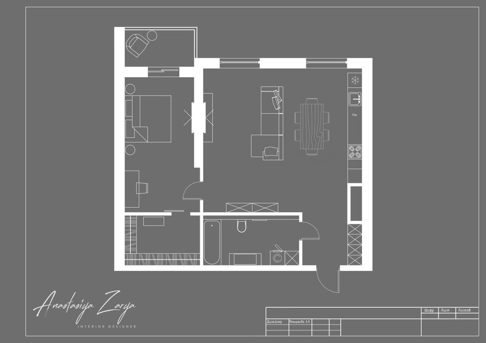
План квартиры
Спасибо за внимание заходите ко мне на страничку в инстаграм 👉 Анастасия Заря и заказывайте дизайн-проект )