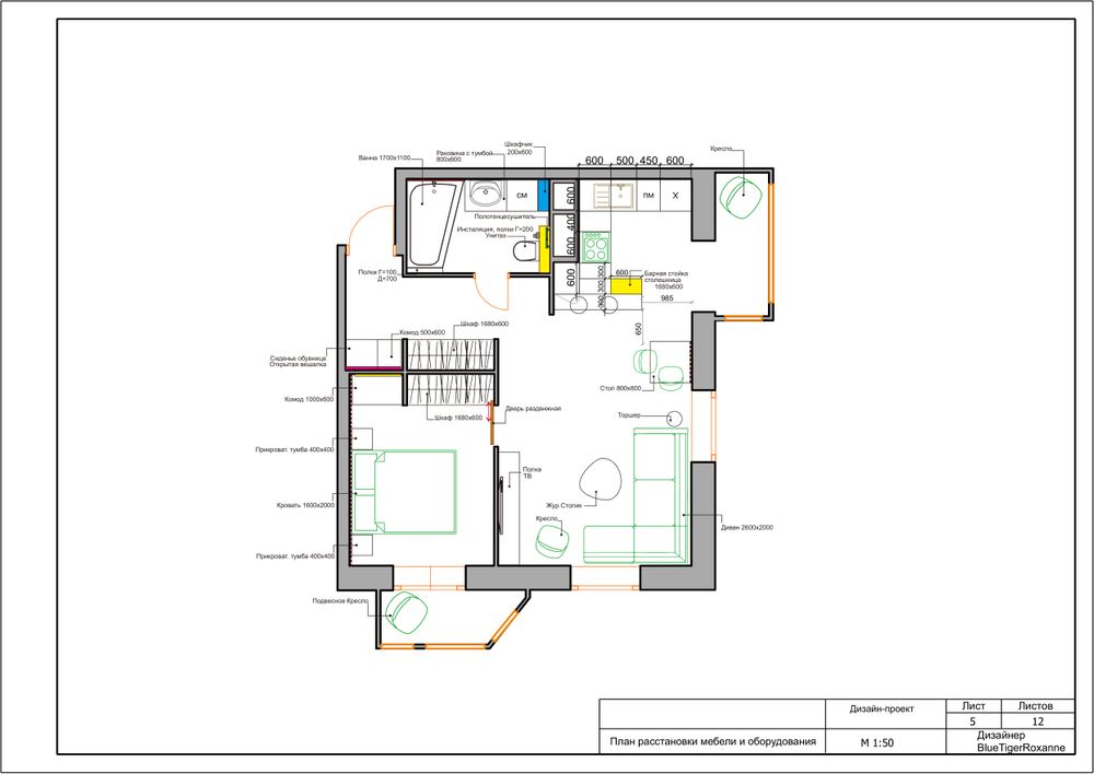
Дизайн проект спальни
Авторские проекты дизайнеров.(Посты не по теме будут удаляться!)стиль: лофт+современный+эко+скандинавский+немного Азии
Пожелания От заказчицы по стилю По материалам в основном белые стены и декоративный кирпич, и немного дерева ( в качестве декорирования используются деревянные рейки
Чтобы придать комнате немного Азии ( заказчица очень любит такие детали) решили использовать светильники в виде китайских фонариков И сделать рисунок на двери шкафа сакуры.
Чуть позже опубликую остальные визуализации комнат
Елена
А без дизайнера такой интерьер нельзя было сделать? Покупаешь все самое дешёвое и вот она спальня готова🤷🏼♀️ пол вообще ужасный, как и стены🤦🏼♀️
16.07.2021
Ответить
Marika
Елена, ну кто-то может не знать, как расчитать правильное количество реек и где взять эти рейки и как монтировать. Кто-то хочет видеть визуально, как оно должно получиться. Такому человеку без дизайнера не справится. А нравится ли оно лично вам, это уже второй вопрос. Вкусы же разные у людей, и скажем честно, тут много мелькает фоток спален и почти все они ни о чем, так что эта на фоне их, очень даже....
17.07.2021
Ответить
Roxanne Bluetiger
Виктория, Сейчас переходим к реализации проекта
Возможно и так ) заказчица не хочет придерживаться какого-то одного стиля поэтому создавали интерьер по ее пожеланиям
16.07.2021
Ответить
Виктория
Roxanne Bluetiger, а я это не к тому, что так нельзя или не получится, но звучит смешно :))
16.07.2021
Ответить