Дизайн квартиры 50 кв.м
Авторские проекты дизайнеров.(Посты не по теме будут удаляться!)О проекте Место:
Москва Размер: 50 кв.м.
Кто здесь живет: девушка
Пожелания От заказчицы по стилю;лофт+современный+эко+скандинавский+немного Азии.
По материалам в основном белые стены и декоративный кирпич, и немного дерева ( в качестве декорирования используются деревянные рейки。)

На кухне использованы
Грифельная доска - это необычно…
Данный элемент декора найдётся не на каждой кухне. Это говорит о неординарности хозяйки.Такой предмет приятно удивит гостей и будет постоянно вас радовать.
Владелице хотелось получить интерьер светлый , сдержанный по цветовой гамме .Над диваном обязательное пожелание расположить декоративную карту мира.


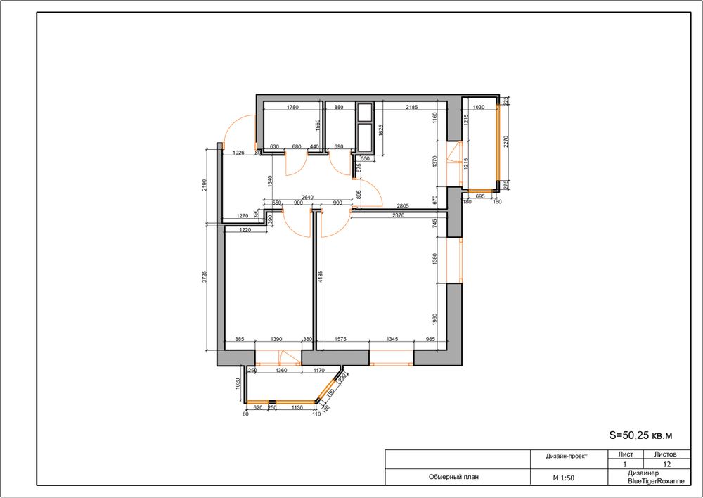
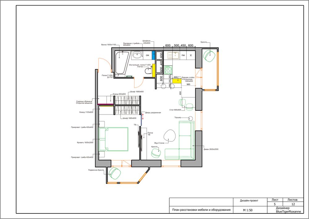
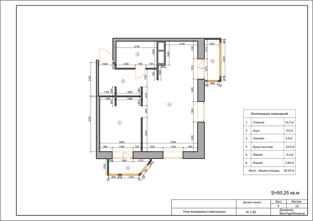
Планы
Ванная комната и туалет были соединены в одно помещение .Демонтирована стена между кухней и гостиной 。

Чтобы придать комнате немного Азии ( заказчица очень любит такие детали) решили использовать светильники в виде китайских фонариков.
И сделать рисунок сакуры на двери шкафа.

В ванной комнате рассмотрели два варианта , обычная прямоугольная ванна и ассимитричная.Заказчица выбрала с ассимитричной


Приступаем к реализации проекта