Квартира для молодой пары 50 м2 ЖК "ТЫ И Я"
Авторские проекты дизайнеров.(Посты не по теме будут удаляться!)
Данный проект разрабатывался для молодых ребят, задача была создать современный интерьер , минималистичный, много натуральных материалов , бюджет ограниченный.
Квартира располагается в комплексе ЖК ТЫ И Я Москва
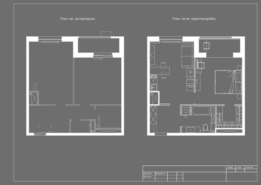
От застройщика по плану было заложено 2 санузла , кухня и спальня .Мы оставили один санузел расширили за счет коридора его и выделили отдельную гардеробную заказчикам это было в приоритете .Что получилось вы видите ниже .


Входная зона.
Есть тут один момент, глубина правого простенка от двери не давала нам поставить полноценный шкаф для верхней одежды, нужна глубина 55-60 см, у нас получался в лучшем случае 45 см, и вот такое решение конструкции шкафа дало возможность разместить шкаф полноценной глубины.
Была еще идея уменьшить проем на 10 см , но там проблематично с отделкой со стороны площадки общей , поэтому отказались .
И ещё поставим красивые ручки из массива LOBARO на фасады шкафа.

Кухня-гостиная
Тут в целом все лаконично, заказчик намеренно отказался от верхних шкафов что облегчило зону кухни и тв. Светильники в потолке встроенные под шпаклевку от них мы будем видеть только тень углубления, а корпуса не видно )
В левой колонне будет спрятана кофемашина и тостер , для них мы заложим розетки, ничего доставать не нужно .
Спальня.
Такая же минималистичная , тут будет расположено два рабочих места , одно у тв зоны , другое на балконе
Санузел
Чтобы сэкономить бюджет , керамогранит будет только в зоне ванной и пол , остальное это будет штукатурка или микроцемент . И много систем хранений
На стиральной машиной и сушкой так же спрятан бойлер .
И если присмотреться тумба для раковины с маленьким секретом )
Спасибо за внимание заходите ко мне на страничку в инстаграм 👉 Анастасия Заря и заказывайте дизайн-проект )