Двухкомнатная квартира 52кв.м для семьи из трёх человек
Авторские проекты дизайнеров.(Посты не по теме будут удаляться!)Квартира для семьи из трёх человек, родители + ребёнок 14 лет. Площадь 52,4 + лоджия 8,7 кв.м.
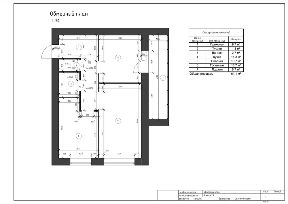
Изначальный план квартиры:
На самом деле, проект для знакомых, на сегодня один из самых сложных проектов, в плане запросов. У каждого из семьи свои пожелания, что нравилось супруге, то не нравилось мужу)
И самая огромная ошибка - взяться за работу без референсов от заказчиков... точнее они были, 2-3 фото на всю квартиру и тут я просто гадала! И на самом деле, это неокончательные варианты рендеров, многое заказчики изменили и выбрали др варианты, если интер
есно покажу) Кстати, планировку меняли по минимуму, это тоже пожелания хозяина. Такие предложения по планировке были, всегда рисуем варианты планировок, вот они:
В итоге такую планировку согласовали. Зеленым цветом показаны возводимые стены, а красным демонтируемые.
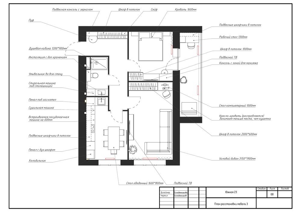
Я данную квартиру вижу так:
Прихожая
Коридор
Попадаем на кухню
За скрытой дверью, мини-помещение, там расположен котел, счетчики на воду, и колонна со стиральной/сушильной машиной. Изначально этот закуток был частью кухни.

Спальня

Балконный блок заказчики решили не убирать
Ванная и санузел


Изначально рисовала черную сантехнику, но выбрали хром)
Далее огромная лоджия! Кстати батареи
предусмотрены застройщиком, и такое бывает))) Тут все законно, у дома своя котельная.
Кресло, которое можно расправить в кровать. Изначально заказчики хотели кушетку, но все-таки с креслом удобнее, не занимает столько места, как кушетка.
Рабочая зона поближе
Ну и комната подростка


Спасибо за просмотр!)
Лучший ответ
Анастасия Interior designer, ждала такой комментарий) Конечно же, я знаю нормы перепланировок, куда без этого. Более того, изначально рисовалось все с дверьми, как положено. Тут собственники решили взять риски на себя. Также я предлагала отказаться от газовой плиты, поставить индукционную, но не хотят. В данном случае беру расписку от заказчиков, на всякий случай + на плане монтаж/демонтаж пишут в свободной форме что всю ответственность берут на себя и роспись.

