Помогите расставить мебель в спральне
Интерьерное решение спальниДано практически квадратная комната 4.3 на 3.3.
Стена где изголовье кровати 4.3
Нужно поставить шкаф 120 на 60
Косметический столик 70 на 40
Комод под вопросом
Справа стена в комнате вот такая( наверное не стоит заставлять)

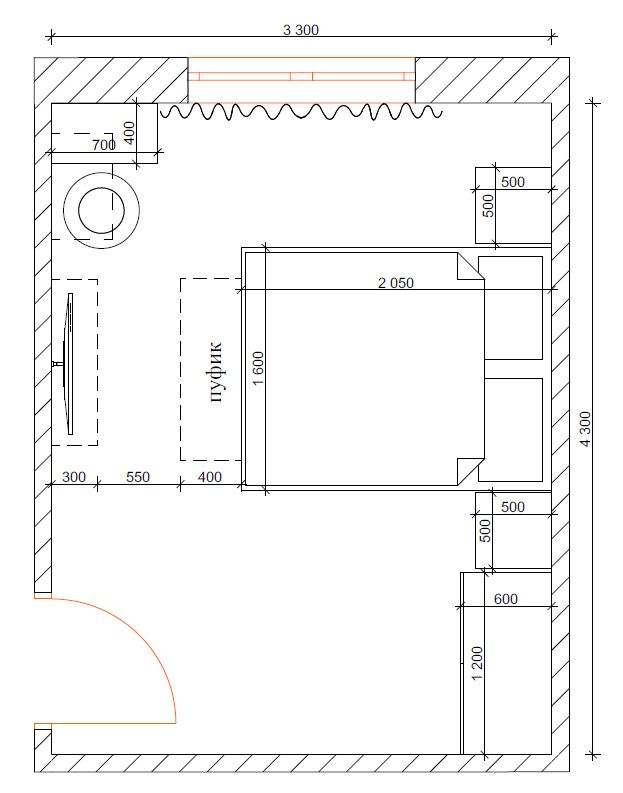
selena1002
Катя, доброе утро! Вот что получается:
Если ставить шкаф к акцентной стене по длине, это ничего не изменит, выиграет, может, 10 см). Туалетный столик можно поставить, как показано пунктиром, но тогда проход уйдет из-за пуфика. В изножье кровати можно поставить пуфик, чтобы складывать покрывало и одежду на ночь. А под тв тумбу. Но лучше что-то одно).
Если ставить шкаф к акцентной стене по длине, это ничего не изменит, выиграет, может, 10 см). Туалетный столик можно поставить, как показано пунктиром, но тогда проход уйдет из-за пуфика. В изножье кровати можно поставить пуфик, чтобы складывать покрывало и одежду на ночь. А под тв тумбу. Но лучше что-то одно).
30.04.2022
Ответить
Катерина
selena1002, огромное вам спасибо. Идеальный вариант. Никогда бы не догадалась так поставить шкаф и космет столик
30.04.2022
Ответить
selena1002
Катерина, на здоровье! Это моя работа) Обращайтесь, помогу с чертежами))
30.04.2022
Ответить
Катерина
selena1002, подскажите. А по цветовой гамме вы мне не могли бы полсказать? Есть комнате. Есть шкаф. Нужно понять какого цвета плед что обыграть комнату для ребенка( унисекс).
01.05.2022
Ответить
selena1002
Катерина, добрый день! Могу, бывало и такое), подбирала покрывало в детскую. Пишите мне на почту astella11@yandex.ru, и присылайте информацию.
01.05.2022
Ответить
Анна
Катерина, столик очень маленький. Он, если постапить его на акцентную стену, будет там стоять как среди пустыни. И кстати на его место явно встает целый шкаф
29.04.2022
Ответить
selena1002
Добрый день! А есть точные размеры комнаты? И какой второй размер кровати 160х...?
29.04.2022
Ответить
Анна
если к красивой стене поставить туалетный столик, то будете краситься спиной к окну. что, согласитесь вам будет неудобно. можно, конечно зеркало с подсветкой, но все равно, будет хотеться солнечного света для проверки результатов нанесения макияжа.
можно туда комод длинный поставить. Но у вас некуда шкаф ставить получается.
если бы знать длину стен. Я бы проверила вариант - кровать спинкой к нарядной стене, ногами к окну. у окна вдоль скорее всего правой стены небольшой шкаф, и лицом в окну туалетный столик, или в углу у окна, с возможностью повернуться к окну.
28.04.2022
Ответить
Капитолина
Есть сайт floorplanner, там все размеры можно указать для комнаты, размеры мебели даже корректировать. Есть стандартная мебель из икеи.
Каждый раз когда перестановку хотим устроить, то заходим туда и расставляем. А главное, что бесплатно.
Очень удобно, сохраняется все на аккаунте.
Там 3д можно посмотреть, как комната будет выглядеть с этой мебелью.
28.04.2022
Ответить
Анна
Netti, я тоже про это подумала. 14,5 метров комната ,а ничего кроме кровати не поместилось
28.04.2022
Ответить
Netti
Анна, у меня на 10 метрах кровать 160, комод, две тумбочки и шкаф небольшой)))) а тут реально 14 метров и одна кровать)))
28.04.2022
Ответить
Netti
По мне так самый оптимальный вариант такой. Но акцентная стена тогда закрыта шкафом. Но все влезает! И ещё и место есть. Здесь на акцентной стене шкаф 2 метра, ширина 60. Напротив кровати комод 1,5 метра на схеме.
вообще для спальни акцентная стена странно выбрана. Такая больше для детской подходит. Netti,
По мне так самый оптимальный вариант такой. Но акцентная стена тогда закрыта шкафом. Но все влезает! И ещё и место есть. Здесь на акцентной стене шкаф 2 метра, ширина 60. Напротив кровати комод 1,5 метра на схеме.
вообще для спальни акцентная стена странно выбрана. Такая больше для детской подходит. Netti,
28.04.2022
Ответить
Анна
Netti, вот у меня у сына 15 метров комната, там прям очень просторно. Точно не по метру от кровати до стены
28.04.2022
Ответить