Как расставить мебель?
Вопросы и ответыВсем добрый день! Прошу помощи в расстановке мебели в детской для двух мальчиков. Что имеем?
Вот такую комнату с большим окном. Из мебели имеем 2 кровати, большой шкаф (встанет на всю стену напротив окна), спорткомплекс. Нужны также два полноценных учебных места. И, в идеале, место для кресла-кровати (ночёвки друзей и меня, когда болеют). Вроде бы и комната хороших размеров, но никак не соберу все в кучу.
Из пожеланий: 2 отдельные кровати без вариантов, не нужен телевизор, два стола не рядом (сидеть спокойно друг другу не дадут).
Всем ответивших огромное спасибо за советы!
Крошка
Наталья, как в итоге решили расставить мебель?
У нас ситуация очень похожая, комната девчонок 20 метров, тоже одна левша. Шкаф купе во всю стену напротив окна.
Тоже думаю как поставить столы, на будущее, к школе, и кровати
09.12.2022
Ответить
Наталья
Крошка, пока втянулись в ремонт и в процессе дети выпросили двухъярусную кровать. Будет стоять слева от окна. С ней рядом спорткомплекс. На другой стороне два стола, между ними полка для книг, стеллаж для игрушек. Кресло кровать для гостей приткнем куда нибудь))
09.12.2022
Ответить
Катя Самохина
Добрый день ! Не забывайте еще и о кроватях-трансформерах ))) Тоже отличный вариант, и место экономят и превращаются в рабочий стол или шкаф ))
15.11.2022
Ответить
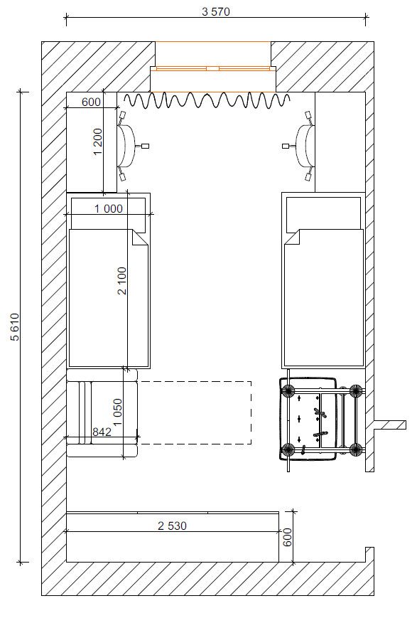
selena1002
Наталья, добрый день! Если расставлять так, как Вам предлагают ниже, то нужно учесть все размеры длин. И какие размеры и двери у шкафа?
19.10.2022
Ответить
Наталья
selena1002, огромгое спасибо за проект с размерами!!шкаф кажется так и будет около 240, не мерила пока, не успела. Кровати у нас 130 (140 с бортами) и 160 (170 соответственно). Поэтому ваша расстановка как раз встанет как нужно!
19.10.2022
Ответить
selena1002
Наталья, не за что! Обращайтесь)) В ближайшем будущем можно сделать что-то подобное:
А в далеком будущем, как в последнем варианте:
А в далеком будущем, как в последнем варианте:
19.10.2022
Ответить
Кама
Если принципиально шкаф напротив окна, то кровати параллельно друг другу, дети сидят спиной друг к другу. Между кроватью и шкафом встанет раскладное кресло. Смотря какой спорткомплекс, можно впихнуть его на место кресло (на картинке), а кресло справа от входа поставить.
Если не принципиален вопрос шкафа, то при таком расположении мест хранения можно организовать больше. И столы сделать длиннее. Но спорткомплекс точно не впихнуть.
Или вот так, спорт комплекс слева от двери можно попробовать расположить.
Если принципиально шкаф напротив окна, то кровати параллельно друг другу, дети сидят спиной друг к другу. Между кроватью и шкафом встанет раскладное кресло. Смотря какой спорткомплекс, можно впихнуть его на место кресло (на картинке), а кресло справа от входа поставить.
Если не принципиален вопрос шкафа, то при таком расположении мест хранения можно организовать больше. И столы сделать длиннее. Но спорткомплекс точно не впихнуть.
Или вот так, спорт комплекс слева от двери можно попробовать расположить.
18.10.2022
Ответить
Наталья
Кама, ого сколько вариантов!! Спасибо огромное, буду думать. Спорткомплекс небольшой, лестница и и турник. Шкаф большой, нам оставляют хозяева квартиры, новый почти, даже чеки есть. И в цвет подходит. Туда уйдет вся одежда пацанов, игрушки и игрушечная заначка))
Из ваших оставлю все таки первую конфигурацию, спорткомплекс может ещё куда запихаем)
18.10.2022
Ответить
Alisha10
Добрый день, если шкаф обязательно должен стоять напротив окна, то, наверное, сделала бы так. Оранжевые столы, спорткомплекс сразу справа от входа. Кресло по идее поместится между кроватью и шкафом, но так ли оно нужно?
18.10.2022
Ответить
Наталья
Alisha10, интересный вариант)попробую обязательно со скотчем.
Кресло принципиально. Для ночующих друзей и меня, когда дети болеют, сплю с ними.
18.10.2022
Ответить
Наталья
Настя, шкаф почти новый, остаётся от прошлых хозяев. В него уйдут и одежда, и частично игрушки, то, что убираю на время, чтоб надоело.
18.10.2022
Ответить
Юля
Столешница под окном- очень удобно и по бокам от окна можно пеналы сделать для книжек и всяких коллекций машинок, роботов и тд. Плюс стол у окна= хороший свет. Батарею мы регулируем раза 2-3 за зиму, никаких сложностей нет. Кровати поставить друг напротив друга вдоль стенок Для гостей- хороший надувной матрас. Учитывайте размеры мебели+ 80 см на проходы, распашной будет шкаф или раздвижной и тд. Если сложно представить все, измерьте точно всю мебель и малярным скотчем в комнате на полу заклейте размеры в натуральную величину.
17.10.2022
Ответить
Наталья
Юля, у нас с батареями все сложно. Топят очень сильно и чаще всего на ночь отключаем, утром включаем, то есть два раза в день уже туда лезть. Плюс если батарея включена, то сидеть рядом очень сложно, жарко, вот этот момент ещё учитываю...ну и то, что топят полгода в году...
Иде со скотчем супер, спасибо, обязательно возьму на заметку!
17.10.2022
Ответить
Екатерина
Я бы все таки столешницу общую сделала во всю стену где окно. А чтоб не мешали друг други то тумбы под столы поставила прям под окном, так они друг до друга врядли дотянуться. А дальше симметрично кровати напротив друг друга, и по длинной стене спорткомплекс.
17.10.2022
Ответить
Наталья
Екатерина, общую столешницу не хочу. Ооочень много отзывов читала, что это худшее решение. Плюс там батарея, отключать-включать не наползаешься. Ну и есть уже один отдельный классный стол, расставаться не хочу.
17.10.2022
Ответить
Настя
Наталья, у меня стоит столешница одна на двоих. В лего на ней играть удобно, все остальное - нет. Либо она должна быть метра три и посредине тумба.
18.10.2022
Ответить
Наталья
Настя, мои даже на 10 метрах найдут, что поделить, будут заглядывать за плечо брату, искать на стороне брата ножницы, ручки, карандаши (на своей же 100 таких нет) и периодически поднывать "рисуешь? Я хочу с тобоооой".
18.10.2022
Ответить
Настя
Наталья, да-да-да! Аналогично!
Я помню себя с сестрой, мы в одной комнате жили долго. Всегда у нас были два стола. Я была страшная единоличница.
18.10.2022
Ответить
Аня
У меня твой набор мебели не становится никак, увы, именно чтобы отдельные кровати и столы далеко друг от друга. Спорткомплекс в ширину минимум 80 см, но обычно ещё место по бокам надо для раскачивания. Столы минимум по 110 см. Ну или 100, но совсем темно будет при наличии компьютеров в будущем. Кровати 210. И шкаф большой напротив окна. И кресло-кровать около 100 см.
17.10.2022
Ответить
Наталья
Аня, вот сижу и думаю, как это все впихнуть. Спорткомплекс может в прихожую уберу, что ли. Стол у нас Поль 120 с копейками, младшему пока не брали, но уже надо. Компьютеров не будет, у обоих ноуты. Комп если что стационарный у мужа, если уж очень надо будет. Кровати Икея, 190, плюс бортики 200 наверное. Кресло кровать 100, да.
17.10.2022
Ответить
Аня
Наталья, Поль 128, а кроватей 200 нет в Икее. Я искала как раз месяц назад, минимум та деревянная 205, а так 210 и больше, в основном. Так что тебе сначала надо точные размеры всей мебели собрать, а то 8 см там, 5-10 см тут, и уже играет роль, может не поместится.
17.10.2022
Ответить
Наталья
Аня, у нас сундвик, обе. Малой пока спит на 130, старший на 160. И в принципе, года на 2 им ещё хватит 160, думаю. Так что с кроватями попроще ситуация, сейчас замечаю. А вот столы никак не встают, столько места съедают.
17.10.2022
Ответить
Аня
Наталья, я Илье в его микрокомнату взяла Поль 96 см, мне кажется, что на всю начальную школу хватит. Компьютера у нас пока нет и не планируется. Не очень удобно, что под него тумба с ящиками не встанет, банально некуда. Но я на стену стаканчики прикрепила + комодик внутри шкафа, пока хватает. Поэтому если у вас такие растущие кровати (то есть 210 см сейчас точно не займут) и младшему купить маленький Поль, то скорее всего все поместится ) а шкаф какого размера? В вашем случае функционален только купе.
17.10.2022
Ответить
Наталья
Аня, блин, Косте 128 Поль прям впритирку. Иногда даже мало, размах творчества широк. Шкаф там огромный, 2 метра минимум, а то и больше. Прошлые хозяева новый почти оставляют. Я туда закину все пацанячье, и вещи,и игрушки и все-все то, что у меня сейчас по углам расписано.
18.10.2022
Ответить
Диана Ли
Вдоль левой стены сначала рабочий стол, потом кровать, потом кресло-кровать. Вдоль правой стены рабочий стол, потом кровать, потом спорт-комплекс. Возможно так.
17.10.2022
Ответить
Наталья
Диана Ли, спасибо, да, хороший вариант. Тем более, один левша, второй правша, то есть столы можно как раз друг напротив друга ставить.
17.10.2022
Ответить