Подскажите как расставить мебель)
Ищу услуги дизайнера.
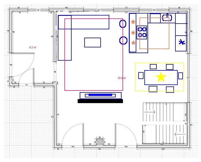
Подскажите, как расположить мебель в загородном доме. Это комната кухня-зал.
отдельная комнатка это прихожая. А двери внизу это спальни.
Хотели бы уместить и диванчик)))
Лучший ответ
Elena
Посмотрите вот такой вариант:
03.05.2023
Ответить
Ольга
Не знаю, где у вас коммуникации (вода, канализация)
Если это не учитывать, я бы кухню поставила в левый угол от входа. Обеденный стол в зоне кухни.
Диванчик можно поставить спинкой к лестнице, можно даже угловой, перед ним журнальный столик. Не знаю, нужен ли вам телевизор.. Может быть его на стену в проем между двумя окнами по левой стене от входа.
01.05.2023
Ответить
Ольга
Как вариант)
Можно диван спинкой к обеденной зоне, тогда тв на стене напротив.
Можно диван в угол напротив кухни, но тогда не знаю куда тв.
Как вариант)
Можно диван спинкой к обеденной зоне, тогда тв на стене напротив.
Можно диван в угол напротив кухни, но тогда не знаю куда тв.
01.05.2023
Ответить