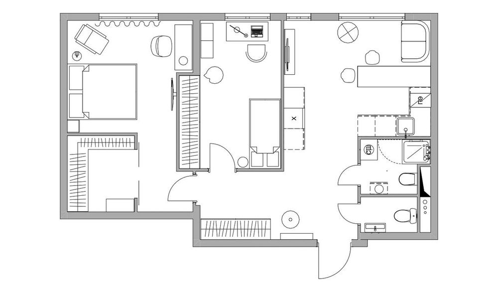
Планировочные решения квартиры
Авторские проекты дизайнеров.(Посты не по теме будут удаляться!)Добрый день.
Предлагаю услуги по планировочному решению квартиры ( план расстановки мебели и оборудования)
С планировочного решения начинается дизайн-проект квартиры. Позволит ли оно нам реализовать все ваши задумки, идеи и пожелания? Или нужно будет чем-то жертвовать?
Стилистические коллажи кв. - 50₽ р кв. м
План расстановки мебели и оборудования - 150₽ за кв. м
Работаю только по предоплате!!!