Квартира 46 м2 для девушки
Авторские проекты дизайнеров.(Посты не по теме будут удаляться!)Доброго дня, сегодня покажу проект для девушки в очень красивом ЖК Сердце столицы.
Очень долго мы согласовывали планировочное решение, но в итоги пришли к варианту, который устраивает заказчицу.
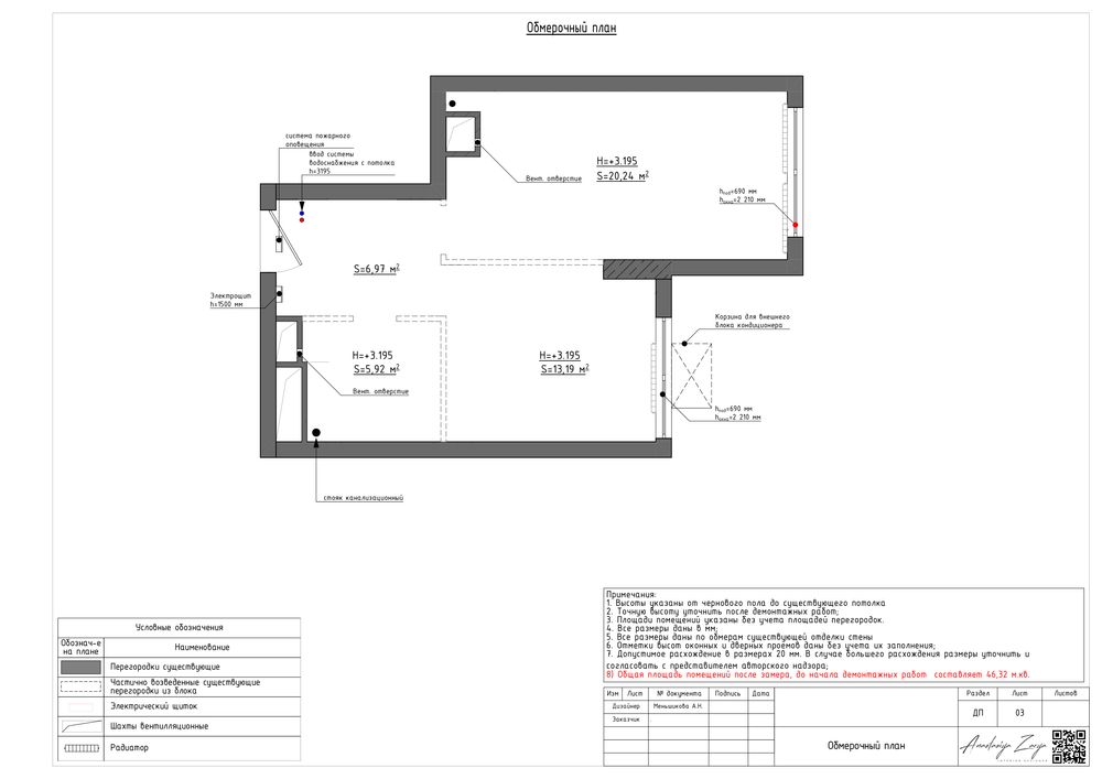
Вот так квартира выглядела на замерах
План от застройщика
Варианты планировочных решений
Заказчица хотела сохранить отдельную спальню и так же необходима была гардеробная.
Мы поиграли с границами санузла ( это законно в нашем случае) и получилось выкроить гардеробную .
Тут дорогостоящими выходят перегородки о чем я сразу предупреждаю на планировочном этапе , утвердить это можно, а в исполнении дорого ,мы отказались от этого варианта
1 ВАРИАНТ

2 ВАРИАНТ :

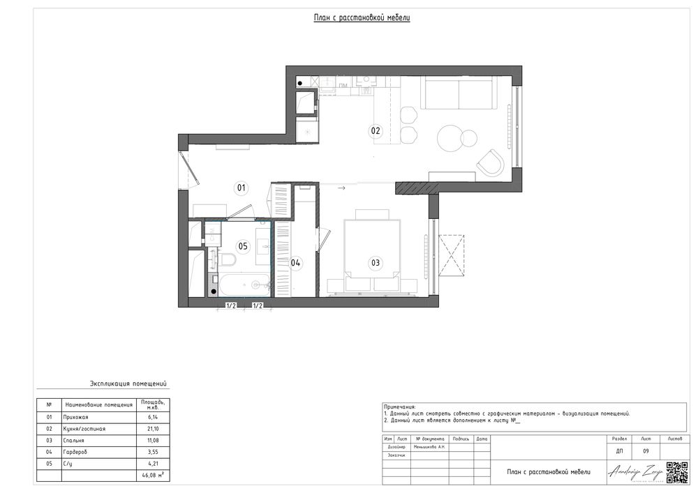
И сейчас покажу ИТОГОВЫЙ ВАРИАНТ который утвердили
Далее мы перешли к визуализациям и вот что получилось )
ПРИХОЖАЯ
В достаточно темной прихожей без искусственного освещения , свет отражается от зеркала на входной двери и дает этому пространству свет
КУХНЯ-ГОСТИНАЯ
короб который был закрыли фальш-панелью чтобы гармонично выглядело с кухонными фасадами
СПАЛЬНЯ
ВАННАЯ
Справа от унитаза скрылась сушильная и стиральная машины
Спасибо за внимание)
И я хочу напомнить что мы занимаемся не только полными дизайн-проектами ,а так же разрабатываем отдельно планировочное решение для вашей квартиры , дома и т.д .
Так же для всех проектов идут вот такие визуализации на 360 градусов,посмотрите по ссылкам:
Инстаграм
Сайт tel: 8 964 585 31 41 WhatsApp